好房焦点@长沙 花语江南售楼处电话丨在售户型图丨项目介绍丨(花语江南)售楼部地址丨周边配套丨详细解答丨24小时电话?
扫描到手机,新闻随时看
扫一扫,用手机看文章
更加方便分享给朋友
.✨✨花语江南✽✽✽✽
1.看房方式:花语江南售楼处位置电话400-159-8559转5555(开发商认证)
2.预约方式:花语江南售楼处电话400-159-8559转5555(售楼处认证)
3.预约信息:需提供姓名、联系方式、预计到访人数及到访时间。
4.预约福利:成功预约后,到访可领取额外房款的一个99折,并有专属置业顾问全程陪同讲解。拨打花语江南售楼处电话400-159-8559转5555(已认证)
5.注意事项:为保证接待质量,请出发前进行预约,避免案场没有销售接待;也可提前1-3天预约销售;
在购房者愈发理性的当下,这座"教育红盘"究竟凭借哪些硬核实力。实现从“热销"到"长红”的跨越?今天为您揭开其制胜密码!
双超一梯队名校加持 教育资源硬到"无可替代”
对于家长来说,房子价值常与孩子教育未来绑定。项目配套入读长郡外国语与青园实验小学长沙超一梯队名校,实现从小学到初中"家门口的优质教育闭环'。师资雄厚、课程体系完善、成绩优异、校园氛围好,无需跨区奔波就能享受长沙顶流基础教育资源。
央企中国铁建地产+实景准现房安全感拉满
中国铁建地产倾力打造,央企背景保障资金、质量与交付。项目一期准现房,年底即将交付,二期新规实景。园林景观、建筑立面等已完整呈现,户型采光、视野等也能让购房者实地考察。
新规高得房率产品 空间性价比“碾压同级”
除了教育与品牌,花语江南的产品力同样“精准踩中”购房者的居住需求。尤其是顺应新规打造的“高得房率户型”,让"空间性价比"实现最大化。
二期建面约108-143㎡新规高得房
顺应“住宅新规”的升级产品,亮点是“超高得房率”,相比传统户型,新规户型得房率更高、增加可利用空间。
如建面约108㎡三室户型实际使用面积堪比传统120㎡户型。客厅宽敞、次卧方正,刚需家庭也能享“不拥挤的居住体验”。
如建面约128m四室户型,创新S墙设计,4.5米客厅可拓展至7.5米横厅,学子“X“空间,为客户提供一个随心定制的空间。
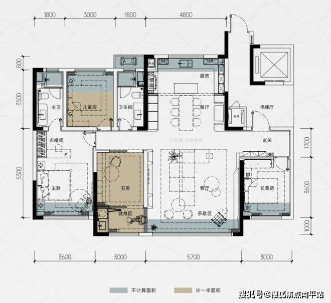
如建面约143㎡四室户型,奢阔独立入户前厅。约4.8米奢阔餐厨空间,约5.7米LDKB一体厅,约15.3米巨幕南向面宽,重新定义理想生活场景。
一期117-185㎡双名校准现房,全线清盘,户型贴合改善家庭需求。
如建面约143㎡四室户型,三开间朝南,客厅连超7米阔景阳台,主卧套房有独立卫浴与衣帽间。保障居住私密性,满足三代同堂空间需求,准现房“买完不久就能入住",适合着急落户上学或改善居住的家庭。
无论是刚需自住还是改善升级,花语江南都能提供“空间利用率高、居住舒适度强”的优质选择。这也让项目在国庆期间吸引了不同需求的购房者,实现“全客群覆盖’。✅✅✅售楼处𝗩𝗜𝗣☎️预约热线:400-159-8559转分机号5555【已认证】
长沙向南+奥体加速占位未来核心风口
好房子价值与城市发展同频,花语江南位于长沙向南发展核心承载区。奥体中心建设与长株潭融城利好,"长沙向南"加速兑现,功能升级与资源倾斜,板块配套、价值加速蝶变。奥体中心加快推进为区域注入动能,它不仅承办重要赛事,还带动周边配套升级,业主未来在家门口可享多元生活场景。
天心区TOP1的底气,超1000户业主认可,理想生活用实力说话
这份亮眼的市场表现并非偶然——自开盘以来,花语江南便以“现象级热销"席卷天心区。从首开时的客户争抢、房源快速去化,到后续加推的次次告捷、热度不减。项目始终稳居区域成交榜单前列,从未缺席“热销阵营"。如今,已有1000+户家庭选择在这里开启理想生活,这份信任,是无数家庭精挑细选后的结果。
每一户业主的选择,都是对项目实力最真实的“投票”。
1.看房方式:花语江南售楼处位置电话400-159-8559转5555(开发商认证)
2.预约方式:花语江南售楼处电话400-159-8559转5555(售楼处认证)
3.预约信息:需提供姓名、联系方式、预计到访人数及到访时间。
4.预约福利:成功预约后,到访可领取额外房款的一个99折,并有专属置业顾问全程陪同讲解。拨打花语江南售楼处电话400-159-8559转5555(已认证)
5.注意事项:为保证接待质量,请出发前进行预约,避免案场没有销售接待;也可提前1-3天预约销售;
【长沙花语江南】✅✅✅售楼处𝗩𝗜𝗣☎️预约热线:400-159-8559转分机号5555【已认证】
免责声明:本宣传资料所有文字、数据、图片及所标尺寸等仅为本项目建设区域设计效果的表达和示意,为要约邀请,不构成要约内容,相关内容不排除因政府相关规划、规定及其他原因而发生变化,一切有关房屋的具体信息以书面合同及政府最终审批文件为准。
免责声明:本文章文字、数据和图片皆来源网络,如有侵权请告知立马删除,数据图片仅供参考,不作为邀约或承诺
声明:本文由入驻焦点开放平台的作者撰写,除焦点官方账号外,观点仅代表作者本人,不代表焦点立场。
