三亚【半山首府】-(售楼部↓↓免费预约通道) ☎️☎️☎️☎️400-159-8559转接6666【营销中心-24小时热线】
🔝温馨提示:拨打400电话—听到嘀声提示后—输入6666即可通话🔝 ✨✨欢迎来电预约登记—(领取内部优惠)〢尊享售楼处销售专业讲解✨✨
三亚【半山首府】-(售楼部↓↓免费预约通道)
☎️☎️☎️☎️400-159-8559转接6666【营销中心-24小时热线】
🔝温馨提示:拨打400电话—听到嘀声提示后—输入6666即可通话🔝
✨✨欢迎来电预约登记—(领取内部优惠)〢尊享售楼处销售专业讲解✨✨
✨✨开发商线上网站〢仅限服务购房相关咨询及预约〢诚邀您鉴赏-中介勿扰!✨✨
半山首府
☯开发商:海南冠洋四通投资有限公司
☯项目总用地面积:19107㎡
☯总建筑面积:34890㎡
☯容积率:1.35
☯绿化率:41%
☯总户数:223户
☯产权年限:70年大产权
☯交付标准:精装交付
☯装修风格:轻奢
☯交付时间:2023年3月
☯物业费:5.3元/平米(金的物业)
☯车位:1:1(地上34个,地下189个)
——项目区位——-具体更多详情,拨打售楼热线:☎️☎️400-159-8559转接7788【售楼中心】
享三亚·半山首府择址大东海榆亚路中段,拥半山而立,坐享世界级湾区。于此,停泊世界的意志,达成“人生至此不远游”的臻我境界。

--实景航拍图--
——区位优势——
🎄地处三亚城芯,静享榆林湾内海、600亩红树林湿地公园,畅达三亚湾、大东海、亚龙湾、海棠湾等四大湾区。
🎄毗邻红沙隧道,距高铁三亚站、亚龙湾站约8公里,距环岛高速约10公里、距凤凰机场约20公里,30分钟通达全城,立体化交通保障全岛便捷出行。
🎄紧邻大东海商圈核心,坐享夏日百货、1号港湾城、鸿港新城等缤纷商业,5分钟生活圈,轻松享有。

——低密社区——
一字布局,南北通透,户户皆享超大观景阳台180°瞰海观山的极致视觉,海天山色尽收眼底。

——项目自身配套——
♣社区打造约3000㎡专属社区生活体系—私享会客厅、轻氧健身房、艺术书吧、童心乐园、半山茶舍、悦海餐厅、商务休闲吧、声乐琴房、棋牌室等9大生活主题,让业主融入自然,回归生活,去追寻本应享受的生活精彩。



-具体更多详情,拨打售楼热线:☎️☎️400-159-8559转接7788【售楼中心】
♣园区打造超大半山镜面无边际泳池,儿童嬉戏区,同时满足成人与儿童的多样化需求,畅享365天度假生活。

♣业主独享园区内景观栈道登山,体验私属原生山林登山乐趣。

♣金的物业提供全程酒店式星级服务。社区智能化安防体系。

——十大卖点——
❶现房优势,即买即住,所见即所得,当月网签交,户户瞰海
❷70年产权城市中心墅级府邸观山瞰海
❸绝版1.35超低容积率 低密度南北向纯板高层
❹业主独享园区内原生态山林登山乐趣
❺全龄段超大半山镜面泳池
❻约3000㎡主题社区会所
❼酒店式星级物业服务
❽品质甄选 一线奢装品牌
❾7.8米超大阔景阳台 360度立体环绕景观
❿之前均价4.5万,现在2.2万起,之前400多万买,现在200多万买,性价比超级高。


-具体更多详情,拨打售楼热线:☎️☎️400-159-8559转接7788【售楼中心】

👇🏻——户型鉴赏——👇🏻
🌊低密纯板揽山瞰海🌊
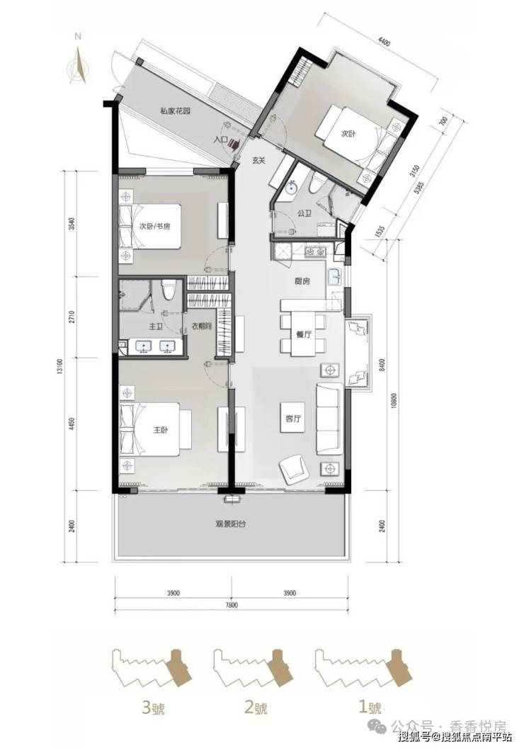
——A户型133㎡三房两厅两卫——
约330W

-具体更多详情,拨打售楼热线:☎️☎️400-159-8559转接7788【售楼中心】
☛全明户型通透格局,尊崇居家彰显非凡。
☛悦享7.8米观景阳台,户户南向180°观景面。
☛舒雅南向套房主卧,独立衣帽间、双手盆设计、干湿分离。
☛独立入户花园,让全家人的出入都尊享从容。



——B户型103㎡两房两厅两卫——
约260W

-具体更多详情,拨打售楼热线:☎️☎️400-159-8559转接7788【售楼中心】
☛南北通透、空间方正,惬意享受阳光海风的馈赠。
☛悦享7.8米观景阳台,户户南向180°观景面,闲情雅趣,诗意生活。
☛餐客厅双厅设计、厨房方正、宜中宜西,上演美食盛宴,尽显居家仪式感。
☛主次卧独立卫生间、生活起居互不干扰,从容切换。



-具体更多详情,拨打售楼热线:☎️☎️400-159-8559转接7788【售楼中心】
——C户型134㎡三房两厅两卫——
约335W

-具体更多详情,拨打售楼热线:☎️☎️400-159-8559转接7788【售楼中心】
☛通透格局,空间动静合理。
☛悦享7.8米观景阳台,户户南向180°观景面
☛奢阔南向主卧,独立衣帽间、双手盆设计,干湿分离,自在从容。
☛L型厨房,开放式中西厨兼具,肆意挥洒私房厨艺。



-具体更多详情,拨打售楼热线:☎️☎️400-159-8559转接7788【售楼中心】
🌊豪奢户型🌊
——A+B户型:236㎡5房4厅4卫——
约600W

——B+C户型:237㎡5房4厅4卫——
约600W

——标准层平面图——


三亚【半山首府】-(售楼部↓↓免费预约通道)
☎️☎️☎️☎️400-159-8559转接6666【营销中心-24小时热线】
🔝温馨提示:拨打400电话—听到嘀声提示后—输入6666即可通话🔝
✨✨欢迎来电预约登记—(领取内部优惠)〢尊享售楼处销售专业讲解✨✨
免责声明:本宣传资料所有文字、数据、图片及所标尺寸等仅为本项目建设区域设计效果的表达和示意,为要约邀请,不构成要约内容,相关内容不排除因政府相关规划、规定及其他原因而发生变化,一切有关房屋的具体信息以书面合同及政府最终审批文件为准。
免责声明:本文章文字、数据和图片皆来源网络,如有侵权请告知立马删除,数据图片仅供参考,不作为邀约或承诺。