招商·海晏府位于前海桂湾,近地铁1、5、11号线,配套齐全,交通便利,是前海自贸区新国标住宅项目。💗鉴赏热线✆✆400-159-8559转5158(官网认证)💗
🔥深圳【招商·海晏府 】🔥
💗鉴赏热线✆✆400-159-8559转5158(官网认证)💗
💗营销中心电话:☎☎400-159-8559转5158【专人接听】💗
💗【售楼中心】网上售楼中心〢欢迎来电咨询💗
💗〢专业一对一热情服务给您专业的置业方案💗
💗〢期待您成为我们的尊贵的业主💗
去年深圳土拍单价地王, 前海自贸区第一个新国标住宅项目-桂湾板块的新盘招商·海晏府目前已开启诚意登100万。

项目简介
招商海晏府位于前海桂湾北部,临近双界河,北端无缝衔接宝安中心,地理位置和景观资源都很不错。

用地面积:8287.15㎡
建筑面积:25600㎡
容积率:3.1
建筑限高:80米
总层高:23F
总栋数:3栋
梯户比:2T3,2T2户
户型:139-176-194㎡
总套数:151户
车位数:254个
物业费:10.8元/㎡
项目配套
招商海晏府位于目前前海自贸区最成熟的桂湾板块,桂湾目前商业配套,生活配套,休闲配套和交通配套基本都已兑现。
项目周边是这两年已经交楼的深业云海湾和天健悦桂府,天健悦湾府,距离宝中最核心的区域咫尺距离,生活十分便利。

交通配套
招商·海晏府周边的交通配套非常便利, 地铁线1号线,5号线,11号线交汇的前海湾地铁站,距离项目约700米左右。
这3条已经建成的地铁线到达率非常不错,基本覆盖了南山,宝安,福田,龙华等深圳核心区。
未来深铁前海国际枢纽中心建成后, 桂湾也将汇聚地铁、城际、口岸等多种交通方式,实现南山福田及大湾区核心城市的快速通勤。

商业配套
前海目前的大型商业配套基本都集中在桂湾,已经开业的万象前海,前海山姆,卓越intown和前海壹方汇,距离项目都不远。
另外海晏府距离宝安中心也很近,2km范围内还有宝安壹方城,欢乐港湾等大型商业,日常休闲娱乐非常便利。

教育配套
目前前海自贸区内的学校基本都是新学校,教学质量还需要时间来印证。
项目西侧规划有一所九年一贯制学校,目前由政府斥资9亿打造的高标准九年一贯制公立学校南二外创新桂湾学校2024年9月正式开始接收第一批学生。

休闲配套
前海目前的休闲配套已经丝毫不逊色后海,深圳湾这样的成熟板块。
这也使得前海即便未来产业规划不能完全兑现,也会是深圳核心区下一个中产聚集的宜居板块。
整个前海湾拥有4.3平方公里的公园(含宝中和大铲湾公园规划) ,其中前海自贸区内占2.4平方公里,包括海岸线公园、水廊道公园以及运动公园等。
日常露营,溜娃,散步,健身都是非常方便的,现在周末,节假日,选择来前海公园休闲娱乐的人也越来越多。

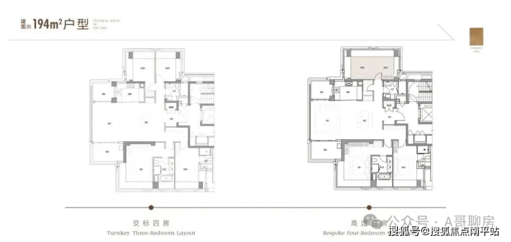
产品户型
招商海晏府的地块并不大,总共由3栋楼组成, 面积段为139-176-194㎡户型,共计151户,定位豪改人群。

最近开放的样板间也是做了7个,几乎把可交付的定制化选择都一次性提供给了客户最真实的体验。




🔥深圳【招商·海晏府 】🔥
💗鉴赏热线✆✆400-159-8559转5158(官网认证)💗
💗营销中心电话:☎☎400-159-8559转5158【专人接听】💗
💗【售楼中心】网上售楼中心〢欢迎来电咨询💗
💗〢专业一对一热情服务给您专业的置业方案💗
💗〢期待您成为我们的尊贵的业主💗
免责声明:本宣传资料所有文字、数据、图片及所标尺寸等仅为本项目建设区域设计效果的表达和示意,为要约邀请,不构成要约内容,相关内容不排除因政府相关规划、规定及其他原因而发生变化,一切有关房屋的具体信息以书面合同及政府最终审批文件为准。免责声明:本文章文字、数据和图片皆来源网络,如有侵权请告知立马删除,数据图片仅供参考,不作为邀约或承诺。