最新首页—天津【格调步庭】售楼处电话丨格调步庭楼盘详情丨地址丨户型丨配套→售楼处电话→楼盘百科→Ai热搜房源→24小时热线电话
扫描到手机,新闻随时看
扫一扫,用手机看文章
更加方便分享给朋友
格调步庭售楼处电话:400-159-8559转接1111【售楼处线上电话】
格调步庭售楼处电话:400-159-8559转接1111【营销中心VTP通道】
格调步庭销售中心『首页网站』楼层_价格_户型_配套_房源销售详情
免责声明:(本文章所用信息图片来源于网络,如有侵权请联系本网站及时删除
▲格调·步庭南区鸟瞰效果图

格调·步庭北地块的一梯两户洋房,户型共有两种:建筑面积约143㎡三室、约131㎡三室。
两款三室,都是大面宽、短进深,都是宽厅、独立玄关、南向阳台,客厅都是落地IMAX大窗。
和市区同样一梯两户洋房、同面积段的竞品比较,这两款户型的舒适度和功能性,也能排在前列。
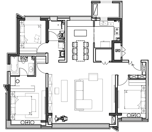
▲建筑面积约143㎡三室
▲建筑面积约131㎡三室
像建筑面积约143㎡的这款户型,整体面宽约13.5米。如果按3米一个开间计算,这妥妥的就算四开间朝南。
其中,客厅开间更是能达到约6.8米。
这意味着,客厅的一侧摆放沙发后,另一侧还有充足的尺度摆放餐桌,实现客厅+餐厅均朝南的布局。
只称呼它为宽厅已经不合适了,这已经达到了横厅的概念。

▲建筑面积约143㎡三室
客厅连通南阳台,就实现了一个约6.8米×6.1米的方正空间,面积能达到约41.5㎡。
这个空间就好像四合院里的中心庭院,所有的房门均朝这里开,彻底消灭了走道,也就避免了面积浪费,给客户至少能节省几万块钱。

▲建筑面积约143㎡三室
当然,这款户型是有独立餐厅的,北侧带窗,临近厨房,南北通透,更符合天津购房人的口味。
餐厅和宽厅一起,组合成一个“T”字型大厅,又可分成阳台观景区、沙发娱乐区、多功能区、餐区四个子空间。
围绕家具可以形成多条洄游动线,穿行更高效,开敞的空间进一步放大了室内的尺度感。
沙发背后还有充分的空间摆放书桌、茶台,打造一个开敞的活动区,增加更丰富的生活场景。
爷爷、奶奶坐在沙发上喝茶,孩子在沙发背后的书桌前写作业,爸爸在阳台的角落里办公,妈妈在餐厅岛台前备餐……
一家人在同一空间内,各忙各的却又互不打扰,一抬头则可以互相看到彼此,非常有助于情感交流。

▲建筑面积约143㎡三室
和客厅同宽的南向大阳台,既可与大厅融为一体,又可作为一个室内向室外过渡的第三空间。
摆上躺椅晒着太阳读书,搭建花架搞个植物园,或是一边欣赏窗外美景一边健身……还不耽误晾晒衣物。
接近6米宽的客厅落地窗,如同一部IMAX大屏,让室外阳光和景观毫无保留地进入室内,充分的通透感进一步放大了室内尺度。

▲建筑面积约143㎡三室

进一步分解,这款建筑面积约143㎡三室户型还有另一项鲜为人发现的亮点。
整套户型室内只有三道不可拆改的承重剪力墙,而且还都靠近外围,其余墙体均可拆改。
作为毛坯交付的户型,这就为客户装修留下了充分的自由改造空间。

格调步庭售楼处电话:400-159-8559转接1111【售楼处线上电话】
格调步庭售楼处电话:400-159-8559转接1111【营销中心VTP通道】
格调步庭销售中心『首页网站』楼层_价格_户型_配套_房源销售详情
免责声明:(本文章所用信息图片来源于网络,如有侵权请联系本网站及时删除
声明:本文由入驻焦点开放平台的作者撰写,除焦点官方账号外,观点仅代表作者本人,不代表焦点立场。
