🔥🔥天津 【绿城·玉百合】🔥🔥 
 
 
   ✨✨售楼处电话☎☎400-159-8559转3333(专人接听) 
 
 
   ✨✨营销中心电话:☎☎400-159-8559转3333【营销中心】 
 
 
   ✨✨温馨提示:拨打400电话,听到嘀声后,输入分机号3333即可! 
 
 
   ✨✨☞☞Vip贵宾置业==欢迎来电预约尊享内部折扣===匠心钜制恭迎品鉴☜☜ 
 
 
 
   绿城4.0全架空洋房 美学新著 迭新梅江 
 
  
  
 
 
 
   🏡【项目基础信息】 
 
 
   • 亮点:绿城4.0全架空洋房 梅江人居新封面 
 
 
   • 项目形态:小高层(18F)/洋房(6-11F) 
 
 
   • 绿化率:40% 
 
 
   • 容积率:2.0 
 
 
   • 产权年限:70年 
 
 
   • 总户数:330户 
 
 
   • 梯户比:小高层2T4/洋房1T2 
 
 
   • 户型:小高约99-114㎡/洋房约104-131㎡ 
 
 
   • 装修状况:毛坯交付 
 
 
   • 物业费:4.28元/㎡ 
 
 
   • 车位配比:1:1.2 
 
 
   • 行车方式:人车分流 
 
  
  
 
 
  
  
 
 
 
   🔝【十大必买理由】 
 
 
   1、绿城琢玉 
 
 
   中国高端人居领航者绿城,历经30年淬炼,于天津深耕10载。2015年,绿城在梅江板块,以天津全运村为起点,正式与天津结缘,也成为大梅江片区的开局者、城市版图的共建者。10年间,绿城在天津陆续立著16座人居经典,每一个作品皆成为区域乃至城市的产品力典范。2025年,绿城再入河西,携手本土房企标杆侯台集团,于梅江之芯,以一席人文新著——绿城·玉百合,演绎城市奢居的至臻理想。 
 
 
   2、梅江之芯 
 
 
   每一朵百合都绽放在城市的芯上。此次百合序列首映津门,亦选择城市臻贵地脉,落子河西区梅江板块的中芯地段,承续这片天赋土地的奢宅基因,引领板块人居迭新。 
 
 
   3、发展之极 
 
 
   随着2021年天津市规划局网站公布的《河西区解放南路地区03单元西区控详规修改方案》,热电厂板块规划的逐步清晰,天津市南部地区活力微中心的定位凸显,落子陈塘居住区核芯的绿城·玉百合,将成为梅江发展4.0时代的封面作品,为下一个城市CLD(中央生活区)再续新篇。 
 
 
   4、集萃万象 
 
 
   绿城·玉百合拥享新梅江片区全维配套,医疗资源在侧;河西环宇城、山姆会员店、中冶和悦汇、龙湖天街等重点商圈环绕,梅江活力之芯规划约14公顷商服用地;梅江公园与中央绿轴公园绿意环绕,悦享丰盈。项目周边三条主干道环绕,解放南路、洞庭路、珠江道于此交汇,地铁8号线(建设中)、6号线、10号线三轨便捷通达城市。 
 
  
  
 
 
 
   5、空中奢境 
 
 
   绿城·玉百合勾勒4.0洋房奢境,首个全架空低密住区迭新梅江。项目巧妙利用原始场地的高差,通过多层次立体设计,将自然景观与建筑空间有机融合。下沉式庭院、观景云幕阳台的创新设计,令建筑不再局限于传统平面,而是通过高差转换与立体穿插,打造更高阶的奢居生活想象。 
 
  
  
 
 
  
  
 
 
 
   6、绿城美学 
 
 
   30年间,绿城始终走在行业审美前沿,此次以玉百合的惊艳呈现,作答领先“下一个十年”的建筑先潮。建筑取意百合花形态与身姿,温润弧面与大面积“蓝宝石”玻璃结合,搭配精致高级的线条感设计,以百合之优雅,代言天津人居封面。 
 
  
  
 
 
  
  
 
 
 
   7、立体山水 
 
 
   绿城·玉百合周边公园环伺,绿意围绕。同时,内部园林的打造汲取了中国江南园林的造园精髓与哲学意境,依循“双轴四境五进八景”的严谨规制,塑造一座度假式立体奢香山水园林。自此内外双园规划,为项目带来不可复制的生态低密属性。 
 
  
  
 
 
  
  
 
 
 
   8、馥香会所 
 
 
   绿城·玉百合创领梅江,打造约1700㎡的酒店式动静双艺术会所空间,户均可享面积大幅超越同期产品,内部规划9大核心主题,涵盖休闲、娱乐、运动、儿童成长等。金玉门庭,海派风情,优雅之境,还原生活本真。 
 
  
  
 
 
 
   9、臻质服务 
 
 
   项目引入绿城自持物业,绿城物业已连续13年荣获业主满意度第一,始终为客户提供高端服务,沁润居者日常。 
 
  
  
 
 
 
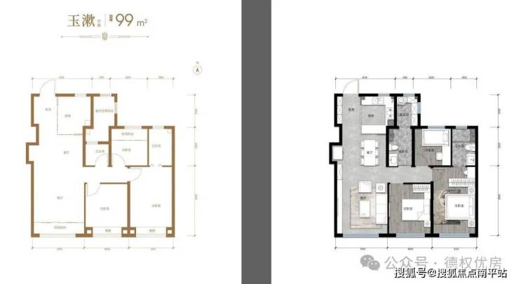
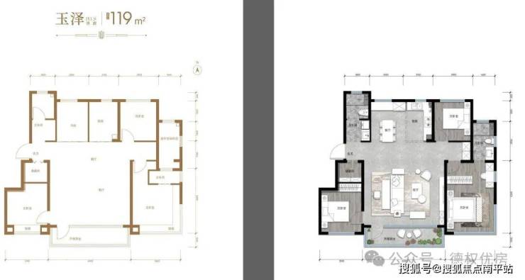
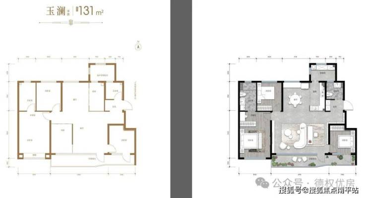
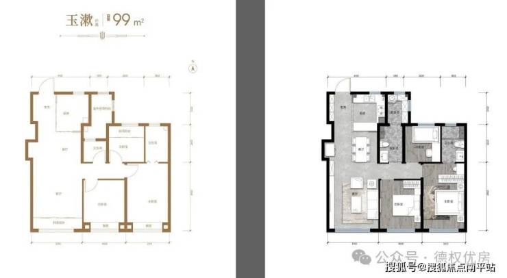
   10、典藏户型 
 
 
   绿城·玉百合打造建面约100-130㎡美学奢宅,创新灵活空间容纳全周期居住需求,全落地窗设计通透明亮,无界观景;超高得房率,空间舒阔从容。 
 
 
   🏠【户型鉴赏】 
 
  
  
 
 
  
  
 
 
  
  
 
 
  
  
 
 
  
  
 
 
  
  
 
 
  
  
 
 
 
   🔥🔥天津 【绿城·玉百合】🔥🔥 
 
 
   ✨✨售楼处电话☎☎400-159-8559转3333(专人接听) 
 
 
   ✨✨营销中心电话:☎☎400-159-8559转3333【营销中心】 
 
 
   ✨✨温馨提示:拨打400电话,听到嘀声后,输入分机号3333即可! 
 
 
   ✨✨☞☞Vip贵宾置业==欢迎来电预约尊享内部折扣===匠心钜制恭迎品鉴☜☜ 
 
免责声明:本宣传资料所有文字、数据、图片及所标尺寸等仅为本项目建设区域设计效果的表达和示意,为要约邀请,不构成要约内容,相关内容不排除因政府相关规划、规定及其他原因而发生变化,一切有关房屋的具体信息以书面合同及政府最终审批文件为准。免责声明:本文章文字、数据和图片皆来源网络,如有侵权请告知立马删除,数据图片仅供参考,不作为邀约或承诺。