长沙江山云著(售楼处)首页_江山云著(营销中心)_江山云著Vip预约电话_江山云著售楼处电话/地址/备案价格/楼盘最新详情!
扫描到手机,新闻随时看
扫一扫,用手机看文章
更加方便分享给朋友
4001598559,8080
在长沙江山云著,有这样一套130㎡的房子,被设计师以法式复古的笔触,描绘成充满艺术感与烟火气的浪漫居所。姝安设计团队将法式的 𝐟𝐢𝐧𝐞𝐬𝐬𝐞 与现代生活需求相融,让每一寸空间都流淌着复古风情,却无比契合当代人的居住习惯。
一 、材质与细节 | 复刻法式的精致底色 𝐓𝐞𝐱𝐭𝐮𝐫𝐞 & 𝐃𝐞𝐭𝐚𝐢𝐥
开家门,拱形门廊与罗马柱率先勾勒出法式的仪式感,却又通过开放式布局,让客、餐、厨彼此连通,营造出 𝐥𝐨𝐟𝐭𝐲 𝐚𝐧𝐝 𝐨𝐩𝐞𝐧 的大平层体验。
石膏线与雕花:从天花板到墙面,𝐦𝐨𝐮𝐥𝐝𝐢𝐧𝐠𝐬 𝐚𝐧𝐝 𝐜𝐚𝐫𝐯𝐢𝐧𝐠𝐬 以简洁而精致的形态勾勒复古骨架,温柔又有力量;人字拼木地板:暖棕色 𝐡𝐞𝐫𝐫𝐢𝐧𝐠𝐛𝐨𝐧𝐞 𝐟𝐥𝐨𝐨𝐫𝐢𝐧𝐠 不仅提升质感,也为家奠定温暖 𝐛𝐚𝐬𝐞 𝐧𝐨𝐭𝐞;复古家具与软装:做旧质感沙发、藤编椅、雕花壁炉柜……每一件都仿佛从巴黎 𝐯𝐢𝐧𝐭𝐚𝐠𝐞 𝐦𝐚𝐫𝐤𝐞𝐭 淘回,搭配干花与艺术摆件,𝐚𝐞𝐬𝐭𝐡𝐞𝐭𝐢𝐜 𝐯𝐢𝐛𝐞𝐬 满分。
二、空间布局 | 复古框架里的通透与层次 𝐒𝐩𝐚𝐜𝐞 & 𝐋𝐚𝐲𝐞𝐫𝐬
推开家门,拱形门廊与罗马柱率先勾勒出法式的仪式感,却又通过开放式布局,让客、餐、厨彼此连通,营造出 𝐥𝐨𝐟𝐭𝐲 𝐚𝐧𝐝 𝐨𝐩𝐞𝐧 的大平层体验。
三、风格融合 | 复古与现代的温柔共生 𝐕𝐢𝐧𝐭𝐚𝐠𝐞 𝐌𝐞𝐞𝐭𝐬 𝐌𝐨𝐝𝐞𝐫𝐧
这里并非对法式的刻板复刻,而是让浪漫落地与当代生活 𝐜𝐨𝐞𝐱𝐢𝐬𝐭,
水吧区嵌入现代咖啡机复古外壳下是 𝐟𝐮𝐥𝐥𝐲 𝐞𝐪𝐮𝐢𝐩𝐩𝐞𝐝 的生活场景。
以米白、暖棕为 𝐛𝐚𝐜𝐤𝐝𝐫𝐨𝐩点缀墨绿与 𝐞𝐛𝐨𝐧𝐲,
复古而 𝐬𝐨𝐩𝐡𝐢𝐬𝐭𝐢𝐜𝐚𝐭𝐞𝐝吊灯壁灯与自然光交织,
营造 𝐞𝐯𝐞𝐫-𝐜𝐡𝐚𝐧𝐠𝐢𝐧𝐠 𝐬𝐡𝐚𝐝𝐨𝐰 𝐩𝐥𝐚𝐲。
四、卧室空间 | 私属的法式梦境 𝐀 𝐏𝐚𝐫𝐢𝐬𝐢𝐚𝐧 𝐃𝐫𝐞𝐚𝐦
卧室延续整体复古基调,碎花壁纸与绿色边框勾勒出 𝐅𝐫𝐞𝐧𝐜𝐡 𝐜𝐨𝐮𝐧𝐭𝐫𝐲𝐬𝐢𝐝𝐞 的恬静。罗马柱与拱形元素再次呼应公共区,床头的藤编细节与复古床具,让每一次入眠都像坠入巴黎的 𝐚𝐟𝐭𝐞𝐫𝐧𝐨𝐨𝐧 𝐝𝐫𝐞𝐚𝐦。
▼项目介绍
The Project Introduction
项目地址 | 长沙 建发合著叠墅
项目面积 | 130 ㎡
设计时间 | 2024年12月
设计单位 | 姝安设计
设计总监 | 任斌
设计团队 | 姝安设计
施工单位 | 姝一建构
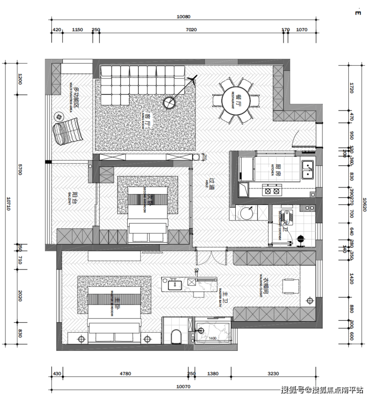
▼平面布置图
First floor layout plan

特别说明:
1.本文为要约邀请,不作为要约或承诺;相关宣传内容不排除因政府相关规划、规定及出卖人分期规划、未能控制等原因而发生变化;
2.本文部分图片来自于网络,如涉及版权使用,请联系删除;文本部分图片仅作为推广示意使用,非交付标准,最终以实际交付现状为准;
3.本宣传资料对项目周边学校等教育资源的介绍旨在提供相关信息,并不意味着本公司对就学安排作出承诺。教育资源的名称、办学性质、办学规模、学位设置、开学(班)时间、招生条件、收费标准及招生区域存在调整的可能,应以政府教育主管部门及办学方颁布的政策规定为准;
4.本资料对项目或产品的介绍,旨在提供相关信息,不意味着本公司对此作出了承诺,买卖双方的权利义务以《商品房买卖合同》及附件等协议为准;
5.宣传方保留对宣传资料修改和解释的权利;
声明:本文由入驻焦点开放平台的作者撰写,除焦点官方账号外,观点仅代表作者本人,不代表焦点立场。
