◆◆◆长沙 三一云湖🏠🏠 售楼处电话☎400-159-8559转接8899【已认证】来电尊享优惠活动 ◆◆◆长沙 三一云湖🏠🏠
营销中心电话☎☎400-159-8559转接8899【已认证】【售楼处指定网站】预约热线 ◆◆◆温馨提示——拨打400电话☎☎听到嘀声后——
◆◆◆长沙 三一云湖🏠🏠
售楼处电话☎400-159-8559转接8899【已认证】来电尊享优惠活动
◆◆◆长沙 三一云湖🏠🏠
营销中心电话☎☎400-159-8559转接8899【已认证】【售楼处指定网站】预约热线
◆◆◆温馨提示——拨打400电话☎☎听到嘀声后——输入【8899】即可通话➢ ➢
本项目采用预约制,过来营销中心参观样板间请记得提前拨打开发商楼盘售楼处400热线电话在线预约,感谢您的配合!
咨询高峰期请耐心等待,预约来电尊享内部优惠,专业一对一热情服务,让您用专业眼光去买房。
🏡人民路上 墅归来🏡
三一云湖 长沙唯二|地铁上盖|千亩墅区
地铁墅 6号线正地铁口上盖
名校墅 师大附属准现房
湖景墅 约12万方一线湖景
商业墅 自建大型商业
千亩墅 千亿投资千亩墅区
世界500强三一钜制 全自有资金开发
献给一座城的湖居理想
首付20万起入住建面约174-292㎡名校地铁墅
首付8万起买建面约112-172㎡湖景准现房

✍【项目概况】
开发商:长沙云荟房地产开发有限公司
占地面积:198970.25㎡
建筑面积:534527.04㎡
产品类型:毛坯叠墅21栋,毛坯高层31栋
产权年限:70年

容积率:2.0
绿地率:约41.09%
物业服务:竹胜园物业
——购买三一云湖的8大理由——
理由一【三一集团世界五百强,全自有资金开发】
三一《福布斯》全球500强,千亿产值,智领未来。世界500强的实业支撑,具有强大的抗风险能力。三一竹胜园,聚焦世界籍产城生态圈建设与运营,商住开发规模超1000万㎡。竹胜园坚持“品质缔造美好生活”的使命,全自有资金开发,打造三一云湖,置业更有保障。
数据来源:三一集团官网

实景图
理由二【人民路核芯难得一“墅” 升值有潜力】
长沙东部崛起,空港新城蝶变焕新,自贸试验区获批一年,新增企业3747家,新引进项目74个,总投资额1751.3亿元。三一择址人民路核芯,隆平&自贸区核芯,打造智联重卡产业园,预计园区年产值将超过约1500亿元,是三一首个千亿级园区,坐享区域腾飞红利。
(数据来源于红网长沙官方)

(区位图)
三一云湖
三一云湖售楼处电话☎️400-159-8559转接5555(专人接听)
☎️☎️温馨提示:拨打400电话——听到嘀声后——输入【5555】即可通话☎️☎️
➢ ➢开发商直售-不收取任何费用-请提前一小时预约看房-享额外售楼处专属内部团购优惠➢ ➢
人民路 黄金中轴 值此三一云湖
这里是中国第一产业的起点
中国第二产业的重地
中国第三产业的名片,串联 9 大中心
(娱乐中心、商务中心、文化中心、交通中心、商业中心、商贸中心、农科中心、智造中心、医疗中心)

示意图

自贸区实景图
随中轴延伸,城市越发展,人民路上的居住机会越如黄金般珍贵,像三一云湖,地处人民路核心,这样千亿产城的千亩墅区可能再难一遇。
理由三【6号线正地铁口 地铁墅】
六维立体交通 便捷出行圈
6号线曹家坪站,正地铁口
6号线——名副其实“换乘王”
12个换乘站,与已开通所有地铁换乘
人民路主干道+快速路+高速+高铁+磁悬浮+机场
六维立体交通,便捷出行圈
随心随行,从容有度

地铁6号线列车实景图
三座湘雅健康护航 健康保障圈
6号线串联湘雅一、二、三医院
轻松享受高端医疗资源
近享湘之雅贵宾医院
可提供上门服务
(项目距离湘之雅贵宾医院约2.3KM。数据来源于百度地图,仅供参考。)

雅贵宾医院实景图
理由四:【湖南师范大学附属学校,买即入读 名校墅】
自建约1500㎡幼儿托管中心
约3700㎡幼儿园,签约湖南师范大学附属学校
规划了36个班的 湖南师大附属三一云湖小学(预计2024年9月开学)以及54个班的中小学
买房即享双学位,与一期住宅同步交付,书香相伴启迪成长

三一云湖
三一云湖Ⓐ售楼处电话☎400-159-8559转接5555(来电预约)【售楼中心】
咨询高峰期请耐心等待,预约来电尊享内部优惠,专业一对一热情服务,让您用专业眼光去买房。

湖南师大附属三一云湖小学效果图
9年制师大附属学校 家门口的名校
2023年,高考湖南师大附中600分以上的学生比率超81%,位居湖南省第一。截至目前,奥林匹克竞赛共夺得金牌35枚,亚洲金牌12枚,国际金牌和奖牌总数稳居全国前列,2023年保送名单中,湖南师大附中保送以7人之多冲上全省榜首,被誉为“金牌摇篮”。
————数据来源:湖南师大附中官网&阳光高考平台

实景图
理由五:【自建大型商业 商业墅】
项目处在6号线曹家坪站正地铁口,
可换乘通达五一广场等繁华中心,
自建大型商业(在建中)近邻百联奥特莱斯、友阿跨境荟 (试运营)、
龙湖芙蓉天街等商业,
吃喝玩乐一站式满足!
(项目距百联奥特莱斯约3.8KM;距友阿跨境荟约4KM;距龙湖芙蓉天街约9.8KM。数据来源于百度地图,仅供参考)

三一云湖商业效果图
理由六【约12万方一线湖景 湖景墅 】
打造约12万方城市内湖,环湖规划7大主题滨湖景观带、垂钓基地、涂滩儿童乐园基地等,倾呈精彩水岸生活,园区内更规划房车、露营等休闲配套,为业主创造多维健康生活场。

——三一云湖城市度假营地——
湖边秋千 休闲垂钓 游船赏湖
湖边露营 定制私宴 水上高尔夫
N种湖居方式等你来体验

实景图
三一云湖
三一云湖Ⓐ售楼处电话☎400-159-8559转接5555(来电预约)【售楼中心】
咨询高峰期请耐心等待,预约来电尊享内部优惠,专业一对一热情服务,让您用专业眼光去买房。
精心雕琢 打造高端配套
项目内部打造恒温泳池,配备独立健身房,为客户提供全方位品质生活。


理由七【千亿投资大城 千亩墅】
人民路向东,三一择址隆平&自贸区核芯,打造智联重卡产业园,预计园区年产值将超过约1500亿元,是三一首个千亿级园区。三一产城融合发展,筑就约313万方产业大城,提供工作、生活一站式服务。
(数据来源:星沙时报、)

(项目效果图)
理由八【门槛ZUI低 名校地铁墅 】
全长沙15个在售墅区,总价低于200万+的仅2个,湖景地铁墅,总价200万+,首付20万起,实得单价6XXX元/㎡起,值此三一云湖。

(数据来源于安居客)
门槛ZUI低 名校地铁墅
三一云湖
三一云湖Ⓐ售楼处电话☎400-159-8559转接5555(来电预约)【售楼中心】
咨询高峰期请耐心等待,预约来电尊享内部优惠,专业一对一热情服务,让您用专业眼光去买房。
抢墅要趁早
总价200万+ 首付20万起
实得单价6XXX元/㎡起
放眼长沙,以如此高性价比入手
值此三一云湖
【户型鉴赏】

效果图
湖景地铁墅【明星户型推荐】
三叠户型鉴赏:

三一云湖
三一云湖Ⓐ售楼处电话☎400-159-8559转接5555(来电预约)【售楼中心】
咨询高峰期请耐心等待,预约来电尊享内部优惠,专业一对一热情服务,让您用专业眼光去买房。





三一云湖
三一云湖Ⓐ售楼处电话☎400-159-8559转接5555(来电预约)【售楼中心】
咨询高峰期请耐心等待,预约来电尊享内部优惠,专业一对一热情服务,让您用专业眼光去买房。


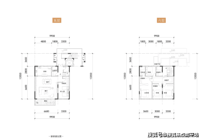
双叠户型鉴赏:





三一云湖
三一云湖Ⓐ售楼处电话☎400-159-8559转接5555(来电预约)【售楼中心】
咨询高峰期请耐心等待,预约来电尊享内部优惠,专业一对一热情服务,让您用专业眼光去买房。



高层户型鉴赏:





◆◆◆长沙 三一云湖🏠🏠
售楼处电话☎400-159-8559转接8899【已认证】来电尊享优惠活动
◆◆◆长沙 三一云湖🏠🏠
营销中心电话☎☎400-159-8559转接8899【已认证】【售楼处指定网站】预约热线
◆◆◆温馨提示——拨打400电话☎☎听到嘀声后——输入【8899】即可通话➢ ➢
本项目采用预约制,过来营销中心参观样板间请记得提前拨打开发商楼盘售楼处400热线电话在线预约,感谢您的配合!
免责声明:本宣传资料所有文字、数据、图片及所标尺寸等仅为本项目建设区域设计效果的表达和示意,为要约邀请,不构成要约内容,相关内容不排除因政府相关规划、规定及其他原因而发生变化,一切有关房屋的具体信息以书面合同及政府最终审批文件为准。
免责声明:本文章文字、数据和图片皆来源网络,如有侵权请告知立马删除,数据图片仅供参考,不作为邀约或承诺