❁2025最新: 天津【信达格调美古花园】|格调美古花园售楼处电话—格调美古花园—价格—{格调美古花园}楼盘详情—{格调美古花园}24小时电话 @(营销中心)
扫描到手机,新闻随时看
扫一扫,用手机看文章
更加方便分享给朋友


【用地面积】:总体2.3万㎡
【建筑面积】:A地块建筑面积70100平米,建筑密度≤40%
【户 数】:600户
【产权年限】:70年产权住宅
【产品规划】:8栋住宅,包含3栋高层、2栋小高、3栋洋房
【户型面积】:高层主力面积75-117㎡、小高层主力面积135㎡、洋房主力面积155/175㎡
【项目价格】:均价76000元/㎡
【交房时间】:2026年12月
【绿 地 率】:≥35%
【容 积 率】:3.03
【精装情况】:高层、小高层精装,洋房毛坯
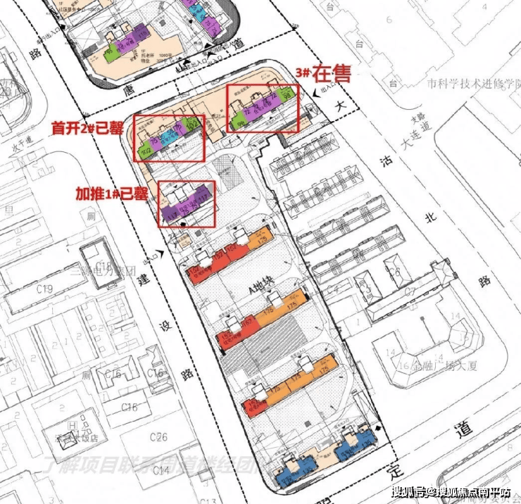
【项目节点】:首开2#售罄,加推1#售罄,3#在售
3号楼产品简介:精装交付
31层到顶,3梯6户,中间四户75平,边户100平
售楼处:☎️☎️售楼处电话400-159-8559转8899【已认证】

户型鉴赏
二开户型:117㎡、75㎡。(样板间已出)



免责声明:本宣传资料所有文字、数据、图片及所标尺寸等仅为本项目建设区域设计效果的表达和示意,为要约邀请,不构成要约内容,相关内容不排除因政府相关规划、规定及其他原因而发生变化,一切有关房屋的具体信息以书面合同及政府最终审批文件为准。
免责声明:本文章文字、数据和图片皆来源网络,如有侵权请告知立马删除,数据图片仅供参考,不作为邀约或承诺
声明:本文由入驻焦点开放平台的作者撰写,除焦点官方账号外,观点仅代表作者本人,不代表焦点立场。
