深圳后海招商玺售楼处电话(后海招商玺)官方首页网站-营销中心欢迎您-楼盘详情•最新价格-户型图-容积率@售楼处AI热搜
扫描到手机,新闻随时看
扫一扫,用手机看文章
更加方便分享给朋友
全新奢级“玺”来袭!
在“5000万蹲”的豪宅之上再加码,由豪宅基因强大的央企招商蛇口重金打造,赋予了更多豪横品质的后海招商玺,现已绚丽绽放!
还没有买到湾芯豪宅的塔尖族群,敬越体验玺品质!
因为后海招商玺,可能是“四大天王”中,最懂超级豪宅品质与超级“老钱”富豪生活的全球级范本!
昨天,招商“玺”系新品——后海招商玺压轴登场,项目样板房惊艳绽放!现场人气爆棚。
极致的隐奢美学,引发大量“老钱”富豪追捧,现场尤其出现了许多“招商老业主”及新派富豪族群,都对“玺”系新品十分称赞。
顶豪之争,榜一大哥巅峰巨作,再无悬念!
项目实景图
关于深圳湾豪宅,“玺”系才最有话语权!
而在“好房子”当道的如今,后海招商玺作为招商在深圳的升级版“好房子”产品,以高于行业标准的水平,给出了一场人本主义的超级革新答卷。
全新晋级标杆的后海招商玺,占位深湾无界生活核心的板块,在招商7大“好房子”体系的加持下,以突破性的“玺系”3.0产品力,即将惊艳入市!
项目经典立面示意图
项目首批推出T1栋,建面约197㎡、建面约237㎡纯四房户型,房源仅40套,臻席非常有限。
项目以2梯2户专梯入户的纯板楼,打造楼高仅90m的21层稀缺小高层,叠加尊贵私密的私享电梯厅优势,项目户型高拓使用率高达93-95%,在拔高空间尺度的同时,更注重居住体验感和实用性。
项目还采用框架结构设计,重构承重关系,不仅带来“全景舱”无界景观视野,让空间也更灵活多变,全屋更少承重墙,满足全生命周期的使用需求,打造一步到位的“第一居所”。
奢级门庭示意图
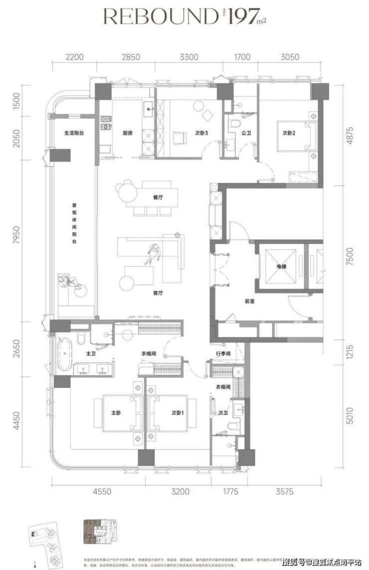
建面约197㎡户型为4房2厅3卫的正四房设计,全屋通透明厨明卫,豪气阔绰的客餐厅超大通厅,带来云端墅居的空间感。
该户型还高配约8m长的极目宽景阳台,空间面积达到约22㎡,相同面积下比其它几大顶豪的阳台尺度还要奢阔,将无界瑰丽景观定格为家的唯美色彩。
全屋卧室配备新规800mm宽尺飘窗,次卧套打造3.2mx4.5m的22㎡奢阔空间,为每一个家庭成员带来专属的尊贵生活尺度。
主卧套房采用豪华套房+步入式衣帽间的设计,开间约4.6m,进深达4.5m,搭配270°环幕飘窗,带来面积达38㎡的星级奢华空间。
建面约197㎡户型图
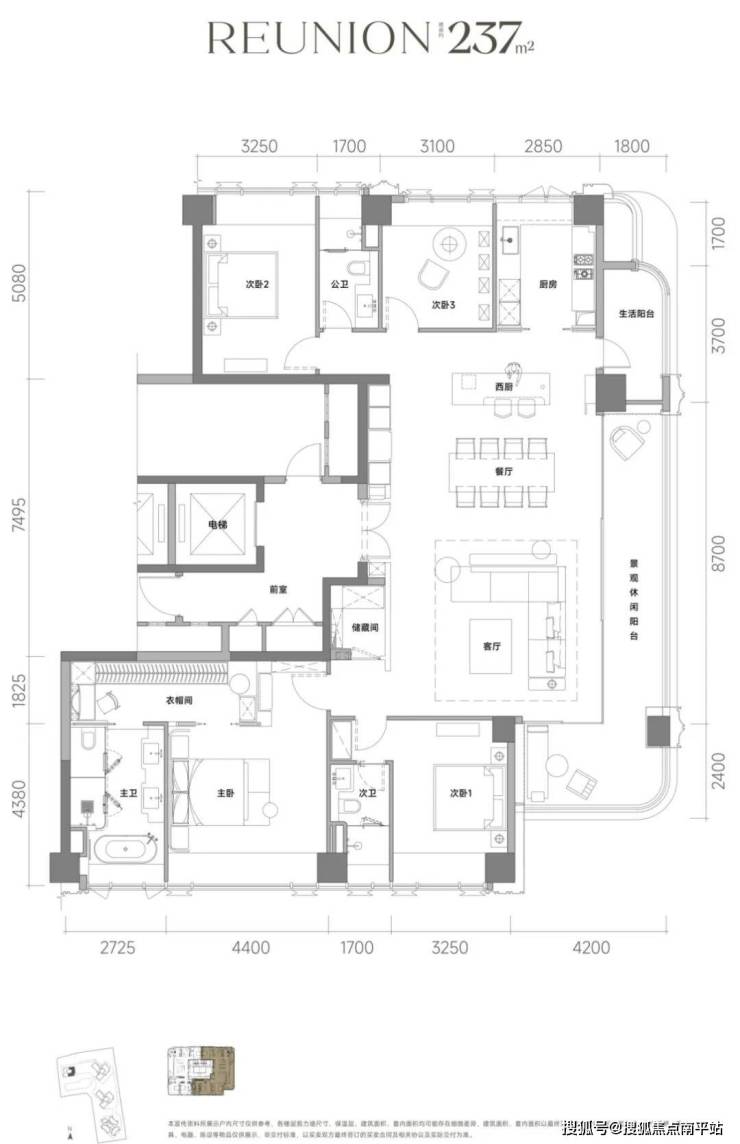
建面约237㎡户型,则为更为豪奢的大四房设计,全屋采用双龙抱珠结构,约9.2m面宽的LDKBX超大转角通厅,面积高达60㎡,接近标准羽毛球场65㎡的尺度!
从超大横厅,视线转向圆弧形、超长、超大奢阔大阳台,整个深圳湾城市辉煌界面,270°尽收眼底,直击体验成功人生的巅峰。
厨房还在中厨之余增加了西厨岛台、岛台电磁炉等豪华配置,屋内还配备了家政储物间,满足塔尖家族的生活需求。
样板房实景图
主卧豪华套房更是做到约44㎡的尺度,高配超长的奢享衣帽间,与太子湾招商玺建面约425㎡的主卧尺度相当,带来层峯极致的尊贵享受。
该户型还搭载了长约18.8m的270°环幕式双阳台,除了景观阳台和生活阳台的功能区分,更增加了“X”百变空间,实现场景与功能的无限延展。
建面约237㎡户型图
今年,深圳湾“四大天王”豪宅齐发,上演十年难遇的豪宅盛世。在豪宅扎堆竞争激烈的红海阶段,当稀缺资源、核心地段、高端品质成为基本要素时,单纯的地段论和产品论,都已不足以打动高净值人群。
唯有像后海招商玺这样,在地段、产品、圈层、审美、品牌都做到极致的全能选手,才能定义真正的豪宅价值。
项目实景图
面对深圳湾豪宅如何选择的问题,后海招商玺提供了一个不靠煽动、不靠浮华的答案——真正懂生活、懂产品、懂隐奢之美的“一生之宅”。
免责声明:本宣传资料所有文字、数据、图片及所标尺寸等仅为本项目建设区域设计效果的表达和示意,为要约邀请,不构成要约内容,相关内容不排除因政府相关规划、规定及其他原因而发生变化,一切有关房屋的具体信息以书面合同及政府最终审批文件为准。免责声明:本文章文字、数据和图片皆来源网络,如有侵权请告知立马删除,数据图片仅供参考,不作为邀约或承诺。
声明:本文由入驻焦点开放平台的作者撰写,除焦点官方账号外,观点仅代表作者本人,不代表焦点立场。
