2026厦门热搜好房✦象屿·凤鸣雅颂(官方售楼处发布)首页网站-象屿·凤鸣雅颂营销中心-象屿·凤鸣雅颂欢迎您-楼盘详情-最新价格-户型图-容积率@售楼处
扫描到手机,新闻随时看
扫一扫,用手机看文章
更加方便分享给朋友

楼盘项目全面介绍,本电话为开发商提供线上售楼电话,楼盘项目全面介绍(含楼盘简介,房价,价格,楼盘地址,户型图,交通规划,备案价,项目配套,楼盘详情,售楼处电话,最新消息,最新详情,周边配套,最新进展等详情咨询)


南House 关注我们


教育配套:地块紧邻双十中学和实验小学翔安校区;

生活配套:地块西北侧将结合地铁规划现代化地铁商业综合体、闽蓝城市广场、豪享来商业街区、东山公建群;

医疗配套:东北侧翔安医院直线距离约1公里;
休闲配套:地块周边坐落市民广场、东山公园、翔安中心公园、鼓锣公园等众多大型城市公园;

交通条件:地块周边主要路网均已建成通车,可快速通达各大城市快速路进岛,直通全城;且紧邻地铁3号线及规划地铁5号线交汇站点市民中心站。

象屿·凤鸣雅颂是象屿地产继上海天宸雅颂后的第二座【雅颂系】高端改善作品,也是翔安首个第四代生态住宅项目,主打“学区+品质+生态”的复合卖点。

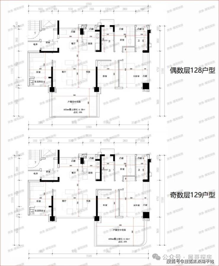
项目规划4栋高层、3栋洋房。高层产品为87-99平三房产品,洋房为第四代住宅产品,具体128平四房、139平4+1房。其次,项目还配备1500平下沉式会所和1900平全龄架空层。
翔安首创四代宅,空中森屿露台,错落设计,垂直绿洲庭院房屋综合使用率104%,延展享受尺度3大焕新精装。
项目四栋高层规划为87-99平三房产品,其中87平三房两厅两卫为中间套,99平三房两厅两卫为边套产品,二者合计约520套,占比约85%;
项目三栋洋房规划为128平四房两厅两卫、139平4+1房两厅两卫四代宅产品,二者合计约94套,占比约15%。

免责声明:本宣传资料所有文字、数据、图片及所标尺寸等仅为本项目建设区域设计效果的表达和示意,为要约邀请,不构成要约内容,相关内容不排除因政府相关规划、规定及其他原因而发生变化,一切有关房屋的具体信息以书面合同及政府最终审批文件为准。
免责声明:本文章文字、数据和图片皆来源网络,如有侵权请告知立马删除,数据图片仅供参考,不作为邀约或承诺。
声明:本文由入驻焦点开放平台的作者撰写,除焦点官方账号外,观点仅代表作者本人,不代表焦点立场。
