Ⓐ武汉《城建承宁府》售楼处电话✆(2025精选新房)城建承宁府㊟免费预约通道-楼盘最新详情【Ai热搜】-售楼处权威发布!
扫描到手机,新闻随时看
扫一扫,用手机看文章
更加方便分享给朋友
武汉《城建承宁府》售楼处电话VIPline:400-159-8559转6666(营销中心认证)
售楼处价格,户型图,房源,地址,电话,样板间,周边配套,项目介绍
武汉《城建承宁府》销售中心电话VIPline:400-159-8559转6666(已认证)
☎️☎️☎️☎️☎️☎️☎️☎️售楼部电话-开发商营销中心热线咨询
楼盘最新介绍:售楼处电话;备案价、折扣、户型图、优缺点、
得房率、优惠活动、小区图片、开盘时间、周边配套、最新资料

城建承宁府是武汉城建集团携手硚口城市更新集团一起打造的,该项目位于硚口区京汉大道与利济北路交汇处。项目打造首座第四代新中式雅宅——承宁府,以“安全、舒适、绿色、智能”四维标准重构人居标杆项目位于国广、恒隆旁,打造的是准四代住宅,新中式美学馆5月1日开放。

项目共规划7栋住宅,其中包含一栋洋房,预计推出建面约115-170㎡四代住宅。承宁府以2.5的超低容积率,规划套均面积约135平,但项目首期主打建面约115-170㎡户型,起步户型115平,面积不算太大,所以总价门槛比预期要低一些。

项目基础信息
【总建筑面积】:约12万方
【容积率】:约2.5
【规划总户数】:546户
【产品类型】:住宅
【交付标准】:精装
【车位配比】:1:1.09
商业配套
约300米步达国广商,恒隆,K11吃喝玩乐一站式服务。
休闲配套
约600米即达百年浓荫市内的核心中山公园。
医疗配套
项目紧邻京汉大道旁边就是解放大道三把刀同济,协和,161守护您和家人健康。
教育配套
旁边名校云集对口崇仁路小学(省重点)、十一中(普高率66.7%)小区上什么学校还是以具体交房划片为准。
交通配套
地铁出行:项目约200米至1号线利济北路站、约800米至2号线中山公园站,
开车出行:位于内环,紧邻京汉大道,高效通勤,纵横全城。
武汉《城建承宁府》售楼处电话VIPline:400-159-8559转6666(营销中心认证)
售楼处价格,户型图,房源,地址,电话,样板间,周边配套,项目介绍
武汉《城建承宁府》销售中心电话VIPline:400-159-8559转6666(已认证)
地段:烟火气与便利性的极致融合
项目位于中山大道与前进二路交汇处,水塔街美食、江汉路商圈、民众乐园等老武汉地标环伺,生活氛围醇熟 —— 下楼即购热干面,巷弄间可寻宵夜,烟火气扑面而来。
武汉城建承宁府打造的是四代住宅,项目方对外释放的信息也说明了这一点,并且是新中式风。四代住宅,目前已亮相115、125平户型,得房率约95-98%左右
武汉《城建承宁府》售楼处电话VIPline:400-159-8559转6666(营销中心认证)
售楼处价格,户型图,房源,地址,电话,样板间,周边配套,项目介绍
武汉《城建承宁府》销售中心电话VIPline:400-159-8559转6666(已认证)
主推面积段115-170平米,最大得房率宣传超100%,但目前已对外释放的户型图包含2个,分别是115平的三房,以及125平的三房,都位于1号楼,也就是预计首推的楼栋,得房率大约在95-98%左右,后续会推出约143、170平米户型,但目前户型图尚未出炉。
武汉城建承宁府容积率仅2.5,共包含7栋住宅,其中6栋高层(小高层),一栋洋房。
目前已亮相的两个户型图都位于1号楼,总高21层,两个单元,两梯两户布局。
1号楼位于项目的东南角,南面临京汉大道,东侧临利济北路,会有部分噪音影响。
1号楼建面约115平米户型
115平户型做成了端头边户,这个还是比较少见的,客厅放在了北面,并且设置成了270°全景舱户型,这样就能直接俯瞰小区内部园林;卧室全部设置在南面,保证了充足的光照。
拓展面积也还比较多,加上独立的电梯前室,优化后得房率约98%。
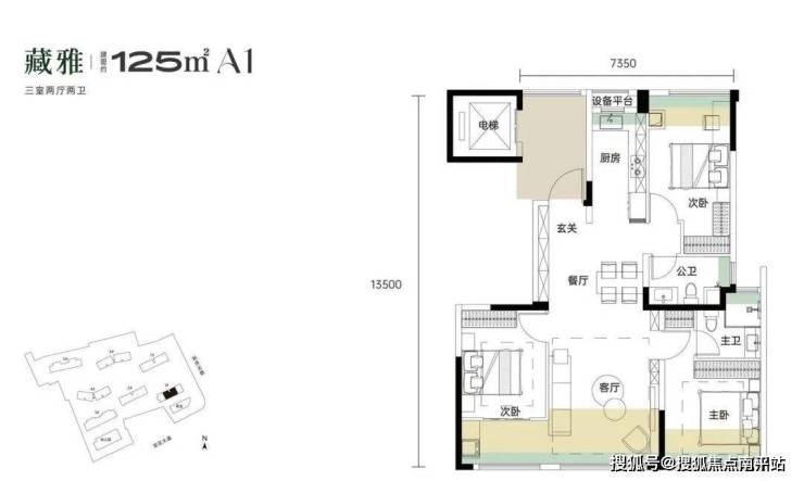
1号楼建面约125平米户型
也是三房两卫的布局,属于内边户,对比115平户型,这个125平的户型布局显得更为常规,南向三开间朝南,南向面宽10.5米,比115平户型略小一点,但客厅放在了南面,晾晒更加方便。
也是有不少的拓展面积,加上独立电梯厅,优化后得房率约95%,略小于115平户型。
这两个户型,小妹个人认为115平户型的景观效果更好一点,270度全景舱的设计也更赞,并且更小的面积,却有相对更大的南向面宽,以及更高的得房率,相对低一点的总价门槛,预计会更受欢迎。
不过,从定价上来说,115平户型单价有可能会比125平高一点,但因为面积小10个平方,最终的总价门槛预计还是会比125平低或者基本持平。
城建承宁府是武汉城建集团携手硚口城市更新集团一起打造的,该项目位于硚口区京汉大道与利济北路交汇处。项目打造首座第四代新中式雅宅——承宁府,以“安全、舒适、绿色、智能”四维标准重构人居标杆项目位于国广、恒隆旁,打造的是准四代住宅,新中式美学馆5月1日开放。

项目共规划7栋住宅,其中包含一栋洋房,预计推出建面约115-170㎡四代住宅。承宁府以2.5的超低容积率,规划套均面积约135平,但项目首期主打建面约115-170㎡户型,起步户型115平,面积不算太大,所以总价门槛比预期要低一些。

城建承宁府小区平面图已经出来了1号楼夹边户比端头边户面积还要大。其他楼栋还有建面约121、125、129、138、140、144、162、166、169平等户型,每栋楼户型都不一样,面积段非常丰富。首推的1号楼为全盘面积段最小的楼栋。从平面规划图来看,楼栋朝向以南偏东为主,平行于京汉大道。也有部分单元朝向有其他方向的偏转。

武汉《城建承宁府》售楼处电话VIPline:400-159-8559转6666(营销中心认证)
售楼处价格,户型图,房源,地址,电话,样板间,周边配套,项目介绍
武汉《城建承宁府》销售中心电话VIPline:400-159-8559转6666(已认证)
免责声明:本宣传资料所有文字、数据、图片及所标尺寸等仅为本项目建设区域设计效果的表达和示意,为要约邀请,不构成要约内容,相关内容不排除因政府相关规划、规定及其他原因而发生变化,一切有关房屋的具体信息以书面合同及政府最终审批文件为准。
免责声明:本文章文字、数据和图片皆来源网络,如有侵权请告知立马删除,数据图片仅供参考,不作为邀约或承诺。
声明:本文由入驻焦点开放平台的作者撰写,除焦点官方账号外,观点仅代表作者本人,不代表焦点立场。
