天津鹏飞天一格(售楼处) 首页 - 鹏飞天一格销售中心 - 环境 - 户型 - 价格 - 地址 - 楼盘详情 - 配套 - 电话 - 交房时间 - 配套 - 电话 - 交房时间
扫描到手机,新闻随时看
扫一扫,用手机看文章
更加方便分享给朋友
鹏飞天一格售楼处电话:400-159-8559转接1111【售楼处线上电话】
鹏飞天一格售楼处电话:400-159-8559转接1111【营销中心VTP通道】
鹏飞天一格销售中心『首页网站』楼层_价格_户型_配套_房源销售详情
免责声明:(本文章所用信息图片来源于网络,如有侵权请联系本网站及时删除
项目基础信息:
开发商名: 山西鹏飞集团
总户数:892户
户型面积:
①高层:96㎡,110㎡
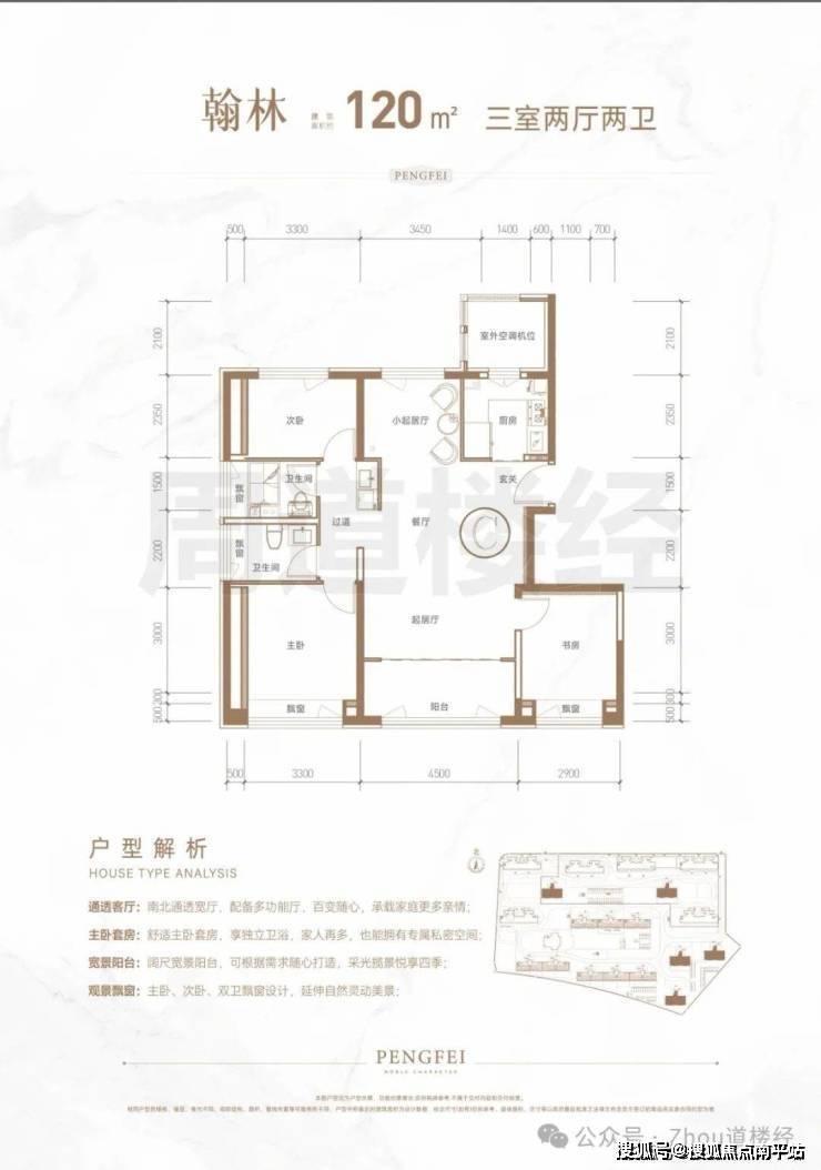
②小高:120㎡
容积率:2.73
绿地率:40%
产权年限:70年产权
车位:1239个
交房标准:毛坯
高层销售均价:约27000元/㎡
小高销售均价:约30000元/㎡
首开楼栋:小高3#、高层16#
楼座鸟瞰图:

鹏飞·天一格雄踞河东海河富民路板块,海河与护库河,双河景资源。坐享四横三纵多维路网,畅达全城。醇熟商圈环伺,汇聚都市繁华。拥揽稀缺自然资源,尽享惬意生活。
二、户型鉴赏
三、周边配套
✅多维路网
1️⃣四横:津滨大道、津塘路、海河东路、大沽南路,接驳和平、河西、滨海及津南等行政区
2️⃣三纵:昆仑快速路、富民路、东兴路,快速联通小白楼五大道文化旅游区等城市腹地:
3️⃣三轨:直线距离约1.2km可达1号线陈塘庄站、9号线中山门站,11号线海河东路站,三地铁轨道交通,高效出行,优速畅达;
✅醇熟商圈
项目周边约2km范围内享八大里商圈、凯德MALL商圈,约4km范围内享万爱商圈、文化中心商圈、小白楼商圈,同时毗邻富民路便民商圈与中山门便民商圈,满足多元生活需求。
✅健康医疗
项目周边拥有五家大型全科三甲医院,驱车约10分钟可达天津胸科医院、环湖医院、天津市三中心医院;驱车约15分钟可到达天津医科大学第二附属医院、天津医院。强大的医疗资源,为您和家人的身体健康保驾护航。
✅自然人文
享两河三公园稀缺自然资源,收藏自然河景,毗邻二宫公园、富民公园,距代建的约1.8万方文体公园仅一路之隔,作为项目的后花园,集休闲、体育于一体,为业主提供亲近自然、休闲运动的理想场域。
✅学校教育
鹏飞·天一格,引入12年制天津市一中河东鹏飞学校,未来项目业主可享受定向转学及直升天津市一中河东鹏飞学校初中部的专属权益。作为天津基础教育标杆,天津一中77年来培育出20余位两院院士,更培养出众多政商领袖,其高中部本科录取率持续99%,985录取率超85%,年均输送清北学子逾20人;初中部重点高中达线率稳居全市前三天津市一中河东鹏飞学校由河东教育局统筹规划、鹏飞集团代建,承载着河东区打造基础教育强区的战略部署,已遴选骨干教师赴一中本部完成为期两年的浸润式培养,未来也将引入一中本部师资管理团队,打造复合型师资矩阵,为河东区树立优教典范。孩子未来如顺利考入该校高中部,即可真正实现12年目送式教育。以教育为锚点,聚合同频的高知家庭构建人文社区范本。这里不仅是未来院士、学者的邻里圈层,更以人文社群为纽带,构建起家庭间的精神共鸣与资源共享生态,让名校基因、圈层势能与河岸贵壤共塑理想生活。
区位图:
四、开发商品牌介绍
鹏飞集团2024年中国企业500强,位列第240位,中国民营企业100强,位列第92位,中国制造业500强,位列61位。千亿资产、千亿营收,公司的硬实力、资金实力是我们领先传统房企的最大底气。
历经30年,鹏飞集团发展至今,有十大板块的产业,包含原煤采掘,精煤洗选,焦炭冶炼,现代化煤工厂,氢能产业,汽车制造,智慧物流,文旅酒店,可再生能源利用,地产开发。
💠核心板块之一:原煤采掘,精煤洗选,焦炭冶炼是我们企业经济发展的根基;
💠核心板块之二:氢能产业是我们企业转型发展的重要方向,集团斥资780亿元,发展氢能源建设,打造集制、储、运、加、用、研及装备制造为一体的现代氢能源产业体系。

💠核心板块之三:氢能车制造,包含氢能重卡,氢能公交大巴,氢能垃圾运输车,氢电单车均已完成研发投产,其中氢能重卡已投运两百辆。
💠核心板块之四:成立万辆重卡大物流运输公司,与国际知名投资公司红杉资本合作,搭建全国范围的零碳智慧物流运营管理平台。
💠核心板块之五:利用焦炉煤气、低温合成原理, 生产甲醇、LNG 、合成氨。实现可再生能源的再利用,真正实现零碳环保;
💠核心板块之六:文旅酒店,我们有5个文旅项目,五星级酒店5家;
鹏飞天一格售楼处电话:400-159-8559转接1111【售楼处线上电话】
鹏飞天一格售楼处电话:400-159-8559转接1111【营销中心VTP通道】
鹏飞天一格销售中心『首页网站』楼层_价格_户型_配套_房源销售详情
免责声明:(本文章所用信息图片来源于网络,如有侵权请联系本网站及时删除
声明:本文由入驻焦点开放平台的作者撰写,除焦点官方账号外,观点仅代表作者本人,不代表焦点立场。
