最新首页—三亚【华润观岚】售楼处电话丨华润观岚楼盘详情丨地址丨户型丨配套→售楼处电话→楼盘百科→Ai热搜房源→24小时热线电话
扫描到手机,新闻随时看
扫一扫,用手机看文章
更加方便分享给朋友
4001598559,8080
华润置地·观岚
约110-180㎡纯板式观景度假产品
开发商:海罗第壹城市更新建设开发有限公司
项目地址:三亚市吉阳区迎宾路与海螺一路交汇往南1.2公里(七小海罗校区南侧)
【建筑面积】一期总建筑面积约6.5万㎡
【容积率】2.5
【绿地率】40%
【产权年限】70年住宅
【 总 体 量 】住宅约540套
【住宅层高】小高层17F,1梯2户
【面积区间】110-130-180㎡(110-130可做三房、180平可做四房)
【车位配比】1:1.2(约671个地下车位)
【物业】华润万象生活、物业费暂定
【交房时间】预计2025年12月底(可预售)
【小区配套】
首层全架空,中轴为海洋冲击河谷主题,拥有750平沙滩边际泳池,游艇甲板和椰风甲板双侧主题泛会所约1200平。配有健身房、书吧室内儿童活动区,会客区,亲水平台。
其余架空区域:棋牌室,乒乓球室及儿童活动区。
项目卖点🌴:
1.位置:位于三亚核心区域,中央商务区海罗单元
2.城市更新海罗片区:打造国际花园总部、国际人才社区
3.公园环抱:国家4A景区凤凰岭公园、临春岭公园、红树林生态公园、东岸湿地公园、金鸡岭公园、中央公园、体育公园
4.商业配套:海旅免税城、海旅超体、大悦城、青春颂、乐天城
5.医疗配套:上海妇幼保健院、三亚市第三人民医院、三亚市人民医院、三亚市中医院
6.教育配套:海罗小学,4公里内有巴蜀中学,丹州小学,华侨学校高中部,丰和学校等。
7.项目特点:三亚市区内唯一围合式小高层住宅,野奢高端度假社区。内造园,园观山,小户型观园区景观,大户型直面凤凰岭,自然与山景相融。
8.得房率:私家电梯厅私密独享,户内超高赠送,户户近100%得房率。
🗺️项目区位图
🏞️海罗城市更新规划图
对标案例:苏州金鸡湖、上海碧云社区、新加坡克拉码头。
🏡项目楼栋示意图
✨亮点:围合式布局,打造南北通透,户户观景,以中轴水系延伸景观设置泛会所入户大堂。游园式归家,双动线,保证南北两个组团独立,整体增强私密性,减少居住干扰。
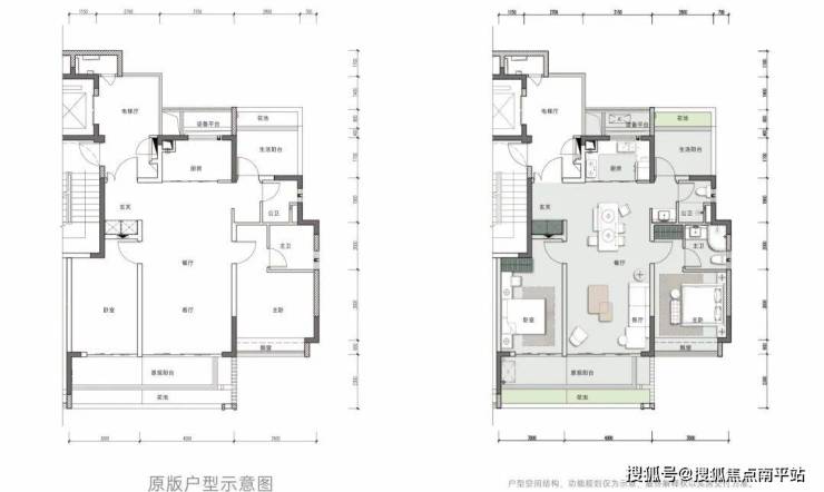
(示意图)
户型鉴赏:
🧨110㎡中间户《通厅三面宽户型》
亮点:可做三房使用,LDKB一体格局,三个卧室独立分布,U型厨房,动线简洁互不干扰。
🧨130㎡《巨幕宽厅户型》
亮点:南向客厅面宽7米进深4米,空间利用率高,L型厨房联动客厅,南向面朝景观公园带。
🧨180㎡《环幕全景舱户型》
亮点:南向双套房,客厅设置双动线,归家更有仪式感,转角厅,私享东南向最佳景观视野。
特别说明:
1.本文为要约邀请,不作为要约或承诺;相关宣传内容不排除因政府相关规划、规定及出卖人分期规划、未能控制等原因而发生变化;
2.本文部分图片来自于网络,如涉及版权使用,请联系删除;文本部分图片仅作为推广示意使用,非交付标准,最终以实际交付现状为准;
3.本宣传资料对项目周边学校等教育资源的介绍旨在提供相关信息,并不意味着本公司对就学安排作出承诺。教育资源的名称、办学性质、办学规模、学位设置、开学(班)时间、招生条件、收费标准及招生区域存在调整的可能,应以政府教育主管部门及办学方颁布的政策规定为准;
4.本资料对项目或产品的介绍,旨在提供相关信息,不意味着本公司对此作出了承诺,买卖双方的权利义务以《商品房买卖合同》及附件等协议为准;
5.宣传方保留对宣传资料修改和解释的权利;
声明:本文由入驻焦点开放平台的作者撰写,除焦点官方账号外,观点仅代表作者本人,不代表焦点立场。
