宁波建发瑞云【99-174】㎡新房_开盘价格_项目价格_建发瑞云售楼处电话_地址_建发瑞云楼盘详情
扫描到手机,新闻随时看
扫一扫,用手机看文章
更加方便分享给朋友
建发瑞云售楼处电话:400-159-8559转1111
看房方式:建发瑞云售楼处位置电话400-159-8559转1111(开发商认证)
2.预约方式:拨打建发瑞云售楼处电话400-159-8559转1111(售楼处认证)
3.预约信息:需提供姓名、联系方式、预计到访人数及到访时间。
今天看下它的过程稿,现场展厅已有正式稿。
不得不说建发在户型设计上还是很懂宁波人的。即便不是四代宅的几个户型也非常有吸引力。项目所有楼栋都是1梯2户或者2梯2户,这一点也很棒!
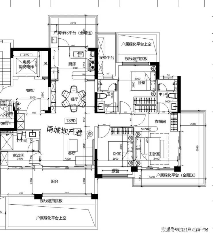
139/174平的第四代住宅整体户型一致,露台上有区别。
99平
109平
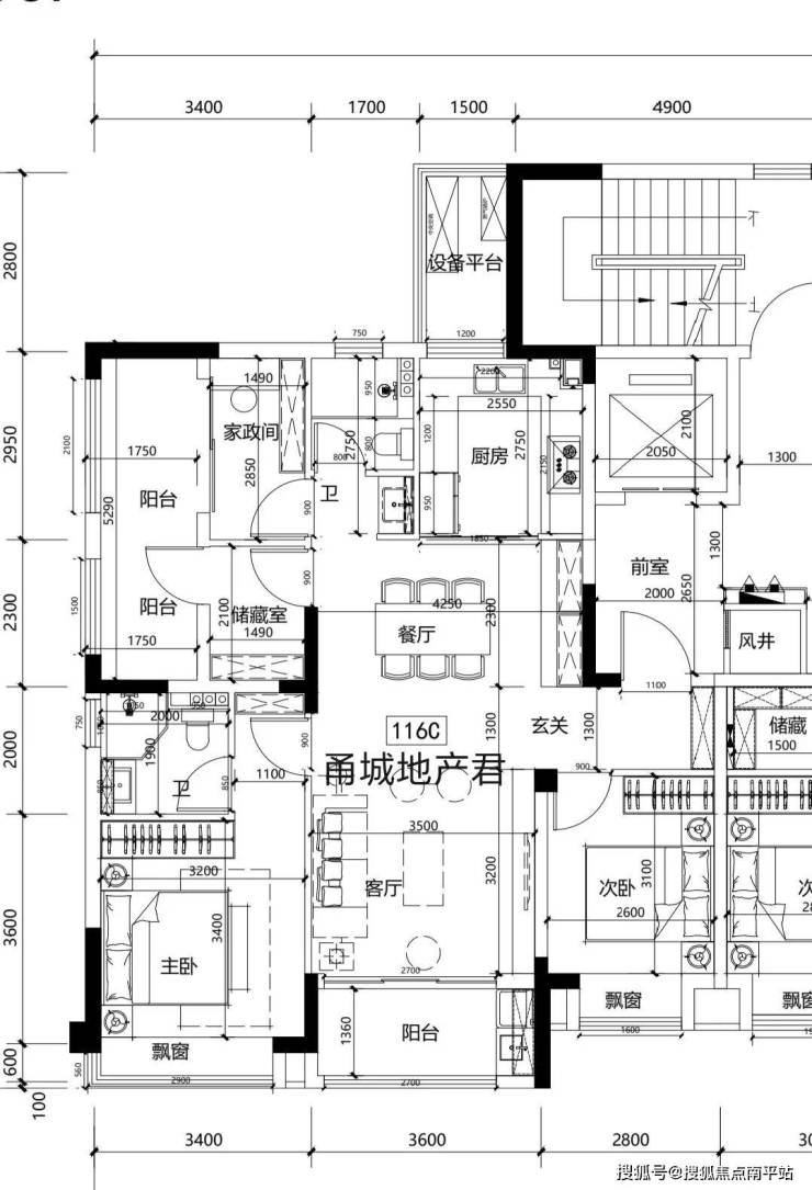
116平
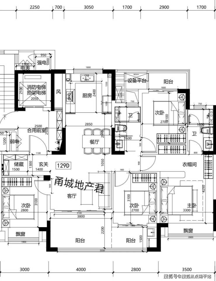
129平
建发瑞云售楼处电话:400-159-8559转1111
看房方式:建发瑞云售楼处位置电话400-159-8559转1111(开发商认证)
2.预约方式:拨打建发瑞云售楼处电话400-159-8559转1111(售楼处认证)
3.预约信息:需提供姓名、联系方式、预计到访人数及到访时间。
声明:本文由入驻焦点开放平台的作者撰写,除焦点官方账号外,观点仅代表作者本人,不代表焦点立场。
