长沙运达大泽湖(长沙运达大泽湖)售楼处电话➢预约看房➢楼盘详情-2026最新房价【营销中心官网➢预约看房】
扫描到手机,新闻随时看
扫一扫,用手机看文章
更加方便分享给朋友
这块地是2023年8月,运达与永通这家做汽车的公司联合摘得的,限价10300元/平米,折合楼面价2722元/平米。
根据总图,这个项目规划了19栋住宅,10栋小高层和9栋第四代住宅。我们先看一下户型吧。
一、小高层产品
1、135平米

2、156平米

3、222平米

二、第四代住宅
1、238平米奇数层

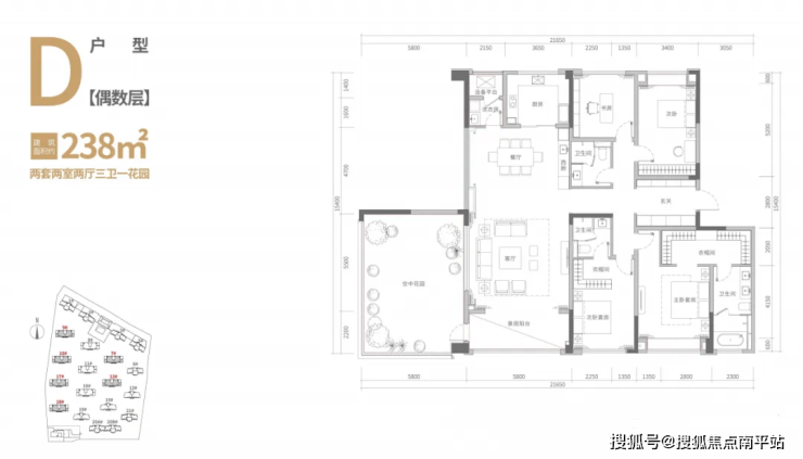
2、238平米偶数层

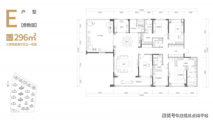
3、296平米奇数层

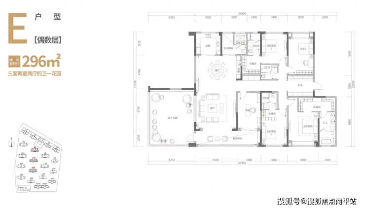
4、296平米偶数层

声明:本文由入驻焦点开放平台的作者撰写,除焦点官方账号外,观点仅代表作者本人,不代表焦点立场。
