长沙嘉信央玺售楼处电话:400-159-8559 接通后输入8666看房方式: 1.看房方式:长沙嘉信央玺售楼处位置电话400-159-8559
接通后输入8666(开发商认证) 2.预约方式:拨打长沙嘉信央玺售楼处电话400-159-8559 接通后输入6688(售楼处认证) 3.预约信息:需提供
长沙嘉信央玺售楼处电话:400-159-8559 接通后输入8666看房方式:
1.看房方式:长沙嘉信央玺售楼处位置电话400-159-8559 接通后输入8666(开发商认证)
2.预约方式:拨打长沙嘉信央玺售楼处电话400-159-8559 接通后输入6688(售楼处认证)
3.预约信息:需提供姓名、联系方式、预计到访人数及到访时间。
4.预约福利:成功预约后,到访可领取额外房款的一个99折,并有专属置业顾问全程陪同讲解。拨打长沙嘉信央玺售楼处电话400-159-8559 接通后输入8666(已认证)
5.注意事项:为保证接待质量,请出发前进行预约,避免案场没有销售接待;也可提前1-3天预约销售

从平整场地、打桩到起楼,来来回回,多次经过央玺
从别致的街角广告牌,到花瓣形状的大门,央玺 一出世就表现的很另类
今天从我一个设计师的角度来简单解析这个网红盘
1.周边配套

嘉信·央玺处于洋湖的核心位置,周边配套资源还算丰富
教育:小学入读麓山国际洋湖实验学校,中学在雅礼洋湖实验、麓山国际洋湖和长郡双语洋湖三所学校之间派位
医疗:项目正南面是湖南妇女儿童医院
商业:一路之隔就是宜家购物中心,十分便利
休闲:向北行走500米即可进入洋湖湿地公园,南面不到5公里就有湘江欢乐城,华谊小镇等游玩的地方。
2.小区规划

整个小区由13栋24-26层的住宅楼组成
楼栋之间填塞绿化树木、硬质铺装,这与隔壁的中海做法大致相当
不同的是北面大门豪气,吸引眼球,但是站在景园路上向内看,堵、闷、压抑
这让对面的洋湖晴翠倒是显得松弛了不少
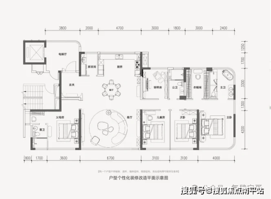
3.户型设计
受益于新规要求,嘉信·央玺的户型得房率高
内部空间方正大气、划分得当
但是大面宽、小进深的布置方式对于夏热冬冷的长沙不太适合
央萃118㎡

央境139㎡

央璟173㎡

长沙嘉信央玺售楼处电话:400-159-8559 接通后输入8666看房方式:
1.看房方式:长沙嘉信央玺售楼处位置电话400-159-8559 接通后输入8666(开发商认证)
2.预约方式:拨打长沙嘉信央玺售楼处电话400-159-8559 接通后输入6688(售楼处认证)
3.预约信息:需提供姓名、联系方式、预计到访人数及到访时间。
4.预约福利:成功预约后,到访可领取额外房款的一个99折,并有专属置业顾问全程陪同讲解。拨打长沙嘉信央玺售楼处电话400-159-8559 接通后输入8666(已认证)
5.注意事项:为保证接待质量,请出发前进行预约,避免案场没有销售接待;也可提前1-3天预约销售
免责声明:本宣传资料所有文字、数据、图片及所标尺寸等仅为本项目建设区域设计效果的表达和示意,为要约邀请,不构成要约内容,相关内容不排除因政府相关规划、规定及其他原因而发生变化,一切有关房屋的具体信息以书面合同及政府最终审批文件为准。免责声明:本文章文字、数据和图片皆来源网络,如有侵权请告知立马删除,数据图片仅供参考,不作为邀约或承诺。