☎☎400-159-8559转接8666-已认证(来电尊享优惠活动) ☎☎拨打400电话——听到嘀声后——输入8666即可通话-开发商售楼中心 ➢➢网上售楼中心—匠心钜制-恭迎品鉴-欢迎来电咨询-预约一对一讲解-请提前联系售楼处销售进行登记!
☎☎400-159-8559转接8666-已认证(来电尊享优惠活动)
☎☎拨打400电话——听到嘀声后——输入8666即可通话-开发商售楼中心
➢➢网上售楼中心—匠心钜制-恭迎品鉴-欢迎来电咨询-预约一对一讲解-请提前联系售楼处销售进行登记!

初秋的市场,被一场热销打破沉寂,中海时光之境首开,以162套7.2亿战绩强势登顶,让全城再度见证“中海时刻”!

中海时光之境的热销早有预兆,实景示范区自开放起就是“顶流打卡地”:从工作日到周末,从白天到晚上,沙盘、会所、样板间始终挤满看房客户。

济南楼市已经很久没见过这么火爆的人气、这么火热的成交了。
更特殊的是,这是新规发布后,核心区落地的第一个四代宅项目。
虽然四代宅的非议不少,但市场才是验金石: 中海时光之境用“高到访 + 高成交” 交出完美答卷。

四代住宅遥遥领先的产品力,是热销的第一重核心密码。
济南四代住宅现在遍地开花,各大主流开发商加入, 俨然是楼市“新主流”。
放眼全国,哪怕是风沙较多的西北地区、冰天雪地的东北城市,四代住宅都在大量开工建设,销售业绩一片火热。
西安TOP10热销榜单四代住宅占比8成,兰州中海未来之境认筹转认购率100%;大连中海寰宇未来首开成交209套,沈阳四代住宅占据改善市场半壁江山……
而中海时光之境呈现的, 是全国标杆级的四代住宅产品力,从户型到场景,每一处都在重构居住认知。

其一,得房率最高达134%。
放眼整个四代住宅市场,也是前所未见的巅峰。
赠送面积超乎想象,北向设备平台、飘窗空间、半开敞阳台,更不用说高达102平空中花园了。
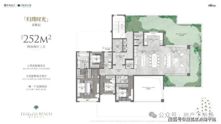
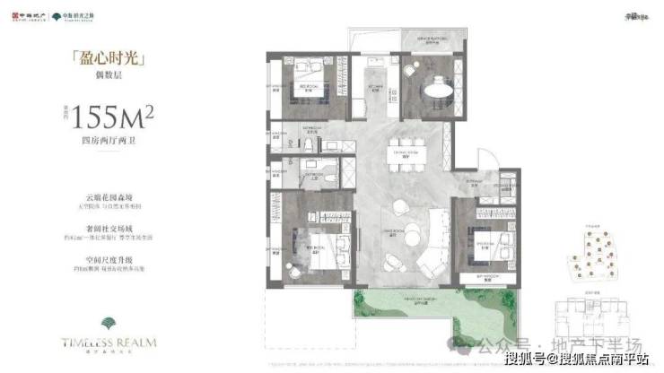
其中155户型最高得房率100%,相当于新规前一百八九十平的产品;252户型最高得房率134%,相当于新规前400平的产品。这种“断层级” 优势,哪个改善客户能拒绝?
其二,空中花园带来的生活场景革新。
目前很多空中花园宽度有限,和阳台还没有拉开差距。
这次中海时光之境空中花园做了极致放大,约3米进深充分体现空中庭院的优势。
同时综合考量可持续维护、使用场景、隐私性与采光需求, 比如奇数层次卧南侧遮挡挑檐,避免上户卧室与下户露台对视。
现在开放的建面约252、155平样板间,充分体现了中海在四代住宅上的产品亮点。
建面约252平户型样板间一开放就在朋友圈、视频平台上不断刷屏,引起广泛热议。


最震撼的是约6.2米挑高客厅,济南不缺少大平层,但基本还没人做出这样双层挑高的大平层产品。

以往双层挑高空间只有别墅才有,这次是真正把大平层做出空中别墅的居住体验。

第二个震撼就是空中花园。从东、南、北三侧270度环绕公共空间, 面积高达约102平,几乎相当于改善房套内面积。




左右滑动查看更多
现场几十个人在空中花园参观,却丝毫不拥挤,孩子们甚至当场就坐下玩耍,到访客户流连忘返、心动不已。
再看155平样板间,亮点在于刷新大家对四叶草户型优势的认知。

这些年我们一味追求大面宽, 其实四叶草户型在舒适度上有很多优势。
四个房间相对独立,更能保障隐私。没有面积浪费,空间利用率更高。再加上最高100%得房率,尺度十分奢阔。

这一户型的空中花园按奇偶层分别位于主卧或次卧南侧,更好地保障客厅采光。约5米宽厅连通露台、空中花园,生活处处被美景环绕。






左右滑动查看更多
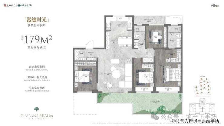
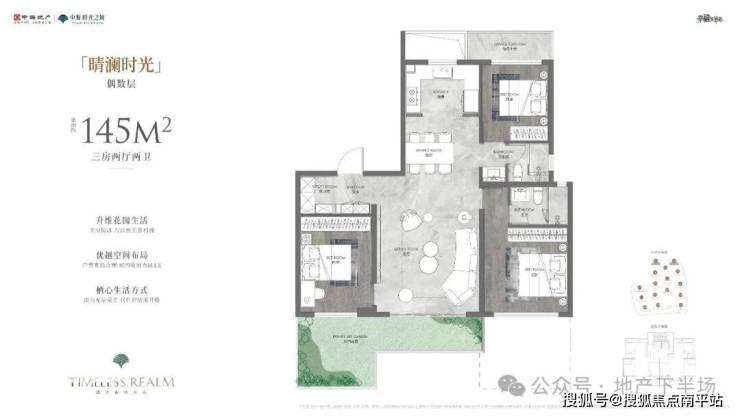
中海时光之境户型选择比较丰富,拥有建面约145平、152平、155平、179平、210平、252平多个户型。起步就是145平,圈层更加纯粹。






左右滑动查看更多






左右滑动查看更多
作为新规后核心区第一个产品, 中海时光之境给济南四代住宅项目树立了产品力和高品质的模板。而首开7.2亿战绩,再次证明济南改善对创新产品的热情远超预期。

中海的“豪宅基因”,是热销第二重核心密码。
真正让中海时光之境站稳“济南豪宅优等生” 位置的,是中海刻在骨子里的 “豪宅专业度”。即便剥离四代住宅光环,也足以让客户趋之若鹜。
容积率仅2.5,以小高层为主的社区规划,在寸土寸金的核心区本就稀缺。

再加上 这是中海的作品。从雪山境的“去化黑马”,到天空之镜的 “主城王者”,再到如今时光之境的 “现象级热销”,中海 “豪宅专家” 口碑早已深入人心。如今市场对省博西齐鲁1号地、济钢项目的期待,同样源于对中海品牌的信任。
信任的原点在于中海一直在解决客户痛点,产品开发始终走在行业前列。
像中海时光之境,是中海好房子Living OS系统在济南首次落地,在安全、舒适、绿色、智慧四大系统守护下,能主动预防房屋使用过程中的隐患。

比如很多家庭都有过卫生间反味困扰,中海通过三大技术从根源解决问题;燃气泄漏能自动报警、自动开窗;15.6英寸智能中控大屏能语音操控全屋家电,提供全屋体检服务等等。
在户型设计上,玄关800库、南向超大采光面、LDKG无界连通空间……同样是市场里的佼佼者。
在精装标准上,中海时光之境直接把配置拉满,采用简一、大金、汉斯格雅、唯宝等国际一线品牌。
最让人惊艳的是嘉格纳家电套装,被誉为“厨电界的劳斯莱斯”,全球顶奢豪宅才有的配置,一套价值超30 万,足见中海的 “诚意”。

而实景示范区,出场就是“可居住的艺术品”级别。
社区大门东西跨度约92米,高约11米,自带城市豪宅地标的恢弘大气。地上和地下双酒店式环岛落客区,豪宅气派扑面而来。

最震撼的是奢石场景密度, 大门使用了大面积巴西木化石奢石;归家大堂柱子使用巴西利亚黑奢石打造,皇家翡翠奢石成就了流光溢彩的背景墙……每一处细节都在诉说质感。

香港郑中CCD大师执笔打造的约2000㎡海派会所,包含健身房、瑜伽室、私宴厅、茶室、艺术长廊、棋牌室、会客厅、VIP 沙龙区等八大功能区,每个空间如艺术品般值得品味。

尤为惊艳的是,会所打造了大面积通顶落地窗设计,将下沉庭院的曼妙风景引入空间,变成休闲娱乐的底色。




左右滑动查看更多
窗外,翡翠之心中央水景波光粼粼,百年老桩紫薇树随风摇曳,恍惚间仿佛置身波斯皇室的费恩花园,度假般的松弛感扑面而来。


会所未来将由中海物业自主运营及管理,对购房者来说,也是颗品质定心丸。

更难得的是, 园区里随处可见流苏花高定符号,让“隐奢气质” 融入每一处细节。

这种处处追求极致、处处代言行业顶尖表达的项目,看了就让人心动,热销自然也就水到渠成。

核心区的丰盛配套,是热销第三重密码。
这几年,济南改善购房越来越聚焦核心区。不只为了丰盛城市资源,更看重核心区强大的抗风险能力。
中海时光之境不仅位于核心区,还是最受改善购房者欢迎的历下区楼盘。所在的盛福片区紧邻奥体、CBD,是CBD附近备受改善关注的居住区。

这几年,盛福片区变化天翻地覆,各类配套拔地而起。
以前还被诟病缺少教育配套, 如今中小学签约甸柳教育集团,高中是山东省实验东校区,从幼儿园到高中的完善教育配套,全市也挑不出几个。
商业上不只紧邻高新万达等十大综合体,济南天环中心也已开业,项目1.5公里处,济南首家山姆会员店主体封顶,商业氛围早已今非昔比。
地铁2、3、6号线(建设中)三条线路,加上奥体中路、花园东路等城市主干道,交通十分便捷。
历下核心区的地段、标杆级的四代住宅产品、中海的豪宅品质背书。中海时光之境首开7.2亿的热销,不过是 “众望所归”。而对中海时光之境来说,这只是传奇的开始。
☎☎400-159-8559转接8666-已认证(来电尊享优惠活动)
☎☎拨打400电话——听到嘀声后——输入8666即可通话-开发商售楼中心
➢➢网上售楼中心—匠心钜制-恭迎品鉴-欢迎来电咨询-预约一对一讲解-请提前联系售楼处销售进行登记!
免责声明:本宣传资料所有文字、数据、图片及所标尺寸等仅为本项目建设区域设计效果的表达和示意,为要约邀请,不构成要约内容,相关内容不排除因政府相关规划、规定及其他原因而发生变化,一切有关房屋的具体信息以书面合同及政府最终审批文件为准。免责声明:本文章文字、数据和图片皆来源网络,如有侵权请告知立马删除,数据图片仅供参考,不作为邀约或承诺。