新房热搜-长沙绿城凤起麓鸣售楼中心最新资料-【绿城凤起麓鸣】售楼电话-户型配套-地址-房价-预约开发商看房专线
扫描到手机,新闻随时看
扫一扫,用手机看文章
更加方便分享给朋友
4001598559,5555
长沙绿城凤起麓鸣
售楼处☎️预约热线:400-159-8559转分机号5555(售楼处.营销中心)【VIP贵宾专线】
温馨提示:看房来电预约、尊享更多优惠!(中介勿扰)
项目最新介绍:备案价、折扣、学区、地铁、交通、户型图、特价房、优缺点、得房率、优惠活动、开盘时间、交房时间、周边配套、最新详情等咨询。
近期一些热销项目,户型似乎都偏向于大面积。
在整体市场偏冷淡的现状下,为什么大尺度、大面积的大平层产品热度不减,足可见其影响力和高端购买力的强劲。
“限墅”之后,能有“别墅级”居住感受的“平墅”似乎已经成为了城市高端品质生活的代表。
不同于别墅产品的多层空间,“平墅”的主要功能都集中在一个平面内,可观的尺度加上出色的通透度都增加了其居住舒适性。
目前市场上,地段位置比较核心的地块,开发商在设计规划时都更倾向于打造180㎡甚至200㎡以上的豪宅户型。

搜建筑此次给大家分享目前市场上在售或者待售的200㎡左右的“平墅”级别的产品,从不同的视角看看这些大平层的魅力所在。
- 01 -
就居住体验来说,“平墅”完全具备“别墅”的优点:
• 核心地段以及城市、景观资源的绝对占有;
• 居住功能“扁平化”,一层内融合生活所需功能;
• 室内层高超高,整体空间感强;
• 面积、开间、进深都大,居住舒适度高;
• 拥有超大立体空中花园,实现户户有庭院;
• 社区、公区及外立面的打造,呈现豪宅气质;
- 02 -
一层一户的大平层,它突破了普通住宅产品的设计理念,实现了一层一户、大面宽、全景观的空间布局,在一定程度上具有“别墅式居住体验”,业内也称其为“扁平化别墅”或“平墅”。
比如越秀联投知识城·居山涧建面约190㎡大平层户型采取了独层独户设计。一梯一户的配置带来四面环景,多面采光,尊贵感和归家私密性更强。200平以下却做到一层一户,市场非常罕见。✅✅✅售楼处𝗩𝗜𝗣☎️预约热线:400-159-8559转分机号5555【已认证】
建面约190㎡户型图

建面约190平户型样板房
总面宽达到约20米,六面宽朝南,能实现真正的南北对流,通风采光一流。
采用端厅设计,并设有11.3米转角阳台,形成了270°无敌景观,而且客厅看出去没有任何遮挡,没有柱子和门框,就好像挂了一幅超大山景画。

建面约190平户型样板房
再比如济南龙湖雲峰原著建筑面积约246㎡户型,“大面宽,270°环幕落地窗、带小院、带露台”,南向面宽非常奢侈的突破了19.5米,而市面上的大平层面宽普遍都在15米左右,超大的面宽不但增加了采光通风面,更是保证客厅270°俯瞰山体生态景观。✅✅✅售楼处𝗩𝗜𝗣☎️预约热线:400-159-8559转分机号5555【已认证】
建面约246㎡户型图

外立面效果图
- 03 -
空间,尤其是景观豪宅产公共空间,理应是承接主人意志,对景观资源极致享有。
“LDKG”新型空间理念,是户型室内公区进阶的表现,设计从情感的维度出发,创造全新的生活方式,主要原因是其满足了人的更高层次需求。
济南龙湖·天奕二期注重公区的打造,通过LDKG一体化、双套房等一系列创新设计,满足现代亲情陪伴、家庭分享、自我独立等多种生活诉求。
建面约249㎡户型平面图
二期项目均采用公区LDKG一体化设计,将客厅、餐厅、厨房、阳台打造为一体化公共系统,保证各功能区域独立又共享。空间的开放创造了无遮挡的生活视野,链接家庭不同角色在不同行为中的视线,满足亲情陪伴。
该户型以8.3m的进深、10.6m的面宽打造88㎡超大边厅,形成全明采光面。中厨采用U型设计,在比一期产品更大的空间尺度内,以三角动线升级烹饪体验,西厨的独立大开间可搭配多种高端配置,满足现代化餐食需求。
阳台打开生活的边界,动线环绕各个生活场景,让空间流动起来,形成广阔的公区视野,生成高频社交。
建面约249㎡户型样板房
建面约249㎡户型样板房
建筑效果图
建筑效果图
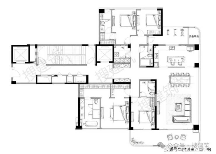
长沙绿城凤起麓鸣建面约285㎡经典户型采用“LDKG”一体化设计,形成无界聚合生活场景,四大公区打破边界、融为一体,构成家庭的核心区域。
270°环幕客厅,Super Flat曲面转角玻璃幕墙、金镶玉高级工艺,带来“超平面”美学体验,阔达8、9米的落地窗,让室内空间与室外景色的界限消融,呈现非凡的享受。
南北通透双阳台,让每一寸空间,变成光影美学之旅。约6m宽中西双厨与餐厅空间相连,动线优越,美味近在咫尺之间。三套房豪华配置,匹配塔尖居住需求,实现家人生活的“平权”。
建面约285户型图

效果图
宁波伟星·玉堰珑印府建筑面积约232㎡户型,从家居的舒适度和房屋面积的利用率上来讲,这样的户型也是目前市场认可度很高的户型。
整个公区设计很大程度上避免了走到面积浪费,在客厅旁还可以开拓出X空间,可改造成书房、茶室、游戏房、瑜伽室等,和X空间相结合,整体空间进一步扩大。
建面约232㎡样板间实景图
整个楼盘的精装标准,每平米在8600到9000之间,客餐厅采用的是土耳其进口的直纹白玉天然大理石,而且石材大量使用了拼花工艺,费时费力费料,足见开发商的诚意。✅✅✅售楼处𝗩𝗜𝗣☎️预约热线:400-159-8559转分机号5555【已认证】

建面约232㎡样板间实景图
建筑南向立面运用浅灰色铝板+银白色铝板弧形框+大面积落地玻璃,东西侧的山墙也是高级铝板。艺术感爆棚,就是一场视觉盛宴。
外立面效果图
- 04 -
很多人向往别墅,其实向往的是前庭后院的生活,因为人天然就喜欢亲近大自然。为了让业主拥有墅级的居住体验,以下的大平层产品打破常规,做了很多突破性设计。
比如南宁万科瑧湾悦严格控制了面积段,选择做更为纯粹的173-255㎡的全板式大平层。从内部每一个空间,我们看到的都是大面积的落地窗户,而从建筑外部看,户型所有观景面都尽可能的使用全屋落地玻璃窗。
建面约255㎡户型图

外立面效果图
由简洁线条和玻璃元素,现代感高级灰的色调勾勒出来的公建化立面轮廓,一方面可以让生活与窗外的风景产生更多交互,另一方面也刷新南宁这座城市的天际线颜值。
再比如昆明绿城·鳳起蘭庭建筑面积约235㎡户型,通过大面宽的阳台,将阳光与风景引入室内,形成生活与城市风光的内外情景联动。
建面约235㎡户型图
春城昆明,阳光、空气、景观资源得天独厚,凤起兰庭充分回应城市资源,采用“无边无际”的概念,创新“LDKS-B”空间模式,即将客厅、餐厅、厨房、书房、阳台进行联动及打通,并为之提供一种全新的当代都市生活载体。

项目实拍图项目实拍图

建筑设计引入“无界”创新理念及“LDKS-B”空间模式,模糊室内外的界限,将客厅(L)、餐厅(D)、厨房(K)、书房(S)、阳台(B)进行联动及打通,营造互动、开放、可变的居住空间,创新城市生活方式。

项目实拍图

项目实拍图

项目效果图
郑州未来天奕阳台采用奇偶错层设计,北向全部有阳台,视野非常宽广,能够很大程度看到东风渠的一线景观;每一户都能拥有无遮挡的观景视野。整个客厅双面全落地玻璃幕的设计,让整个客厅采光和视野无敌,而客厅的面积约80㎡。
同样是建面约288㎡的奇数层和偶数层户型,其最大的区别在于阳台的位置。南北双阳台双A立面,从南北看效果都一样,最宽约4米的悬挑阳台,采用柔美的弧形曲线,错层挑空,层高达到6.3米,既让外立面显得更灵动跳跃,也提升了居住舒适性。

长沙绿城凤起麓鸣
售楼处☎️预约热线:400-159-8559转分机号5555(售楼处.营销中心)【VIP贵宾专线】
温馨提示:看房来电预约、尊享更多优惠!(中介勿扰)
免责声明:本宣传资料所有文字、数据、图片及所标尺寸等仅为本项目建设区域设计效果的表达和示意,为要约邀请,不构成要约内容,相关内容不排除因政府相关规划、规定及其他原因而发生变化,一切有关房屋的具体信息以书面合同及政府最终审批文件为准。
免责声明:本文章文字、数据和图片皆来源网络,如有侵权请告知立马删除,数据图片仅供参考,不作为邀约或承诺
声明:本文由入驻焦点开放平台的作者撰写,除焦点官方账号外,观点仅代表作者本人,不代表焦点立场。
