楼盘详情-天津体北金茂府售楼处电话→2025最新发布(营销中心)→首页网站→楼盘百科详情→24h电话
扫描到手机,新闻随时看
扫一扫,用手机看文章
更加方便分享给朋友
✨✨天津【体北金茂府】✨✨✨
✨✨售楼处电话☎☎400-159-8559转6666(专人接听)✨✽✽✽✽
✨✨营销中心电话:☎☎400-159-8559转6666【VIP预约热线】✨✽✽✽✽
✨✨☞☞Vip贵宾置业==欢迎来电预约尊享内部折扣===匠心钜制恭迎品鉴☜☜
✨✨温馨提示:本项目暂不接受临时到访,过来参观样板房请记得提前来电预约!
📔体北金茂府项目简介
欢迎莅临品鉴
【全新二期新品 火爆入市】
128㎡ —17层2T2—24#在售 —— 600万起
143㎡ —25层2T2—1# 在售 ——650万起
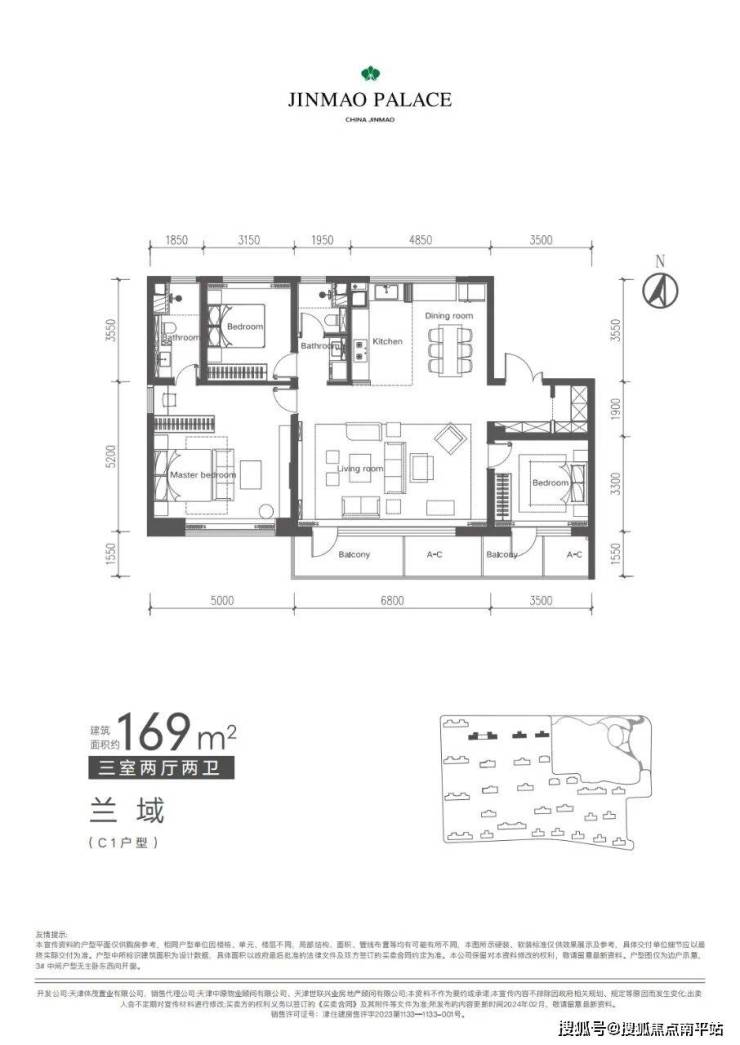
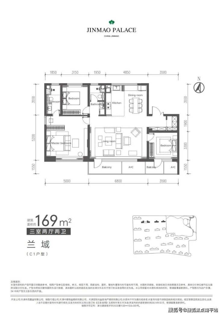
169㎡ —25层2T2—3# 在售 ——850-950万左右
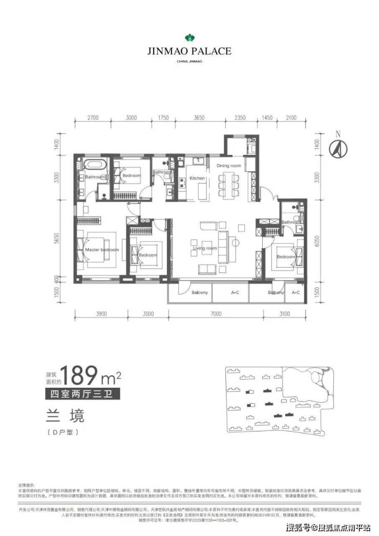
189㎡ —17层 2T2—2#、27#在售 ——1100万左右
一期售罄 26年6月30日前交房
二期新品 27年4月30日前交房
(其中4# 26年12月30日前交)
【土地面积】8.9万㎡
【建筑面积】30.27万㎡,其中地上居住面积20.4万㎡
【项目属性】70年产权住宅
【容积率】2.4
【绿化率】40%
【交房时间】2026年6月/27年4月
【交付标准】精装修
【物业费】 5.95元/平,金茂自持物业
【能源费】75元/平.年(建筑面积计费)
【产品规划】总共28栋住宅,包括高层(25-26F)、小高(15-17F)、类洋房(11F)
【总户数】1307户
【车位数】2572个
【面积户型】建筑面积约128、143、169、189、236㎡
【出房率】售楼处:☎️☎️售楼处电话400-159-8559转6666【已认证】
128平 约74%,赠送后约81%
143平17层小高层 约74%,赠送后约81%
143平25层高层 约70%,赠送后约77%
169平 25层高层约73%,赠送后约80%
169平17层小高层约78%,赠送后约86%
189平 约80%,赠送后约87%
236平 约76%,赠送后约83%
【项目价格】小高17层5.5万-5.8万元左右,25层高层5.1万-5.3万元左右
公路交通:卫津南路、宾水道、黑牛城道快速;轨道交通:地铁5、6(已建成),地铁7号线(在建)
【教育配套】现隶属河西二片 ; 幼儿园:华夏未来幼儿园;小学:河西中心小学等,中学:天津实验中学,第四十一中学、环湖中学、滨湖中学、梅江中学、瑞江中学
【医疗配套】肿瘤医院、环湖医院,解放军464医院,医科大学总院
【商业配套】万象城、奥城商业中心、鲁能城
【生态配套】天塔湖公园、文化中心公园、南翠屏公园、水上公园、晨曦湖
售楼处:☎️☎️售楼处电话400-159-8559转6666【已认证】
✨✨天津【体北金茂府】✨✨✨
✨✨售楼处电话☎☎400-159-8559转6666(专人接听)✨✽✽✽✽
✨✨营销中心电话:☎☎400-159-8559转6666【VIP预约热线】✨✽✽✽✽
✨✨☞☞Vip贵宾置业==欢迎来电预约尊享内部折扣===匠心钜制恭迎品鉴☜☜
✨✨温馨提示:本项目暂不接受临时到访,过来参观样板房请记得提前来电预约!
免责声明:本宣传资料所有文字、数据、图片及所标尺寸等仅为本项目建设区域设计效果的表达和示意,为要约邀请,不构成要约内容,相关内容不排除因政府相关规划、规定及其他原因而发生变化,一切有关房屋的具体信息以书面合同及政府最终审批文件为准。
免责声明:本文章文字、数据和图片皆来源网络,如有侵权请告知立马删除,数据图片仅供参考,不作为邀约或承诺。
声明:本文由入驻焦点开放平台的作者撰写,除焦点官方账号外,观点仅代表作者本人,不代表焦点立场。
