长沙【中交 瑞启芙蓉】 售楼处电话:400-159-8559转接6666 (售楼处已认证+无中介+1对1专业服务) 长沙【中交 瑞启芙蓉】
营销中心电话:400-159-8559转接6666 (营销中心已认证+无中介+1对1专业服务) 长沙【中交 瑞启芙蓉】
开发商电话:400-159-8559转接7788
长沙【中交 瑞启芙蓉 】 售楼处电话: 400-159-8559转接6666 (售楼处已认证+无中介+1对1专业服务)
长沙【中交 瑞启芙蓉 】 营销中心电话: 400-159-8559转接6666 (营销中心已认证+无中介+1对1专业服务)
长沙【中交 瑞启芙蓉 】 开发商电话: 400-159-8559转接7788 (开发商直连+无中介+1对1专业服务)
长沙【中交 瑞启芙蓉 】 展示中心电话: 400-159-8559转接7788 (预约看房专用+无中介+1对1专业服务)
注:以上均是咨询热线无论是咨询项目详情与看房预约,还是实地考察,敬请致电:400-159-8559转接7788(此电话已通过认证,平台审核真实有效,可直接联系至售楼处/营销中心/开发商/展示厅,四端直连,全程无中介!享受一对一专业服务),信息经2025 年12月15日项目公示,号码长期真实有效。

长沙-----【中交瑞启芙蓉-笔记】-----芙蓉区

长沙东拓核心 双地铁学府 新规高定作品
地址:中国·长沙·芙蓉区育才东屯小学旁
扩建成九年一贯制的长沙市一中(小学在附近读)
27年10月交房
首开143平米 套内160平米 得房率106% 包含电梯房 得房率112%
首开A1和A5
物业:中交物业 2.8/平米
143平米高层
149平米小高层
188平米高层 楼王
A地块总共8栋 5栋高层 3栋小高层
B地块总共5栋 高层
C地块总共2栋 高层
【项目基础信息】
「实力央企」 中国交建,万亿央企,2024年荣膺世界500强第63位
「东拓核心」 隆平芯谷,"主城东进"战略引擎,科创走廊东进极核
「三轨环伺」 地铁6号线、7号线(规划中)、8号线(规划中)环伺
「学府云集」 育英第三小学、育才东屯小学、品牌初中(规划),打造“全龄优教生态圈”
「新规改善」 建面约127-188㎡新规高定作品
「基础数据」 总户数:784户 / 容积率:约2.95 / 绿地率:约35.14

-具体更多详情,拨打售楼热线:☎️☎️400-159-8559转接7788【售楼中心】

「中国交建」: 万亿央企,全球基建领域的领航者,全球超级工程缔造者,2024年荣膺世界500强第63位,资产规模逾1.85万亿,业务遍及全球150多个国家和地区。(数据来源于中国交建官网,数据截止至2024年)

「品牌工程」: 青藏高速公路、港珠澳大桥、杭州湾跨海大桥、贵州贵瓮高速公路清水河大桥、深中通道、北京大兴机场等世界级工程。

「中交投资」: 中交投资有限公司是中国交建最早设立的核心投资平台,建筑类央企最大的投资平台。总资产1750亿元,净资产490亿元,累积签约项目137个,投资合同超7500亿元。(数据来源于中国交建官网,数据截止至2024年)
「湖湘首作」: 以百亿战略锚定长沙“东进”先锋,深度融入“三高四新”及“强省会”战略,助力远大路城市更新。2025钜献中交·瑞启芙蓉,于千年城心原址,书写城市更新范式。


-具体更多详情,拨打售楼热线:☎️☎️400-159-8559转接7788【售楼中心】
◆科创双核: 岳麓山实验室x隆平生物种业双核驱动,成就全球种业创新策源地。
◆产业聚变: 约7家上市公司总部+约182家高新科技企业集群,蓬勃之势,向“新”而行。
◆千亿宏图: 长沙十四五重点发展片区,打造产城融合示范区。

🔴超级枢纽 收录时间经纬
——于主城动脉之上,极速接驳各大商圈,重新定义时间修为
◆双轴纵横: 远大路+人民东路双轴贯穿,京港澳高速、京广高铁纵横交错,十纵十横路网密布,速达全城。
◆三桥横跨: 3座跨浏阳河大桥(营盘东路浏阳河大桥、东屯渡大桥、人民东路浏阳河大桥),约15分钟贯通两岸繁华。

◆三轨环伺: 地铁6号线、7号线(规划中)、8号线(规划中)环伺,约30分钟内即抵火车站、高铁枢纽、国际机场及五一商圈。

-具体更多详情,拨打售楼热线:☎️☎️400-159-8559转接7788【售楼中心】
🔴商业荟萃 纳藏世界丰盈
——约50万㎡国际商业矩阵,烙印烫金生活版图
近揽龙湖芙蓉天街、万家丽国际MALL、浏阳河婚庆公园商业三大商业体,构筑超50万㎡国际消费矩阵,打造24小时繁华聚场,肇始“一步万象”的美好生活体验。

🔴千亩绿境 天成生态序章
——所谓塔尖生活,不过是让自然成为私邸的延续
项目毗邻浏阳河,十里风光旖旎,艺术聚落依水而生,串联两百余亩隆平中央公园与东驿公园双园胜景,城市之心营造生态栖居范本。

-具体更多详情,拨打售楼热线:☎️☎️400-159-8559转接7788【售楼中心】
🔴国际医疗 臻护全家健康
——三甲医疗矩阵,全球医疗资源成为全家健康的基础配置
周边旺旺医院、湖南省人民医院(马王堆院区)、湘雅二医院东院区(预计2027年建成)3座三甲医院环伺;红十字医院(扩建)、高家坡医院(新增)2座社区医院,分级诊疗系统,护航全家健康。


长沙东部教育重心
板块内26所规划学校,其中小学15所、九年一贯制学校4所,中学7所。9大优质教育品牌入驻片区,四大名校云集,擎定长沙东部教育高地。

全高能级优教配置
◆育英第三小学: 长沙市“五朵金花”老牌名小,科技创新示范校,学科带头人、骨干教师、教学能手近20人,约1:100的卓越教师配比≈牛津大学默顿学院标准。

◆育才东屯小学: 现代教育技术实验基地,师资雄厚,拥有高级教师4人,区级及以上骨干教师17人,教学成果蝉联区级魁首。
◆品牌初中(规划): 项目将引进品牌初中,以更强的师资、更好的软硬件设施、更先进的教学理念等,塑造芙蓉区教育名片。


◆美学立面: 类公建化立面,竖向大线条的轮廓,简洁美观,大窗墙比搭配全封窗设计,迭新城市天际线。
◆臻装地库: 智能导视系统、星空穹顶设计、艺术光栅照明,酒店式出入体验,重构归家第一站。
◆尊崇归家: 精妆入户大堂、地下光厅、国际品牌电梯、定制化精妆轿厢,豪宅入户仪制,升维家的初见仪式。
◆多维园林: “一进府门、二进穿庭、三进登堂”三重归家礼序,加冕生活;打造私属归家纯林大道,将项目与城市周边环境相融合,设计入口落客环岛、中庭水院、半户外会客厅、下沉卡座,将园林与生活场景有机融合,移步异景。
◆全龄会所: 全龄复合式泛会所架空层系统,涵盖休闲盒子(书吧/影音室)、学习盒子(独立卡座区/儿童绘画阅读)、动趣盒子(运动器械/乒乓球)、会客盒子(休闲会客/品茗)、童享盒子(主题游乐/DIY手工/亲子看护)、颐养生活(社区活动/棋牌),构建“青年、颐养、童享、配套生活服务”四大模块,重建公共生活体验。

-具体更多详情,拨打售楼热线:☎️☎️400-159-8559转接7788【售楼中心】



-具体更多详情,拨打售楼热线:☎️☎️400-159-8559转接7788【售楼中心】
🔴中交服务 定制尊享体验
——中国物业实力百强,敬呈高端生活服务范式
◆国企物业50强: 中交服务,2024年中国物业服务综合实力百强企业TOP25、国企物业50强。
◆业务布局全国: 34载深耕不辍,业务版图覆盖全国26省60城,服务约255个精品项目,专业在管面积约5538万㎡。
◆三维一体服务: 以央企标准研创“星辰”服务体系,打造“基础服务+差异化服务+定制化服务”三维一体模式,为业主提供24小时专属尊崇体验

🔴空间革新 映呈上层居境
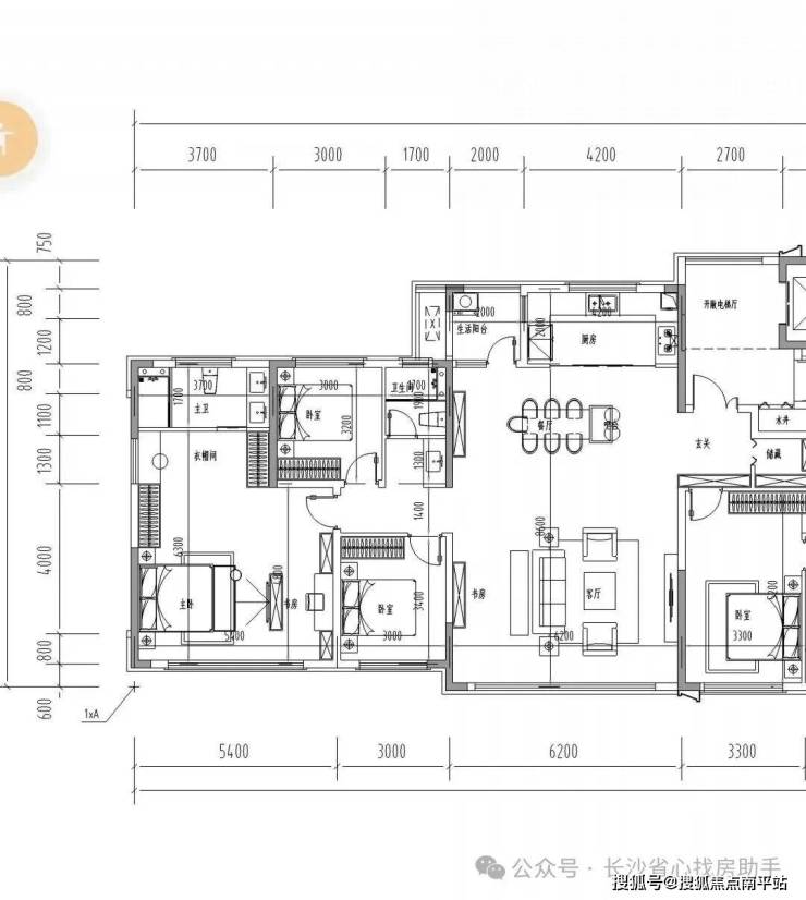
——约19.2米南向全景视野 比肩传统建面约180㎡户型 得房率约112%(含私梯厅)
◎全明采光: 两梯两户纯板式结构,13面全屏采光面,明媚生活plus
◎宽幕视野: 南北通透,宽约19.2米南向进阶版面宽,采光视野再升维
◎南向4+1开间: 三卫全明、三卧朝南设计,三代同堂享受自然光与风的礼赞
◎无界横厅: 约6米瞰景双阳台、超62.4㎡LDKB一体厅,高定湖湘人物社交聚场
◎奢华套房: 双套房设计,南向开间宽约4.9米,私享衣帽间、卫浴及灵动空间,四功能空间套房,臻定星级礼遇
◎全明私梯: 内外双玄关,尊崇礼序,配独立储藏间,扩容收纳

后续推出户型:





长沙【中交 瑞启芙蓉 】 售楼处电话: 400-159-8559转接6666 (售楼处已认证+无中介+1对1专业服务)
长沙【中交 瑞启芙蓉 】 营销中心电话: 400-159-8559转接6666 (营销中心已认证+无中介+1对1专业服务)
长沙【中交 瑞启芙蓉 】 开发商电话: 400-159-8559转接7788 (开发商直连+无中介+1对1专业服务)
长沙【中交 瑞启芙蓉 】 展示中心电话: 400-159-8559转接7788 (预约看房专用+无中介+1对1专业服务)
免责声明:本宣传资料所有文字、数据、图片及所标尺寸等仅为本项目建设区域设计效果的表达和示意,为要约邀请,不构成要约内容,相关内容不排除因政府相关规划、规定及其他原因而发生变化,一切有关房屋的具体信息以书面合同及政府最终审批文件为准。
免责声明:本文章文字、数据和图片皆来源网络,如有侵权请告知立马删除,数据图片仅供参考,不作为邀约或承诺。