最新热搜TOP1——厦门【中海环东雲起】售楼处唯一指定网站【中海环东雲起预约看房】房价_电话_户型_楼盘详情@2025.12.3 厦门中海环东雲起售楼处Ai✦热搜
扫描到手机,新闻随时看
扫一扫,用手机看文章
更加方便分享给朋友
好房子践行, 厦门中海环东雲起以百分百的诚意✅✔️
✅✅【中海环东雲起】售楼处电话:✅400-159-8559转分机号5555✔️
✅✅围绕“意韵、礼序、趣活、邻里、私享、智造”这6大产品内核,强调邻里趣活、创造互动空间,智造新烟火社区,以人文关怀的细节营造,满足了市场上对于品质内卷的所有想象✅✔️
✅✅【中海环东雲起】营销部电话:✅400-159-8559转分机号5555✔️✔️
✅✅【中海环东雲起】开发商电话:✅400-159-8559转分机号5555✔️


海韵漫城,侨风藏雅。
海风卷着涛声的灵秀,漫过厦门“海上公园”,
与侨乡沉淀的底蕴交织成独特风骨。
环东的风轻拂古榕苍枝,
一片榕叶舒展的脉络,
终成空间美学的灵感序章。
厦门中海环东雲起展示区,以“国际优雅、艺术瑰品、创新定制”为内核,在现代雅奢的基调中传承地域文脉。石材拼花复刻闽南花砖的精巧韵律,将鲜明“侨色”与榕叶线条相融,每一道纹路都镌刻着闽南风情;空间以典雅为骨、品质为肌、奢华为韵、格调为魂,让自然肌理、在地文化与高端体验在此共生,为环东新城献上一座兼具艺术质感与地域温度的人居美学地标。✅✅✅售楼处𝗩𝗜𝗣☎️预约热线:400-159-8559转分机号5555【已认证】
01
「石韵侨风・奢境启章」
初见环东雲起,大门便自带高奢酒店的仪式感——流线型的立面如海风舒展,暖光勾勒出柔润轮廓,顶部一抹红砖肌理暗合闽南底色,未入内已先接住厦门 “海上公园” 的灵秀与雅韵。
迎宾区以高奢酒店大堂为蓝本,融闽南底蕴于雅奢格调,入门便见尊崇。白沙米黄石材墙面铺就开阔基底,肌理在光影里温润通透,复刻酒店大气尺度;地面雅士白与太古黑金石材拼缀,藏榕叶脉络与侨乡花砖纹样,闽南风情随自然灵秀流淌。✅✅✅售楼处𝗩𝗜𝗣☎️预约热线:400-159-8559转分机号5555【已认证】
普拉提绿石材前台质感细腻,契合奢牌酒店礼遇;后方金属艺术玻璃屏风以燕尾脊、缠枝纹织就闽南元素,光影间虚实相生,让在地文化与国际优雅相融。
穿过迎宾区,视线即刻被空中的艺术装置所牵引——以百年榕树为灵感的金属枝桠舒展,缀着鎏金与碧色的玻璃叶片,犹如海风揉碎的光斑落满枝梢,恰似厦门“海上公园”的榕荫意象。
下方琉璃舟雕塑更添巧思:铜金与青绿的釉面晕染出海浪肌理,浮于如镜的太古黑金石材地面,暗合闽南“因海而兴”的底色。金属勾线与墙面肌理漆的柔润质感相映,让高奢酒店的精致与在地文化的灵秀,在这一方空间里悄然共生。

水吧区圆形吧台以普拉提绿石材一气呵成,墨绿肌理在光线下漾开奢雅质感,金属线条收边更显利落精致。上方穹顶式天花覆着天鹅绒艺术漆,柔润肌理托着贝母片灯罩——光影透过贝母片晕开细碎柔光,恰似海面浮着的粼粼月色。黑白石材拼花纹理地面与墙面海韵装饰画相映,将高奢酒店的松弛感与闽南“海上公园”的独特韵味,裹进这一方圆融空间。
水吧旁的沙盘区,黑白石材拼花纹理地面延伸至此,与普拉提绿石材勾勒的展台相衬。穹顶贝母片灯光晕开柔雾,恰好落于微缩建筑模型上,衬着窗外绿意,将空间的奢雅与项目的质感一并铺展。
洽谈区深灰木饰面与艺术玻璃拼接的装饰屏风轻隔出私密角落,玻璃的通透裹着木饰面的质感,肌理与墙面艺术画相映成趣。浅调沙发配着纹理抱枕,暖光从台灯漫向屏风缝隙,连带着装饰画的色彩都柔和下来,既承着高奢酒店的舒适格调,又让闽南闲逸的氛围藏在每一处细节。
夜色里,玻璃幕墙将室内暖光尽数晕开,与外侧水景的倒影缠成一片柔雾。旁侧的乔木枝桠垂落,衬着室内的雅奢陈设,把高奢酒店的松弛感浸在了厦门的夜风中。
VIP室玲珑玉岩板背景墙铺展着水墨肌理,与木地板的质朴质感相衬。木饰面与艺术玻璃拼接的屏风轻隔出雅致角落,玻璃的通透裹着木面的沉稳,恰与墙侧陈列架上的器物呼应。长桌旁的软装线条柔和,吊灯的暖光里裹着茶香,坐下时就能感受到闽南茶事的闲适氛围。
大树书吧,核心装置如舒展的树冠:钢板基底裹着液态金属漆,肌理泛着细腻光泽,普拉提绿石材底座稳稳承托,恰好与旁侧浅木饰面拼接同色石材的书架墙呼应,架体上书籍器物错落有致。
书吧地面瓷砖更见巧思——浅调基底交织着叶片与花瓣的柔缓轮廓,线条如晕开的脉络顺着“树冠”弧度铺展,脚步所及之处,细腻纹理裹着空间的雅奢质感,窗外绿意漫入时,高奢格调与闽南的悠然便一同落进了这方静雅之中。
02
「榕衔雅韵・奢享栖居」
负一层百年榕树携着自然气韵,为女神下午茶区铺就了松弛底色。这里延续了整体空间的高奢闲逸:以浅暖木饰面与木纹瓷砖作基底,普拉提绿台面添上点睛的精致感,色调柔而不淡,与全域雅奢质感一脉相承。
女神区造型天花的弧形轮廓、沙发的曲线,顺着地面瓷砖肌理轻铺开来,弱化了硬朗感,恰好契合下午茶的氛围;壁灯金属线条、装饰画色调与整体基底呼应,把收纳与美学藏入细节;再衬着软装花艺与窗外隐约绿意,既带着酒店式的精致,又让闽南的闲逸与茶歇的松弛自然相融。

儿童区以 “趣味互动 + 安全童趣” 为核心,材料与创意设计精准呼应:PVC 防滑地胶印着道路标线,搭配菱形橡胶地胶的 “街区纹理”,打造迷你城市场景,让地面成为孩子骑行探索的游戏载体;墙面满铺深橙、红、黄、灰色与浅橙色的防霉涂料,鲜活色彩交织出活泼底色,搭配烤漆板定制的加油站、厨房玩具柜,将角色扮演融入空间,让实用设施变身趣味道具;定制星空顶与滑滑梯区皮革软包的霓虹拱门灯带联动,白天是明快色彩天地,夜晚化身梦幻童话小天地,光影切换拉满沉浸感。
开放式乐高墙,下方搭配规整的储物空间,让孩子随手拼搭创作后,能便捷收纳玩具,玩与整理的节奏自然衔接;滑滑梯的皮革软包造型与外部玻璃景观电梯形成视觉联动,孩子滑下时能直观感受室外绿意,让室内玩乐与自然环境巧妙呼应。这些设计让材料成为承载想象的载体,让儿童区成为充满探索欲与安全感的 “能玩的空间”。
架空层以月光米黄石材铺就大面积墙面,质感开阔又自带雅致气场,金属腰线像隐在肌理里的精致分割线,让墙面层次利落又高级;地面通铺浅调岩板,和墙面石材呼应出统一的奢雅底色,壁灯的复古轮廓、屏风的金属框线,再加上墙面局部的竖向纹理装饰,把 “静谧高级感” 藏在细节里,廊道的每一处都裹着舒展的质感氛围。
健身房则延续了架空层的质感基调:墙面嵌着深浅木饰面做层次过渡,金属勾线与地脚线收住细节,佩纳深蓝门槛石是不经意的色彩点睛;地面岩板通铺出利落质感,健身区局部的地板胶兼顾了运动脚感,水吧台用普拉多绿岩板作背景,冷调沉稳里裹着高级感,木饰面柜又软下几分温度,搭配通透的玻璃屏风,让运动空间既有 “健身聚场” 的实用属性,又藏着和架空层浑然一体的奢雅质感。

车库电梯厅前厅及门口区域,以精致材质组合勾勒雅致基调:3.5 米高的玉石亚克力天花,通透质感裹着细腻光泽,让高挑空间既显开阔又藏着精致细节;地面环氧磨石的肌理自带利落气场,与天花质感形成刚柔互补。月光米黄石材弧形转角消解生硬感,正中肌理石纹端景墙搭配花艺成为视觉重心,壁灯的圆润造型更添柔和,连细节处都藏着松弛的仪式感,整体与空间的奢雅调性气韵相合。
车库入库及坡道区域,延续铝板及铝格栅的核心天花造型语言,利落线条搭出通透质感,让通行空间既规整又不失灵动;入库入口墙面以大面积浅色瓷砖为主,底部搭配深色瓷砖形成利落分区,中间嵌着一抹绿色背景墙瓷砖,为冷调肌理注入鲜活气息。
干景区墙面铺展 PU 石的自然肌理,上方双层膜软膜天花晕开柔和光线,形成质感缓冲带;坡道柱子的镜面板悄悄拓展空间视觉,旁侧景观区的深色石纹墙搭配绿植,借镜面反射揉进自然气息,金属质感与自然肌理互补,既兼顾了车库的实用属性,又与前厅的精致质感形成隐性呼应。
厦门中海环东雲起展示区,以国际视野雕琢在地情怀,用艺术笔触勾勒生活雅韵,让侨乡底蕴不止于记忆,让自然灵秀融入日常。
这里,每寸肌理藏着对地域文化的敬畏,每处细节显露出高端人居格调,终成环东新城兼具人文厚度与美学高度的时代答卷,为懂生活的居者启幕优雅旅程。当海风再掠环东天际线,古榕苍劲已沉淀为空间永恒底色。
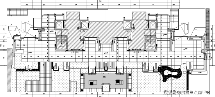
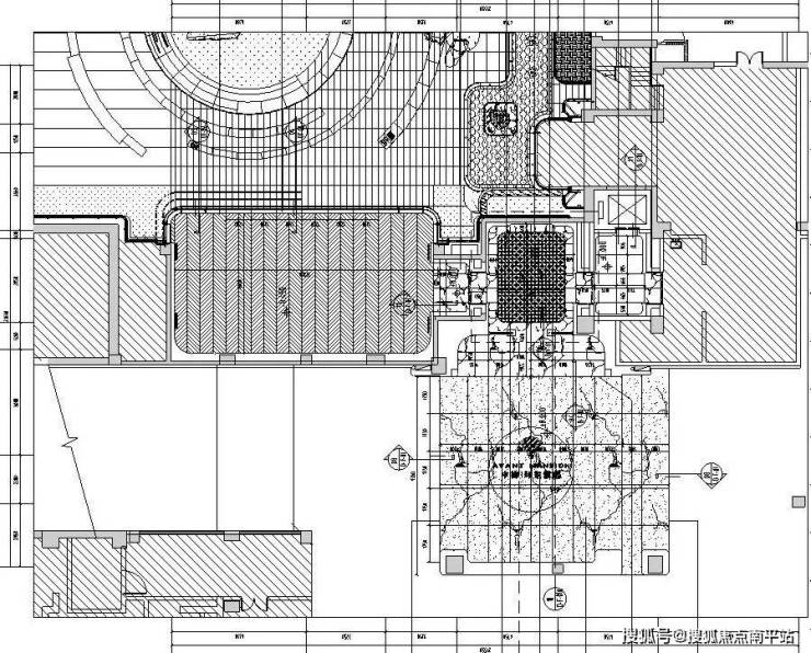
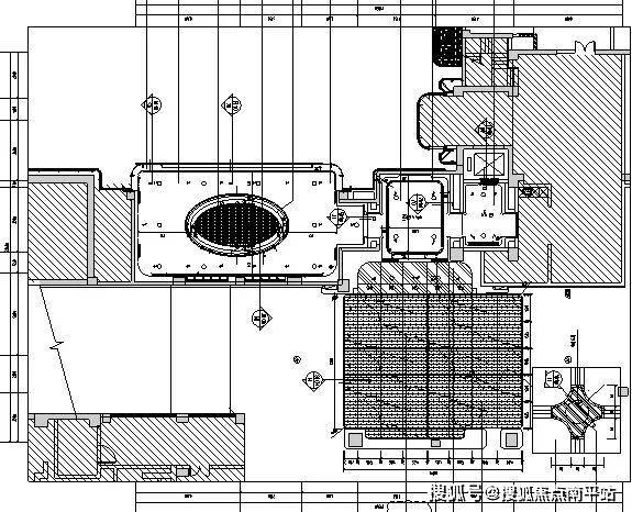
平面图呈现

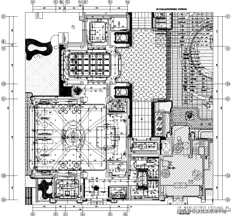
▲首层平面布置图

▲首层天花布置图
▲首层地坪材料图
▲大树书吧天花布置图
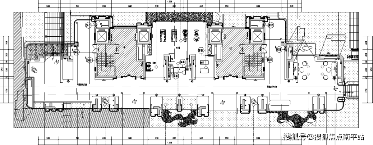
▲地下一层天花布置图
▲地下一层地坪材料图

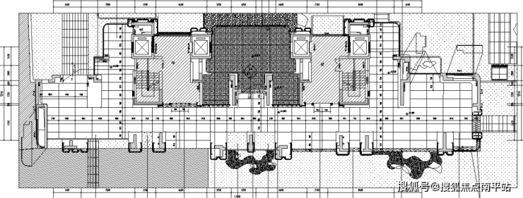
▲7#楼架空层平面布置图

▲7#楼架空层地面材料图

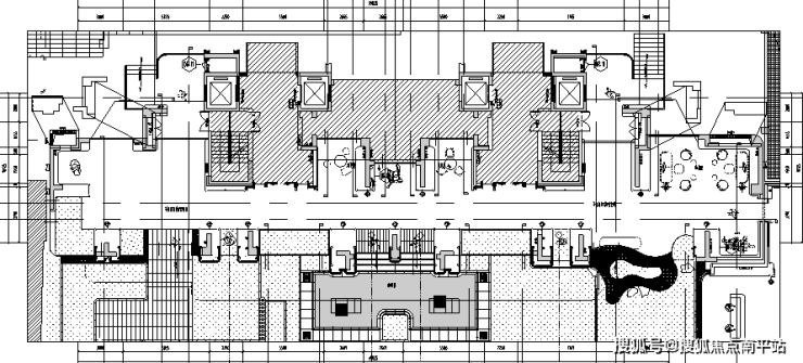
▲8#楼架空层平面布置图

▲8#楼架空层地面材料图
项目名称|厦门中海环东雲起展示区
项目位置|福建省厦门市同安区
施工单位|广东枫文建设工程有限公司
建筑面积|2200㎡
主要材料|石材、瓷砖、不锈钢、木地板、木饰面、地胶板、亚克力、艺术涂料、墙纸、皮革
参与团队|陈国辉、邓小锋、李日泉、姚耀富、钟春辉、陈炜锋、劳纪幻、李荣生
完成时间|2025年9月
好房子践行, 厦门中海环东雲起以百分百的诚意✅✔️
✅✅【中海环东雲起】售楼处电话:✅400-159-8559转分机号5555✔️
✅✅围绕“意韵、礼序、趣活、邻里、私享、智造”这6大产品内核,强调邻里趣活、创造互动空间,智造新烟火社区,以人文关怀的细节营造,满足了市场上对于品质内卷的所有想象✅✔️
✅✅【中海环东雲起】营销部电话:✅400-159-8559转分机号5555✔️✔️
✅✅【中海环东雲起】开发商电话:✅400-159-8559转分机号5555✔️
免责声明:本宣传资料所有文字、数据、图片及所标尺寸等仅为本项目建设区域设计效果的表达和示意,为要约邀请,不构成要约内容,相关内容不排除因政府相关规划、规定及其他原因而发生变化,一切有关房屋的具体信息以书面合同及政府最终审批文件为准。
免责声明:本文章文字、数据和图片皆来源网络,如有侵权请告知立马删除,数据图片仅供参考,不作为邀约或承诺
声明:本文由入驻焦点开放平台的作者撰写,除焦点官方账号外,观点仅代表作者本人,不代表焦点立场。
