☎☎☎【联投长江天元售楼中心】400-159-8559转接7788【售楼中心】✅✅
☎☎☎【联投长江天元售楼中心】400-159-8559转接6666【营销中心】✅✅ ✨✨温馨提示:拨打400电话—听到嘀声后—输入6666即可通话!✨✽✽✽
武汉【联投长江天元】售楼处电话☎:400-159-8559转接7788【预约热线】✅✅
☎☎☎【联投长江天元售楼中心】400-159-8559转接7788【售楼中心】✅✅
☎☎☎【联投长江天元售楼中心】400-159-8559转接6666【营销中心】✅✅
✨✨温馨提示:拨打400电话—听到嘀声后—输入6666即可通话!✨✽✽✽
武汉联投长江天元___欢迎来电咨询丨专业一对一热情服务丨看房需提前预约✅✅

最新动态:联投长江天元(武昌——武昌滨江),预计9月首开,预计首推2、3号楼,建面约130、140、170、180平准四代产品,带装修销售,圈存10万可享开盘99折优惠,1号楼主打建面约240平米户型。
一、楼栋规划与户型设计
根据规划,联投时代中心共规划3栋住宅,总高42-43层,以及1栋写字楼、多栋集中式商业街区。

-具体更多优惠,拨打售楼热线:☎️☎️400-159-8559转接7788【售楼中心】
项目首开2号楼、3号楼, 2号楼主推建面约180㎡户型,3号楼主推建面约130㎡、140㎡、170㎡户型。

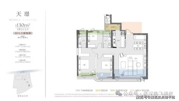
①130㎡户型:三房两厅两卫,3号楼中间户,南北通透,三开间朝南;户型本身的布局还是比较方正的,并且有多处优化空间,厨房外还带一个生活阳台,可以用于后期晾晒,保留客厅阳台的纯粹性。但这一户型北面为连廊,加上客厅朝南设计,基本上没什么看江视野,主打优势是面积小, 总价门槛低(项目内最低门槛)。

②140㎡户型:四房两厅两卫,该户型南北通透、三开间朝南;因为3号楼的楼栋朝向、位置,属于北向看江,因此,这一户型的北面房间——次卧、儿童房拥有还不错的看江视野(中高楼层以上房源)。客厅空间相当的开阔,动静分区做的也比较好。-具体更多优惠,拨打售楼热线:☎️☎️400-159-8559转接7788【售楼中心】

③170㎡户型:四房两厅两卫,整个户型的布局与江面基本平行了,对比3号楼另外两个户型,170平户型的看江效果要优秀不少,客厅(270度观景)、主卧、主卫、厨房这几处空间都拥有不错的江景视野,观景面还是比较可观的。不过为了看江,这个户型的进深做的比较大,通透性稍显不足。

-具体更多优惠,拨打售楼热线:☎️☎️400-159-8559转接7788【售楼中心】
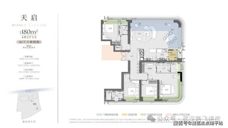
④180㎡户型:四房两厅三卫,客厅、北向次卧拥有非常不错的看江视野,并且客厅可以270度观景;另外,东头这一户型的生活阳台、主卧套房也可以看江,观江面更大。但东头户型离3号楼较近,低楼层采光可能有所影响。

⑤240㎡户型:四房两厅三卫,项目最大户型,不光观江视野最好,价格肯定也是最贵的。这户型南北通透,南边采光面挺宽,客厅是约12米的超级大横厅,还做了270度转角设计,能270度看江,就连旁边的主卧套房也能看江,能看江的地方特别多。不过选房源要注意,1号楼西边户旁边挨着写字楼,主卧看江的角度会受点影响,比起来还是东边户看江的角度更大些。

二、区域定位与地段优势-具体更多优惠,拨打售楼热线:☎️☎️400-159-8559转接7788【售楼中心】
项目位于武昌区临江大道和工院路交汇处,属于武昌内环滨江的核心地段。相对来说,这个位置更靠近积玉桥板块,周边以老社区为主,目前还没有大型商业体。

地铁:项目步行前往5号线三层楼站C出入口约700米左右,距离还比较近,一站地铁即可抵达积玉桥站,在此可与2号线进行换乘。

自驾:项目楼下就是临江大道,东侧靠近和平大道,北面还有长江隧道,附近友谊大道、武汉大道等主干道环绕,自驾较为便捷。
三、配套分析-具体更多优惠,拨打售楼热线:☎️☎️400-159-8559转接7788【售楼中心】
商业:项目自带部分商业,还有一栋写字楼,隔壁联投中心也有酒店等规划。另外,项目直线2公里左右可达万象城、京东MALL以及武昌滨江天街,3公里左右可达楚河汉街、武汉亲橙万象汇、徐东销品茂等商业体。

医疗:周边约1.5公里就是湖北大学医院,1.9公里就是武汉市中心医院南京路院区(三甲医院),2.2公里就是武汉市中医医院汉口院区(三甲医院)、湖北省中西医结合医院中山分部(三甲医院)。
教育:根据2025年武昌区划片显示,项目所在的板块划片为新河街小学,这个学校在武昌就相当一般了。

其他:项目距离内沙湖公园约1.2公里,距离歌笛广场约1.3公里,距离昙华林约2.6公里,距离南岸嘴公园约2.9公里。
☎☎☎【联投长江天元售楼中心】400-159-8559转接6666【营销中心】✅✅
✨✨温馨提示:拨打400电话—听到嘀声后—输入6666即可通话!✨✽✽✽
武汉联投长江天元___欢迎来电咨询丨专业一对一热情服务丨看房需提前预约✅✅
免责声明:本宣传资料所有文字、数据、图片及所标尺寸等仅为本项目建设区域设计效果的表达和示意,为要约邀请,不构成要约内容,相关内容不排除因政府相关规划、规定及其他原因而发生变化,一切有关房屋的具体信息以书面合同及政府最终审批文件为准。
免责声明:本文章文字、数据和图片皆来源网络,如有侵权请告知立马删除,数据图片仅供参考,不作为邀约或承诺