2025百度资讯-南京【中天金宁文华】售楼处发布-中天金宁文华最新价格-户型图-容积率-户型配套-中天金宁文华售楼处电话-项目资料最新内容!
扫描到手机,新闻随时看
扫一扫,用手机看文章
更加方便分享给朋友
中天金宁文华售楼处电话:400-159-8559转接1111【售楼处线上电话】
中天金宁文华售楼处电话:400-159-8559转接1111【营销中心VTP通道】
中天金宁文华销售中心『首页网站』楼层_价格_户型_配套_房源销售详情
免责声明:(本文章所用信息图片来源于网络,如有侵权请联系本网站及时删除

中天美好深耕江宁的全新力作——中天金宁文华,以更高的品质、更“卷”的产品力,为东山改善群体带来更好的选择。
位置上,中天金宁文华与中天金宁风华紧邻秦淮支流-外港河,两个小区是外港河畔难得的约450米水岸静土,享受与水岸共生的悠然生活。

力邀顶豪设计天团匠心打磨
一个项目的产品力如何,看设计团队便能知晓一二。
中天金宁文华的设计团队非常震撼,堪称顶豪锻造专家:
建筑设计——上海天华,这是中国首批甲级民营建筑设计公司之一,代表作有上海中海领邸玖序、融创徐汇滨江壹号等。
会所公区——名谷设计,被业界誉为“建筑室内设计之东方精神推动者”,南京的贤坤花园、瞻月府等知名项目的会所设计都由名谷设计打造,品质有目共睹。
户内精装——DIA丹健国际,是专注高端地产室内设计的国际化设计团队,金陵序、长江之歌便是由其打造。
园林打造——木杉景观,这是一家诞生于杭州西子湖畔的景观设计团队,以“不辜负 创美好”为核心理念,有百余项目的设计实践,是国内较高知名度和美誉度的景观设计新锐机构之一
在中天金宁文华的打造上,他们将融合千万级豪宅的营造思路,为项目赋能。

顶配生活
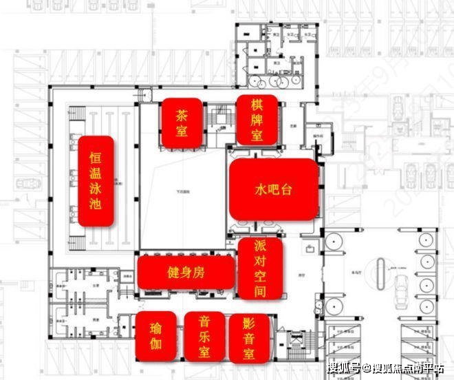
东山罕见约1700㎡超配下沉会所
在江宁东山,配备会所的项目已经不少,而中天金宁风华的会所是目前功能最为齐全的。
据悉,项目将打造约1700㎡超配感下沉会所,具备12大功能,包含健身房、瑜伽室、音乐室、PARTY ROOM(有KTV、桌球)、茶室、影音室等多元互动场景,并且配置了泳池
未来,业主休闲放松、健身锻炼、品茶社交等等,都可以不出小区,真正享受到顶配生活的美好。
项目会所预计10月份即可全维展现,届时可一睹风采。

顶级审美
从外到内、由表及里的审美进阶
看惯了当下住宅千篇一律的审美之后,中天金宁风华从外到内、由表及里的审美进阶令人眼前一亮。
外立面:玉树金枝四代宅的建筑美学,像是升腾的树阵,蕴含“向上生长”的美好寓意。

中天金宁文华售楼处电话:400-159-8559转接1111【售楼处线上电话】
中天金宁文华售楼处电话:400-159-8559转接1111【营销中心VTP通道】
中天金宁文华销售中心『首页网站』楼层_价格_户型_配套_房源销售详情
免责声明:(本文章所用信息图片来源于网络,如有侵权请联系本网站及时删除
声明:本文由入驻焦点开放平台的作者撰写,除焦点官方账号外,观点仅代表作者本人,不代表焦点立场。
