最新资讯!首页网站-2024 厦门 建发悦海鲤 年 最新房价+户型图+小区环境+配套|一键预约,尊享内部独家折扣!匠心独运的精品项目,恭候您的品鉴与选择 2

南平楼市发布 2024-11-26 09:13:05
用手机看
扫描到手机,新闻随时看

扫一扫,用手机看文章
更加方便分享给朋友

厦门【建发悦海鲤】售楼处电话400-159-8559转接5555【营销中心】24小时电话✅✅ ✥✥来电预约登记__VIP热线售楼中心_〢尊享一对一专业置业热情服务〢✅✅ 预约优惠___〢售楼中心置业顾问为您买房保驾护航〢___匠心钜制恭迎品鉴✅✅⇈

厦门【建发悦海鲤】售楼处电话400-159-8559转接5555【营销中心】24小时电话✅✅

✥✥来电预约登记__VIP热线售楼中心_〢尊享一对一专业置业热情服务〢✅✅

预约优惠___〢售楼中心置业顾问为您买房保驾护航〢___匠心钜制恭迎品鉴✅✅⇈

海沧区马銮湾建发的湾墅,第四代高层+洋房户型都曝光了出来!

今天建发马銮湾乐活岛的2块地的别墅产品和第四代住宅产品曝光出来了。我们来看一下具体的情况。

图为马銮湾乐活岛片区图

这两个项目是去年2023年底12月22日建发一次性拿下的。目前可以从图中看到A1地块做纯粹别墅小区。

湾墅户型楼栋分布过程稿图

湾墅大门初稿图

湾墅这次的户型非常纯粹,187㎡220㎡别墅户型。我们来看一下过程稿中的户型图。喜欢别墅的有钱佬们总算是等到了发哥的新一代别墅产品。让我们一起期待一下。

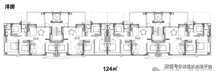
而这次A2地块建发悦海鲤的第四代是目前岛外第一个曝光出来的第四代住宅设计。小区总共9栋产品2栋第四代高层7栋洋房户型

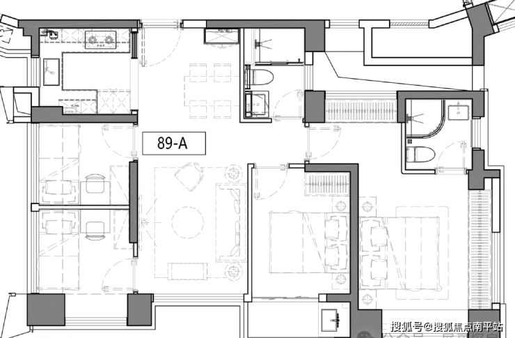
高层户型这次亮点很大,虽然只有2栋但确实惊喜!只有2个户型!87㎡的四房122㎡的露台四房。纯改善社区

这次89平的户型和岛内五缘鲤99㎡的户型非常相似,都把利用空间压缩到了极致,我原本以为99㎡做4房已经很离谱了。这次89㎡就做成了4房!不知道后面会不会出样板间。毕竟是五缘鲤的压缩版,实际的房间面积还是有待斟酌。做三房倒是刚好合适。

而这次的边套122㎡的四房就非常的有亮点,是目前曝光出来的高层住宅里面第一个带超大露台的高层平层户型

122平沿用了之前的设计,4开间朝南赠送外阳台和凸窗。最大的亮点则是超大的露台!奇数层露台更大一些在餐厅的位置,偶数层在主卧的位置。

下图为悦海鲤高层122㎡过程稿

洋房户型倒是沿用了集美鲤悦的排布,一样的奇偶数层错开发布露台。

但感觉这次悦海鲤的户型排布比鲤悦又做了一些优化和处理。目前爆出来的124㎡的洋房户型和高层的122㎡的格局差不多。主要区别是在于1梯2户阳台以及入户的方式不同、以及房间的排布。露台也是错开奇偶数层分布

下图为洋房124平户型图过程稿

这波压力给到了鲤悦二期,看来年底新房市场已经成了建发专场了!

需要了解详细户型资料和信息的朋友可以扫码领取我们整理的资料!

厦门【建发悦海鲤】售楼处电话400-159-8559转接5555【营销中心】24小时电话✅✅

✥✥来电预约登记__VIP热线售楼中心_〢尊享一对一专业置业热情服务〢✅✅

预约优惠___〢售楼中心置业顾问为您买房保驾护航〢___匠心钜制恭迎品鉴✅✅⇈

特别说明:

1.本文为要约邀请,不作为要约或承诺;相关宣传内容不排除因政府相关规划、规定及出卖人分期规划、未能控制等原因而发生变化;

2.本文部分图片来自于网络,如涉及版权使用,请联系删除;文本部分图片仅作为推广示意使用,非交付标准,最终以实际交付现状为准;

3.本宣传资料对项目周边学校等教育资源的介绍旨在提供相关信息,并不意味着本公司对就学安排作出承诺。教育资源的名称、办学性质、办学规模、学位设置、开学(班)时间、招生条件、收费标准及招生区域存在调整的可能,应以政府教育主管部门及办学方颁布的政策规定为准;

4.本资料对项目或产品的介绍,旨在提供相关信息,不意味着本公司对此作出了承诺,买卖双方的权利义务以《商品房买卖合同》及附件等协议为准;

5.宣传方保留对宣传资料修改和解释的权利

声明:本文由入驻焦点开放平台的作者撰写,除焦点官方账号外,观点仅代表作者本人,不代表焦点立场。