三亚保利海晏-保利海晏首页网站-2024年最新房价+户型图+小区环境+配套|一键预约,尊享内部独家折扣!匠心独运的精品项目,恭候您的品鉴与选择

南平楼市发布 2024-11-17 15:52:51
用手机看
扫描到手机,新闻随时看

扫一扫,用手机看文章
更加方便分享给朋友

保利·海晏位于海棠湾,定位为高端旅奢度假楼盘。➢➢预约参观热线☎☎400-159-8559转接5158【售楼中心】项目设计融合了热带风情和悠闲度假体验,户型多样,203m²、21.5m²、270°全景阳台等,让住户远离都市喧嚣,享受三亚的美景。项目占地87亩,容积率低至1.4

三亚【保利海晏】

➢➢预约参观热线☎☎400-159-8559转接5158【售楼中心】

➢➢温馨提示——拨打400电话——听到嘀声后——输入分机号5158即可通话

➢➢楼盘基本信息介绍,地址,户型,价格,位置,医疗教育,商业交通配套

➢➢网上售楼中心—匠心钜制-恭迎品鉴-欢迎来电咨询-预约一对一讲解-请提前联系售楼处销售进行登记!

保利·海晏

让业主回归真正的度假

三亚海棠湾,国内旅游度假区。

而本项目正是位于海棠湾中的国际医养板块,周边医疗资源密集,为高端旅度客提供重要的医疗康养资源。

西侧临山,东边观海。

项目定调热带岛屿风,以其浓郁的热带风情和悠闲自在的度假体验,为人们带来了一种逃离都市喧嚣、回归自然怀抱的惬意感受。

保利·海晏,注定承载天时地利人和的期待,打造为领先时代的高端旅奢楼盘。

何谓度假感住宅?

放眼过去,国内市面上户型大多相似,少有创新。设计师从全球范围内汲取灵感,其中迈阿密、迪拜、澳大利亚的度假公寓凭借其独特的风格和先进的理念为设计师提供了宝贵的设计灵感。

如果说美学是空间的共感,那景观便是自然的意识。

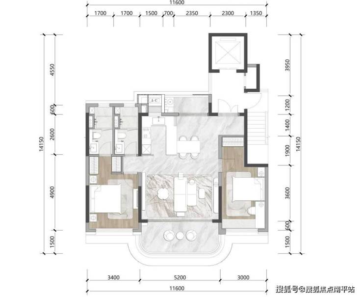
△203㎡户型平面图

203㎡户型21.5 m长的270°全景阳台,让住户不被时间、空间束缚,在家就能享受三亚的瑰丽山海,这才算是回归了度假的本质。

让所有设计回归到原点,设计人的生活方式,把人内心的精神连接到自然场景中。

△155㎡户型平面图

△199㎡户型平面图

△152㎡户型平面图

△105㎡户型平面图

△135㎡户型平面图

项目占地87亩,规模不小,容积率却只有1.4。两条路线就已经清晰的摆在了设计师的面前。

路线一是拉高拍低,出现一部分洋房别墅,把价格再做上去;路线二是全部中高层,打开空间追求舒适度。

确实很多人第一反应会像设计师刚开始一样,认为别墅才是这个地块的最优解。毕竟拥有自己的庭院和一方天地,是大部分中国人难以放下的浪漫情结。

但晏字系作为保利体系内的第一个文旅度假产品,在三亚海棠湾这样一个顶级度假的片区,我们希望的是给客户带来真正的度假生活和感受,而不是用别墅将公共空间一块块划给住户。

来自北纬18°海棠湾,汇聚了来自自然的多种魅力。

丛林与海洋、自然与文明的能量在这里交融。既有回归自然的生活仪式,亦是疗愈身心的精神能量场,它,正成为一种新的奢侈。

保利·海晏,顺应时代召唤,献礼海棠湾。

三亚【保利海晏】

➢➢预约参观热线☎☎400-159-8559转接5158【售楼中心】

➢➢温馨提示——拨打400电话——听到嘀声后——输入分机号5158即可通话

➢➢楼盘基本信息介绍,地址,户型,价格,位置,医疗教育,商业交通配套

➢➢网上售楼中心—匠心钜制-恭迎品鉴-欢迎来电咨询-预约一对一讲解-请提前联系售楼处销售进行登记!

免责声明:本宣传资料所有文字、数据、图片及所标尺寸等仅为本项目建设区域设计效果的表达和示意,为要约邀请,不构成要约内容,相关内容不排除因政府相关规划、规定及其他原因而发生变化,一切有关房屋的具体信息以书面合同及政府最终审批文件为准。免责声明:本文章文字、数据和图片皆来源网络,如有侵权请告知立马删除,数据图片仅供参考,不作为邀约或承诺。

声明:本文由入驻焦点开放平台的作者撰写,除焦点官方账号外,观点仅代表作者本人,不代表焦点立场。