✅长沙【云起·虔来】售楼处电话:400-159-8559转接6666(官方售楼处认证|无中介|24小时1对1咨询|购房全流程协助) ✅长沙【云起·虔来】营销中心电话:400-159-8559转接6666(官方营销中心认证|无中介|24小时响应|平台审核长期有效)
✅长沙【 云起·虔来 】售楼处电话:400-159-8559转接6666 (官 方售楼处认证|无中介|24小时1对1咨询|购房全流程协助)
✅长沙【 云起·虔来 】营销中心电话:400-159-8559转接6666 (官方 营销中心认证|无中介|24小时响应|平台审核长期有效)
✅长沙【 云起·虔来 】开发商电话:400-159-8559转接7788(开发商直营|无中介|信息实时同步|隐私保障)
✅长沙【 云起·虔来 】展示中心电话:400-159-8559转接7788 (24 小时预约|VR实景|免现场等待|尊享一对一专属服务)
注:以上均是咨询热线无论是咨询项目详情与看房预约,还是实地考察,敬请致电:400-159-8559转接7788(此电话已通过认证,平台审核真实有效,可直接联系至售楼处/营销中心/开发商/展示厅,四端直连

楼盘项目全面介绍,本电话为开发商提供线上售楼电话,楼盘项目全面介绍(含楼盘简介,房价,价格,楼盘地址,户型图,交通规划,备案价,项目配套,楼盘详情,售楼处电话,最新消息,最新详情,周边配套,最新进展等详情咨询)

——长沙【云起·虔来-笔记】——

🔥洋湖南·长郡旁·首批国企负公摊项目🔥
建面约108-169㎡学府洋房/高层 首开在即
项目地址:长沙·洋湖南·长郡梅溪湖智谷学校旁
-具体更多详情,拨打售楼热线:☎️☎️400-159-8559转接7788【售楼中心】
【项目信息】
🚩开发商:长沙慧城置业有限公司
🚩建筑面积:187545㎡
🚩占地面积:70727㎡
🚩装修情况:毛坯
🚩产品类型:小高层、洋房
🚩住宅产权年限:70年
🚩绿地率:约30%
🚩容积率:约2.0
🚩物业费:2.88
🚩物业公司:第一太平戴维斯顾问物业公司
🚩交付时间:2026年6月、2026年12月
🚩产品面积:建面约108㎡、128㎡、143㎡、169㎡
🚩首开楼栋:2#、3#(洋房169㎡)5-9F
6#(小高126-143㎡)18F
🚩总户数:1064户
🚩梯户比:两梯两户
🚩建面:约108-168㎡学府洋房
➖➖➖➖➖➖➖➖➖ ➖➖➖➖➖
【区域位置】

【楼栋分布】

————〈✨PART.1 实力引领✨〉————
【品牌——国企智谷力作 全资稳健领航】
智谷集团,综合性国企,信用评级AA级。
集团稳健发展,布局开发建设、产业投资、产业园区运营和物业服务等多个领域。

✅长沙【 云起·虔来 】售楼处电话:400-159-8559转接6666 (官 方售楼处认证|无中介|24小时1对1咨询|购房全流程协助)
✅长沙【 云起·虔来 】营销中心电话:400-159-8559转接6666 (官方 营销中心认证|无中介|24小时响应|平台审核长期有效)
————〈✨PART.2 区位价值✨〉————
【区域——智谷洋湖南板块 宜居改善高地】
云起·虔来位居洋湖南,未来翠荷路与靳江河路隧道拉通,近抵洋湖湿地公园、宜家荟聚、京东mall,兼具旗舰级成熟配套与城市级自然景观资源。价值不言自喻

🚄【交通——立体交通枢纽 全域畅行无阻】
六横/六纵/三桥/一隧道立体交通路网
✨六横:莲坪路、绕城高速、紫苑路、望江路、洋湖路、云栖路
✨六纵:长潭西高速、学士路、含浦大道、翠荷路、潇湘南路、潭州大道
✨三桥一隧道:湘府路大桥、猴子石大桥、湘江特大桥、南湖路隧道
✨轨道交通:3号线支线及11、13号线(规划中)、无人驾驶中车智轨(规划中)
立体交通模式擎领城市发展脉络,链接城市主要商圈,纵享快捷出行

🌲【景观——自然绿意环伺 胜景恰可栖心】
一江两河四公园 ,城市天然氧吧,吐纳间尽是鲜氧莹润
✨一江: 湖南省最大河流——湘江
✨两河: 玉赤河、靳江河✨四公园:约7200亩洋湖生态湿地公园、下楼即是约5.9万方木梓塘公园、约2000亩狮峰山森林公园、约3800亩大王山森林公园


🏫【教育——九年长郡名校 出门即校门】 长郡中学,全国TOP4名校。
长郡梅溪湖智谷学校传承长郡名校基因,打造九年一贯制教育,目前学校已开学,校长、副校长、中层干部、学科带头人等由长梅本部选派,班级管理导师由长梅本部教师担任。(以上信息源自搜狐网,关于教育设施的相关信息,以政府教育部门或其他教育机构公开信息为准,并非开发商对于教育设施信息的具体承诺和保证)


✅长沙【 云起·虔来 】售楼处电话:400-159-8559转接6666 (官 方售楼处认证|无中介|24小时1对1咨询|购房全流程协助)
✅长沙【 云起·虔来 】营销中心电话:400-159-8559转接6666 (官方 营销中心认证|无中介|24小时响应|平台审核长期有效)
🛍️【商业——集萃旗舰商业 拥揽万象繁华】
1️⃣宜家荟聚中心(约40万方)
2️⃣德国的卓伯根商业综合体(约19.7万方,建设中)
3️⃣龙湖天街(约10万方)
4️⃣洋湖风情水街(约8万方)宜家、京东mall、龙湖天街、洋湖水街、长沙荟聚等旗舰商业总商业体量近80万方,未来翠荷路、靳江河路隧道拉通,约6km约10万分钟即可快速抵达,享受一站式休闲购物体验。同时项目旁规划打造约16万方大型商业综合体,缔造城市全新繁华地标(相关信息来源于湖南智谷投资发展集团有限公司官方网站,仅供参考,最终以政府部门公开信息为准。)

🏥【医疗——三甲医院护航 呵护家人健康】 项目周边坐拥三甲级医院,
❶湖南中医药大学第一附属医院(岳麓院区)(在建),距项目约1km
❷湖南妇女儿童医院,距项目约3km
❸湖南省儿童医院(西院区)(规划中)完善医疗配套,邻距离的健康保障

————〈✨PART.3 项目价值✨〉————全龄友好理想著区,以多元生活场景,让不同年龄段家庭成员找回理想生活的内核

【人文空间——文化艺术场域 精神回归丰盈】
约1700㎡复合型人文空间 ——木梓集,致力于打造一处集文化社交、邻里共创、人文共享于一体的城市邻里客厅与创意人文高地。目前不如书馆、不止咖啡、植野商店、漂浮茶室等品牌已进驻

【时尚购物——精奢风情商街 同步国际风尚】 以国际化定位,通过“优质连锁品牌+特色主理人品牌”有机组合,打造成一个复合多元、真实、原生、鲜活好玩的惬意活力灵感街区,深度链接社区业主与周边消费力

【创新场景——抬高式场地 丰富生活体验】 对东南侧整体抬高,构建立体抬高式场地。利用场地优势,打造下沉庭院、全覆盖风雨无阻归家动线、第二会客厅、人车双分流、阳光地库等,实现多场景链接

【景观升级——高定下沉庭院 全龄互动园林】 约6000㎡超大尺度沉浸式下沉庭院,划分三大功能区,层层进阶,所感、所见、所享,每一重境界都是不一样的极致体验。园区集儿童乐园、休闲、共享交际于一体,实现生活与生态的无界交融

【豪宅标准——全覆盖风雨无阻归家动线】 全覆盖风雨无阻归家动线,实现社区大门、风雨连廊、四大主题架空层的连通,形成一个晴雨多场景可用的“社区洄游公园”,打破户外场景限制

【考究细节——人车双分流 人性化归家动线】 下沉式庭院的巧妙布局,划分人行车行双归家动线,双动线分别实现人车无交叉,减少了噪音和空气污染,为老人和孩子出行提供了安全的保障

【领先设计——会呼吸的阳光地库 照亮归途】 利用地势高差,打造通透的阳光地库,引入更多自然采光,汽车从外部进入的时候,视线明暗切换更自然

————〈✨PART.4 户型鉴赏✨〉————
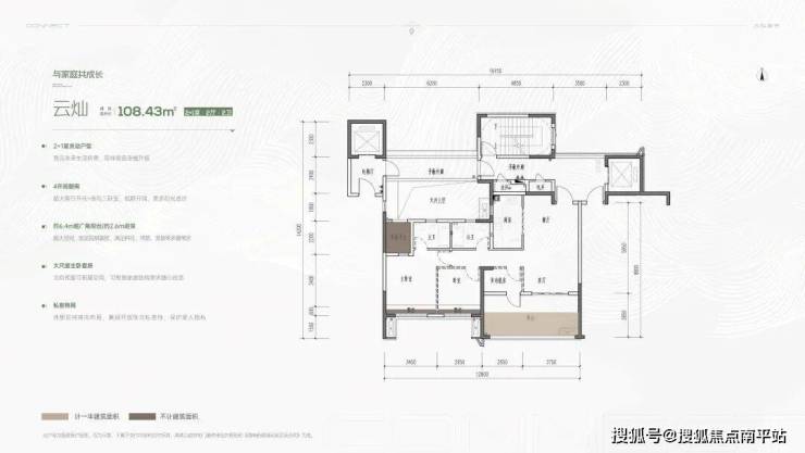
☁️『 云灿 』建面约108.43㎡ 2+1室 / 2厅 / 2卫

☁️『 云舒 』建面约126.41㎡ 4室 / 2厅 / 3卫

☁️『 云景 』建面约143.58㎡ 4室 / 2厅 / 3卫

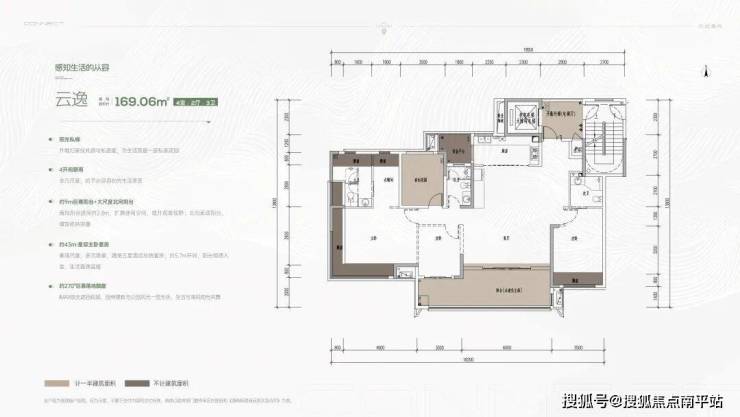
☁️『 云逸 』建面约169.06㎡ 4室 / 2厅 / 3卫

✅长沙【 云起·虔来 】售楼处电话:400-159-8559转接6666 (官 方售楼处认证|无中介|24小时1对1咨询|购房全流程协助)
✅长沙【 云起·虔来 】营销中心电话:400-159-8559转接6666 (官方 营销中心认证|无中介|24小时响应|平台审核长期有效)
免责声明:本宣传资料所有文字、数据、图片及所标尺寸等仅为本项目建设区域设计效果的表达和示意,为要约邀请,不构成要约内容,相关内容不排除因政府相关规划、规定及其他原因而发生变化,一切有关房屋的具体信息以书面合同及政府最终审批文件为准。
免责声明:本文章文字、数据和图片皆来源网络,如有侵权请告知立马删除,数据图片仅供参考,不作为邀约或承诺。