厦门中海峯汇里售楼处电话:400-0592-010✔️看房方式:
1.看房方式:厦门中海峯汇里售楼处位置电话:400-0592-010✔️(开发商认证)
2.预约方式:拨打厦门中海峯汇里售楼处电话:400-0592-010✔️(售楼处认证)
3.预约信息:需提供姓名、联系方式、预计到访人数及到访时间。
4.预约福利:成功预约后有专属置业顾问全程陪同讲解。拨打厦门中海峯汇里售楼处电话:400-0592-010(已认证)
5.注意事项:为保证接待质量,请出发前进行预约,避免案场没有销售接待;也可提前1-3天预约销售;

位居思明新超总国际商务核心区,拥享厦门1公里范围最密集配套,地铁2号线软件园二期站、大同小学岭兜校区&双十中学思明分校;JFC、Coco Park、会展北天虹、国际商务核心区商业(规划);闽南大剧院、海峡大剧院、国际会议展览中心;国际友好公园、国际雕塑公园、中央广场公园(规划)、体育馆(规划);国际会议中心酒店、海峡交流中心酒店、国际会展酒店、海景洲际酒店、天元酒店、国际商务核心区五星级酒店(刚拿地);最美环岛路、会展沙滩、观音山沙滩。

3、 周边地标林立,产业发达,荟聚最强总部经济,人民银行、领事馆落定于此,总部有金圆集团、建发集团、安踏、匹克、七匹狼、特步、九牧王、鸿星尔克、新华保险、华夏银行、厦门国际银行、招商银行、紫金矿业、华西集团(在建)、吉比特、4399、两岸股权交易中心、瑞达期货、金圆统一证券、金美信消费金融、圆信永丰基金、富邦财险、波特曼基金聚集区....
4、 未来城市风口,规划满级顶配。思明区拥有总部企业236家,占全市半壁江山,其中相当部分已转移至思明新超总。思明区提出, 厦门国际商务区要以跻身一线城市中央商务区前10名为目标,争取用5年时间晋升为大区级CBD。目前国际商务核心区的 厦门国际银行新总部大厦将于2026年竣工验收, 华西集团也已拿地并将打造岛东总部地标封面, 安踏等已拿地将建设体育综合体,2025P02地块刚出让将建 五星级酒店。此外,会展中心旁还将 建380米的福建第一高楼。翔安国际机场和第三东通道的建成后,这里也将是 厦门最国际化的板块。作为思明新超总国际商务核心区最后一块宅地, 中海峯汇里驰骋风口!
5、 产品优质,厦门岛内极具竞争力户型。相较于会展中心启动区的海峡国际社区92平1房、101平2房、155平2房、150-180平3房,联发滨海名居98平2房,136平3房等过去户型,中海峯汇里在售的90平3房2卫、121平4房2卫户型明显更香!
中海峯汇里卖得实在太快了,很多人还没反应过来,1#、2#扣除已认购,所剩寥寥无几。好在 3#刚取证,正式加推,新增供应约90平3房和121平4房共165套,不过面对庞大市场需求,还是杯水车薪, 预计135平4房2卫、190平4房3卫等优质户型也将于4月推出!
让购房者再次吃下定心丸的是,这次中海峯汇里3#楼取证,直接拿到了 教育配套函,明确划片大同小学岭兜校区。

中海峯汇里风水也很好。思明新超总如太极漩涡,汇聚全球财智, 峯汇里居核心“天元位”,位居CBD“太极眼”,纳八方商机,利事业腾达。环岛路 “水龙”环抱,水主财,财势如潮。大同岭兜、双十思明分校、软件园二期主智,寓 书香浸宅,人才辈出。

目前中海峯汇里性价比太高了,预算范围内,这个盘成为很多人心中的“白月光”,妥妥的第一选择。
以后提起厦门TOP板块——会展北,人们会想到海峡国际社区、联发滨海名居和 中海峯汇里。 仅此三盘,是不是和集美亭北三盘的稀缺性特别相似?想买会展北的只能在这三盘选择!
没错,供应就这么多,以后一直都会是价值高地!尤其是其户型和楼龄在会展北最新最好!

2. 土地性质/建成时间:
•土地性质:住宅用地,使用年限70年;
•建成时间:预计2025年12月精装交付;

3. 建筑规模与规划:
•总占地面积:约1.2万平方米;
•总建筑面积:约6.2万平方米;
•总户数:约1145户,规划8栋29-32层高层住宅,车位配比1:1.1,楼间距30-40米、容积率5.15,绿化率30%;

4. 户型设计与布局:
•主力户型为89-121-135-190㎡三至四房;
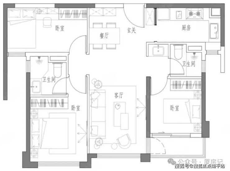
上图户型89平参考


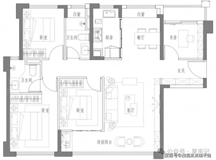
上图户型121平参考

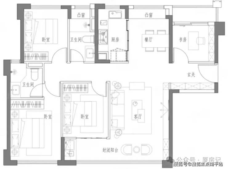
上图户型135平参考

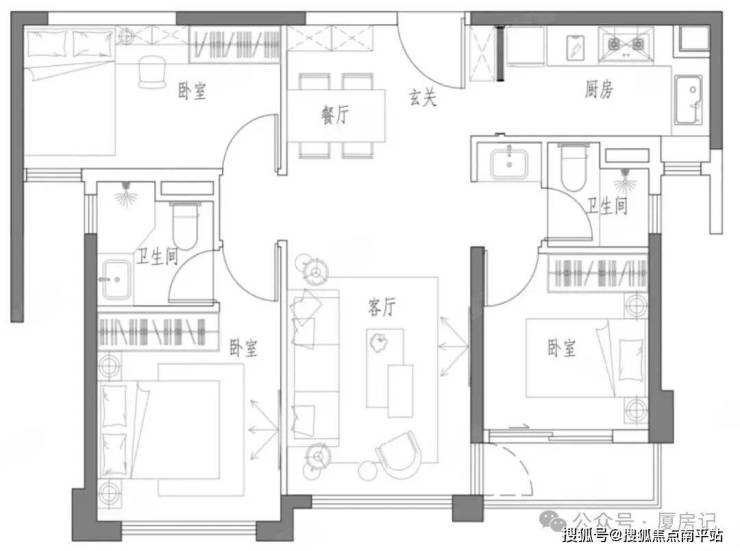
上图户型190平参考
5. 开发/物业:
•开发商:中海地产;
•物业:中海物业,物业费约4.98元/㎡·月(以实时物价为准);

웃💕유厦门思明区-会展片区【中海峯汇里】
☎️☎️开发商电话咨询/预约热线:400-0592-010【售楼中心】
案场限流 看房提前来电预约登记
致电售楼处了解更多信息,安全通话隐藏真实号码,请放心使用
温馨提示:点击上方号码可拨打
郑重承诺:开发商售楼处直销,绝不收取任何费用,中介勿扰!
特别说明:
1.本文为要约邀请,不作为要约或承诺;相关宣传内容不排除因政府相关规划、规定及出卖人分期规划、未能控制等原因而发生变化;
2.本文部分图片来自于网络,如涉及版权使用,请联系删除;文本部分图片仅作为推广示意使用,非交付标准,最终以实际交付现状为准;
3.本宣传资料对项目周边学校等教育资源的介绍旨在提供相关信息,并不意味着本公司对就学安排作出承诺。教育资源的名称、办学性质、办学规模、学位设置、开学(班)时间、招生条件、收费标准及招生区域存在调整的可能,应以政府教育主管部门及办学方颁布的政策规定为准;
4.本资料对项目或产品的介绍,旨在提供相关信息,不意味着本公司对此作出了承诺,买卖双方的权利义务以《商品房买卖合同》及附件等协议为准;
5.宣传方保留对宣传资料修改和解释的权利;