深圳湾澐玺 (售楼处) 官网 -深圳湾澐玺销售中心 - 深圳湾澐玺价格 - 地址 - 楼盘详情 - 配套 - 电话 - 交房时间 - 配套 - 电话 - 交房时间
扫描到手机,新闻随时看
扫一扫,用手机看文章
更加方便分享给朋友
最新消息:
南区2栋2单元预计价格(仅供参考)
●约216㎡户型-总价约3800万左右
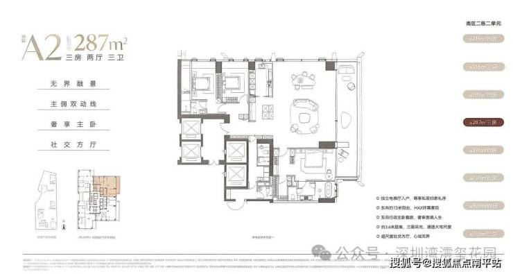
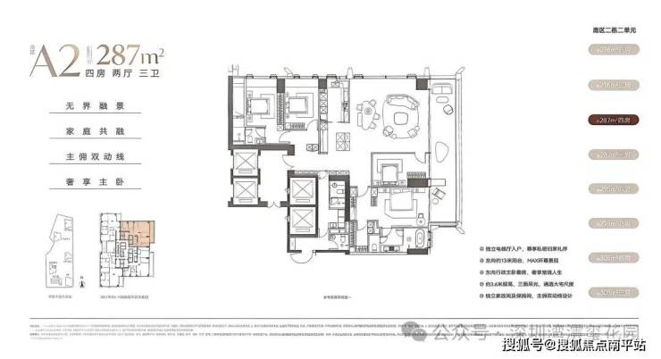
●约287㎡户型-总价约5000万左右
●约295㎡户型-总价约5000万左右
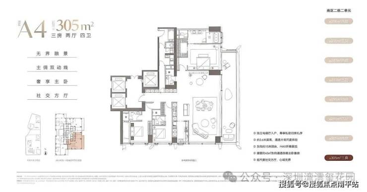
●约305㎡户型-总价约5500万左右
●约349㎡户型-总价约6800万左右
●约427㎡户型-总价约8200万左右
●约409㎡户型-总价约1亿左右
『深圳湾澐玺』用地面积约3.5万㎡,规划总建筑面积约38.7万㎡,计容积率建面约30.4万㎡,容积率8.76,涵盖高档住宅、精品公寓、商业盒子、幼儿园等业态,定位纯奢宅改善物业。

区位与项目概况


户型参考:
免责声明:本宣传资料所有文字、数据、图片及所标尺寸等仅为本项目建设区域设计效果的表达和示意,为要约邀请,不构成要约内容,相关内容不排除因政府相关规划、规定及其他原因而发生变化,一切有关房屋的具体信息以书面合同及政府最终审批文件为准。免责声明:本文章文字、数据和图片皆来源网络,如有侵权请告知立马删除,数据图片仅供参考,不作为邀约或承诺。
声明:本文由入驻焦点开放平台的作者撰写,除焦点官方账号外,观点仅代表作者本人,不代表焦点立场。
