最新发布-招商保利·海珠天珺售楼处电话丨首页网站-招商保利·海珠天珺营销中心欢迎您-2025实时房价-户型图-楼盘详情-容积率@售楼处中心
扫描到手机,新闻随时看
扫一扫,用手机看文章
更加方便分享给朋友
广州招商保利海珠天珺售楼处电话☎️400-159-8559转接8888(专人接听)
🌈广州招商保利海珠天珺营销中心电话:☎️400-159-8559转接8888【营销中心】
🌈温馨提示:拨打400电话,听到嘀声后,输入分机号8888即可!
➤➤➤➤VIP贵宾置业〢欢迎来电咨询
免责声明:(本文章所用图片来源于网络,如有侵权请联系本网站删除!)恭迎品鉴◆◆
4001598559,8888

海珠天珺项目产品位置示意图
现在抢先开盘的是招商保利天珺的公寓产品,仅一栋总层高10层,2梯6户,10层是2梯4户,梯户比来说一般公寓要好很多。


卖点一、1km江景面-真琶洲岛限量版滨江豪宅,隔江对望公寓售价达20万
卖点二、核心地段,世界琶洲-福布斯中国上榜最年轻的CBD,广州下个20年发力新主场。
卖点三、圈层,655家高新企业+总部企业98家+11家全球独角兽企业+超3.6万家企业,目前聚集30万产业人才,就业人口以每年近50%速度增加,未来将容纳80万就业人口(数据来源:广州海珠发布)
卖点四、顶配社区-半弧形排布,高低分区搭配双空中会所,实现景观和空间最大化。
卖点五、多维交通
地铁:家门口地铁8号线东延段列入广州24年新开工重点项目,未来1站直达4/8号线交汇万胜围地铁站
自驾:车程约6分钟即达车陂南隧道,约3分钟联通一江两岸
水路航线:约10分钟车程可达琶洲港澳客运口岸,目前琶洲-香港/澳门航线已开通
面积段是:
●约85㎡:3房2厅2卫

●约87㎡:3房2厅2卫

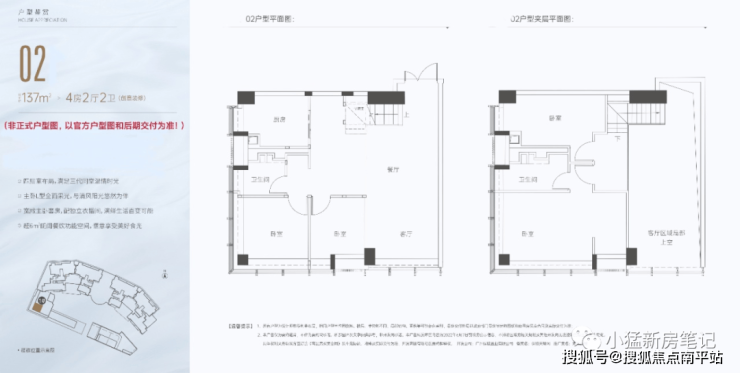
●约137㎡:4房2厅2卫

广州招商保利海珠天珺售楼处电话☎️400-159-8559转接8888(专人接听)
🌈广州招商保利海珠天珺营销中心电话:☎️400-159-8559转接8888【营销中心】
🌈温馨提示:拨打400电话,听到嘀声后,输入分机号8888即可!
特别说明:
1.本文为要约邀请,不作为要约或承诺;相关宣传内容不排除因政府相关规划、规定及出卖人分期规划、未能控制等原因而发生变化;
2.本文部分图片来自于网络,如涉及版权使用,请联系删除;文本部分图片仅作为推广示意使用,非交付标准,最终以实际交付现状为准;
3.本宣传资料对项目周边学校等教育资源的介绍旨在提供相关信息,并不意味着本公司对就学安排作出承诺。教育资源的名称、办学性质、办学规模、学位设置、开学(班)时间、招生条件、收费标准及招生区域存在调整的可能,应以政府教育主管部门及办学方颁布的政策规定为准;
4.本资料对项目或产品的介绍,旨在提供相关信息,不意味着本公司对此作出了承诺,买卖双方的权利义务以《商品房买卖合同》及附件等协议为准;
5.宣传方保留对宣传资料修改和解释的权利;
声明:本文由入驻焦点开放平台的作者撰写,除焦点官方账号外,观点仅代表作者本人,不代表焦点立场。
