长沙【运达大泽湖】最新房价|在售户型|运达大泽湖售楼处电话→优惠活动一键咨询
扫描到手机,新闻随时看
扫一扫,用手机看文章
更加方便分享给朋友
长沙运达大泽湖销售中心电话(售楼处咨询热线)
☎ 400-159-8559转接4567
☎ 在售户型面积丨最新销售公告!
☎ 置业专属VIP:400-159-8559接通后输入分机号4567
☎ 在此温馨提醒:若您计划看房,为确保能享受到更优质、贴心的接待服务,请提前致电售楼部进行预约 。而且,还有免费看房车接送服务哦,若您有此需求,致电售楼处即可预约
运达在河西首次落子即选择了大泽湖板块,势必有他自身的战略考量,一个望城区倾全区之力打造的重点板块,同时也是长沙市“十大重点发展片区”之一,备受各界关注。
运达大泽湖营销中心还未对外开放,各楼栋已陆续进入封顶阶段,所有楼栋基本是同进度施工,全员上阵,日夜赶工。据了解,商业区正在进行玻璃幕墙施工,广场绿化基本施工完毕,本月底营销中心将对外开放。
项目位于望城区腾飞路与金星北路交叉口东南角,周边有地铁4号线北延线(在建)经过,近享大泽湖湿地公园,配套优越。
项目周边还有师大附中新校区(在建)、长沙市一中大泽湖学校(在建)等学校,教育资源丰富。
项目一共规划19栋住宅,包括10栋小高层和9栋原创城市森林花园住宅,小高层户型为建面约135-156-222㎡,原创城市森林花园住宅户型为建面约238-296㎡。
小高层产品
1、135平米
2、156平米
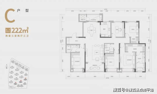
3、222平米
第四代住宅
1、238平米奇数层
2、238平米偶数层
3、296平米奇数层
4、296平米偶数层
长沙运达大泽湖销售中心电话(售楼处咨询热线)
☎ 400-159-8559转接4567
☎ 在售户型面积丨最新销售公告!
☎ 置业专属VIP:400-159-8559接通后输入分机号4567
☎ 在此温馨提醒:若您计划看房,为确保能享受到更优质、贴心的接待服务,请提前致电售楼部进行预约 。而且,还有免费看房车接送服务哦,若您有此需求,致电售楼处即可预约
声明:本文由入驻焦点开放平台的作者撰写,除焦点官方账号外,观点仅代表作者本人,不代表焦点立场。
