☎☎☎【天津金茂府售楼中心】400-159-8559转接7788【售楼中心】✅✅
☎☎☎【天津金茂府售楼中心】400-159-8559转接6666【营销中心】✅✅
✨✨温馨提示:拨打400电话—听到嘀声后—输入6666即可通话!✨✽✽✽ 天津金茂府___欢迎来电咨询丨专业一对一热情服
【 天津金茂府】售楼处电话☎:400-159-8559转接7788【预约热线】✅✅
☎☎☎【 天津金茂府售楼中心】400-159-8559转接7788【售楼中心】✅✅
☎☎☎【 天津金茂府售楼中心】400-159-8559转接6666【营销中心】✅✅
✨✨温馨提示:拨打400电话—听到嘀声后—输入6666即可通话!✨✽✽✽
天津金茂府___欢迎来电咨询丨专业一对一热情服务丨看房需提前预约✅✅

天津金茂府,以天津为名,占据运河之上优质的区位,以及深厚的人文历史文脉。
因此, 在景观设计上充分结合津韵在地文化,以运河流韵为灵感,打造了一轴三境的归家礼序。
大门面宽约77米,高度约8.5米,以船帆的造型为灵感来源。
辅以东西两侧文脉商街的延伸,打造出运河之上的超级城市周界。

移步门庭,一幅犹如奔涌不息的江面的巨幅景墙映入眼帘,这其实是 液态大理石。

▲天津金茂府实景示范区实拍
甄选西班牙马里奥纳灰奢石,源自塞罗·穆里亚诺矿脉,全球仅约12%的“First级”原矿可媲美其纹理纯度。
穿过归家长廊,除了林涧飞瀑外,还选取了8棵形态优雅的松树挺立在庭院,寓意迎客八方。

▲天津金茂府实景示范区实拍
山石与坡地相呼应,形成了山、石、水、瀑、松的天然画卷。

▲天津金茂府实景示范区实拍
下沉庭院是与会所链接的重要区域,建筑立面采用船篷曲线的造型,迎合泛云舟的运河主题,作为依托,庭院中心打造了约210㎡的水系。
船帆和树木的倒影投射在水面,微风拂过,更有泛舟水上的悠然意境。
壁挂的造型松树,与立柱的流水串联,在石缝间舒展开来,浑然天成。

▲天津金茂府实景示范区实拍
与此同时, 还打造了约600㎡接待前厅+约2160㎡复合空间作为业主会所。
集艺术、社交、健康于一体,涵盖书吧、私宴厅、绅士娱乐区、碧波泳池、健身瑜伽区等功能空间。


-具体更多优惠,拨打售楼热线:☎️☎️400-159-8559转接7788【售楼中心】

▲天津金茂府会所实拍
会所风格上, 彰显海派艺术对城市精神的深度解构。
设计萃取天津世纪钟的圆弧拱形元素为核心符号,融入建筑花格美学骨架,以浅色木纹石铺陈基底,搭配青玉石材穿插其间。
无论是产品力还是审美力,都堪称行业标杆。
天津金茂府还是非常人性化,设计了建面约109㎡、约111㎡、约121㎡、约132㎡、约138㎡、约139㎡、约165㎡、约183㎡等多种户型。
起步建面约109㎡,最大建面约183㎡,可以满足不同的置业需求。
其中, 建面约109㎡、约111㎡这两个户型,其实就非常适合希望兼顾教育及居住品质的家庭。
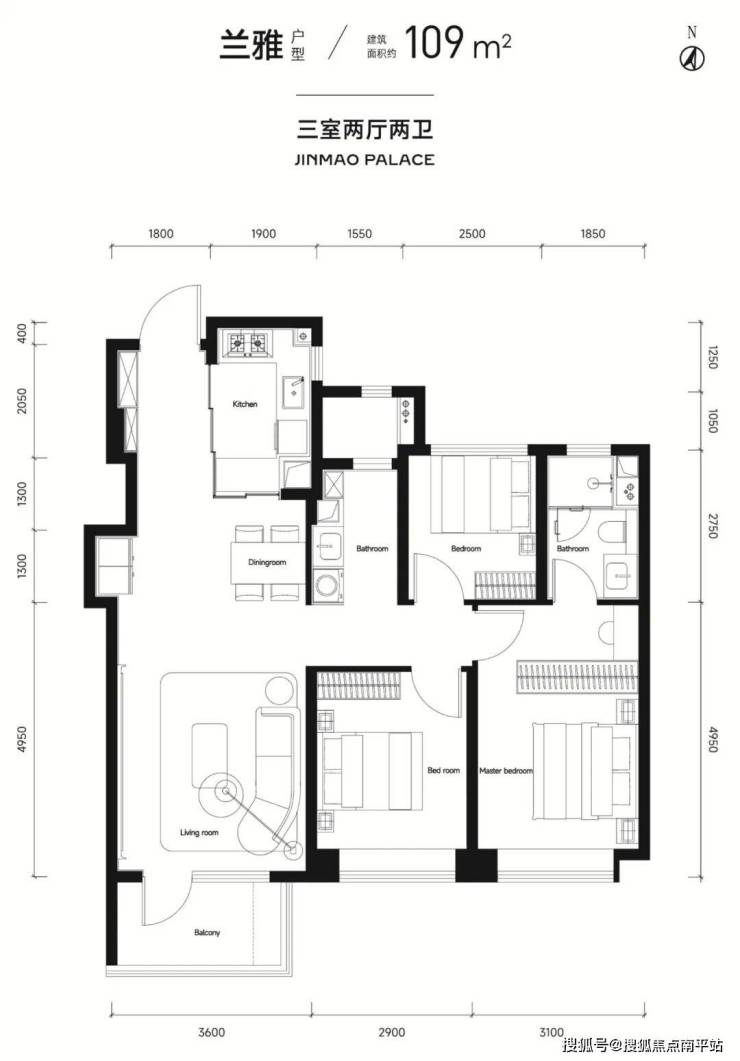
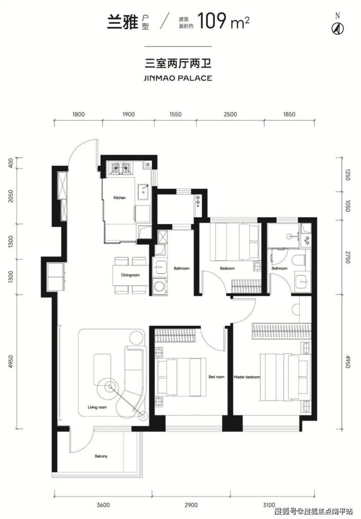
先看建面约109㎡的三室两厅两卫户型。

-具体更多优惠,拨打售楼热线:☎️☎️400-159-8559转接7788【售楼中心】
▲天津金茂府建面约109㎡三室两厅两卫户型图
整体南向面宽约9.6米,确保舒适的采光面。
客厅面宽约3.6米,连接开敞阳台,拓展更多生活可能,你完全可以在这里打造一个私属空中花园。
玄关设计将仪式感和收纳功能有机结合,客餐厨连成一线,S墙的设计也非常实用。
主卧套设计,打造主人房的私密空间。
次卫干湿分离,方便其他家庭成员使用。
南向双卧,也可以把北向的房间改造为书房或是健身区域。
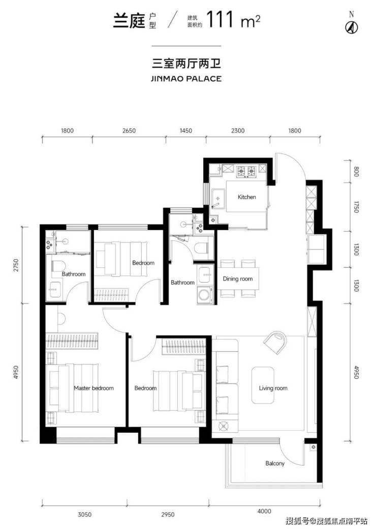
再来看建面约111㎡三室两厅两卫户型。

▲天津金茂府建面约111㎡三室两厅两卫户型图
整体南向面宽约10米,引更多阳光入户。
客厅面宽约4米,与开敞阳台相连,在这里放个摇椅,看书喝茶,更有生活氛围。
玄关同样兼顾了归家仪式感与储藏空间,S墙的设计刚好可以放下双开门冰箱。
主卧套设计,实现主卧小家化。
次卫同样是干湿分离,让早晚的时光也从容不迫。
南向双卧,完全可以把北向的房间作为收藏你爱好的多功能间。
整体来讲,这两个户型的设计都是动静分离,特别适合有学龄儿童的家庭。
如果你刚好有置业需要,不妨来天津金茂府看看。
我秋天又有去到现场,看到石榴树已经结果,足见从选苗到园林养护都非常细致。
天津金茂府,真的值得。
☎☎☎【 天津金茂府售楼中心】400-159-8559转接7788【售楼中心】✅✅
☎☎☎【 天津金茂府售楼中心】400-159-8559转接6666【营销中心】✅✅
✨✨温馨提示:拨打400电话—听到嘀声后—输入6666即可通话!✨✽✽✽
天津金茂府___欢迎来电咨询丨专业一对一热情服务丨看房需提前预约✅✅
免责声明:本宣传资料所有文字、数据、图片及所标尺寸等仅为本项目建设区域设计效果的表达和示意,为要约邀请,不构成要约内容,相关内容不排除因政府相关规划、规定及其他原因而发生变化,一切有关房屋的具体信息以书面合同及政府最终审批文件为准。
免责声明:本文章文字、数据和图片皆来源网络,如有侵权请告知立马删除,数据图片仅供参考,不作为邀约或承诺。