最新发布(济南云顶1号)楼盘百科丨济南云顶1号售楼处电话/售楼处位置丨楼盘主页_在售楼层/户型面积/价格详情
扫描到手机,新闻随时看
扫一扫,用手机看文章
更加方便分享给朋友
济南云顶1号售楼中心电话400-159-8559接通拨4567(本电话只用做售前咨询)
☎️来电请拨分机号!了解在售楼层户型丨最新销售价格!
☎️温馨提醒:若您计划看房,为确保能享受到更优质、贴心的接待服务,请提前拨打此电话进行预约 。
本资料不作为要约或承诺,图片、文字、数据等仅供参考,仅用于介绍房地产项目

项目核心概要
项目名称:云顶1号(一期)
项目位置:济南市历下区解放东路与浆水泉路交汇处
项目定位:CBD正轴心高端毛坯豪宅
核心卖点:准现房、泉水入户、低密度、高品质建材
交付时间:2025年12月31日
一、 基础信息一览
指标
参数
占地面积
约1.2万㎡
建筑面积
约5万㎡
容积率
2.9
绿化率
35%
总户数
181户
车位比
1:1.2
物业
未明确
交付标准
毛坯

二、 各楼栋在售详情
1#楼(总高23层)
梯户比:两梯两户
公摊:24%
特点:14层及以上层高升级为3.6米
户型
楼层
价格区间
客厅开间
备注
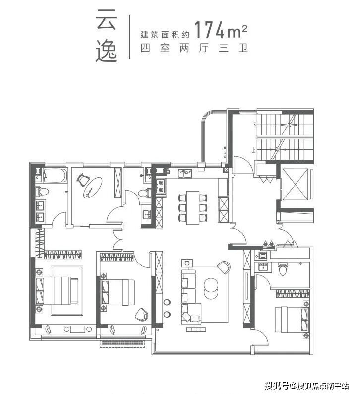
174㎡(西户)
3-4层
485-516万
5.55米
居住公寓
173㎡(东户边厅)
3-8层
约540万
6.6米
视野佳
11层
约550万
230㎡/237㎡
9层以下
750-850万
7.5米/9.5米
大平层,客厅尺度阔绰
2#楼(总高10层)
梯户比:一梯两户
公摊:14.5%(较低)
层高:3.2米
在售房源:仅剩1-2层
1层:186㎡下复式
2层:186㎡平层,单价约3.2万,总价约595万
客厅开间:5.3米

3#楼(总高17层)
梯户比:两梯两户
公摊:22%
标准层高:3.15米
在售特色房源:
下复式:137㎡ + 53㎡(负一层,层高5.6米),总价434-437万
顶复式:153㎡ + 12㎡,总价580-590万
客厅开间:6.9米




三、 核心卖点解析
地段与交通:坐落CBD正轴,经十路、解放东路主干道环伺,近邻地铁4号线(规划)、6号线(规划)及BRT,交通极为便利。
生态与视野:北眺茂岭山公园,南望燕翅山、砚泉,享城芯稀缺生态景观。
品质与配置:
建筑:干挂铝板+旭格系统窗,呈现类幕墙高端立面。
内部:吉博力同层排水、全屋橡胶隔音垫,提升居住静谧性与舒适度。
公共空间:入户大堂配置地暖+中央空调,精装地下车库,彰显奢装标准。

济南云顶1号售楼中心电话400-159-8559接通拨4567(本电话只用做售前咨询)
☎️来电请拨分机号!了解在售楼层户型丨最新销售价格!
☎️温馨提醒:若您计划看房,为确保能享受到更优质、贴心的接待服务,请提前拨打此电话进行预约 。
本资料不作为要约或承诺,图片、文字、数据等仅供参考,仅用于介绍房地产项目
声明:本文由入驻焦点开放平台的作者撰写,除焦点官方账号外,观点仅代表作者本人,不代表焦点立场。
