五一置业季•长沙中建翡翠天序二期官方售楼处电话(长沙)官方网站翡翠天序二期官方营销中心欢迎您-楼盘详情-最新价格-户型图-容积率@官方售楼处
扫描到手机,新闻随时看
扫一扫,用手机看文章
更加方便分享给朋友
近日,雨花区教育红盘“中建翡翠天序”二期户型图曝光!
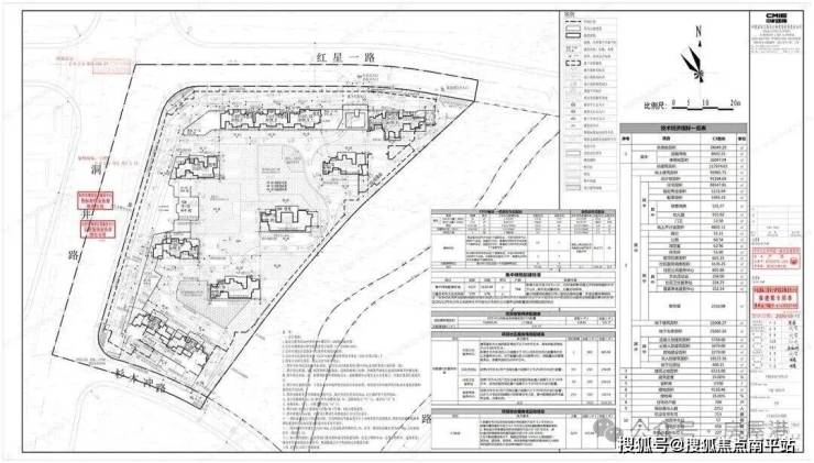
一共7种户型,分别是100-105-115-129-138-167-187㎡,其中刚需房源多达614套,总占比接近9成!




根据此前发布的公示内容,项目二期总占地约3.46万㎡,总建面约11.8万㎡,综合容积率约3.5,合计总户数704户,车位713个。
共规划8栋住宅,层数均在30-33层之间,新规“0公摊”户型,得房率在105-111%之间。
外观方面,二期整体风格延续一期现代简约风,古铜色的线条搭配深色外立面,屋顶造型或略有区别,以此来作区分。

二期坐落于圭塘河西岸,与一期隔河对望,距离地铁7号线(在建)红星大市场站更近,约600米,出行更方便。
免责声明:本宣传资料所有文字、数据、图片及所标尺寸等仅为本项目建设区域设计效果的表达和示意,为要约邀请,不构成要约内容,相关内容不排除因政府相关规划、规定及其他原因而发生变化,一切有关房屋的具体信息以书面合同及政府最终审批文件为准。免责声明:本文章文字、数据和图片皆来源网络,如有侵权请告知立马删除,数据图片仅供参考,不作为邀约或承诺。
声明:本文由入驻焦点开放平台的作者撰写,除焦点官方账号外,观点仅代表作者本人,不代表焦点立场。
