🦋🦋长沙【梦想凤栖台】🦋🦋 售楼处电话☎️400-159-8559转接7788【已认证】来电尊享优惠活动
🦋🦋长沙【梦想凤栖台】🦋🦋 营销中心电话☎️400-159-8559转接6666【售楼处指定网站】预约热线
🦋🦋长沙【梦想凤栖台】🦋🦋
售楼处电话☎️400-159-8559转接7788【已认证】来电尊享优惠活动
🦋🦋长沙【梦想凤栖台】🦋🦋
营销中心电话☎️400-159-8559转接6666【售楼处指定网站】预约热线
◆◆◆温馨提示——拨打400电话☎️☎️听到嘀声后——输入【6666】即可通话
✨✨预约看房丨首付月供计算丨售楼处位置丨小区环境丨最新房价丨享超低购房优惠✨✨

🦋🦋长沙【梦想凤栖台】🦋🦋
售楼处电话☎️400-159-8559转接7788【已认证】来电尊享优惠活动

梦想凤栖台|山水洋房 再登峯
#山水洋房美学实景区4.27顶峯绽放
【尊崇归家】
地库入口凤羽星空顶,专属 logo 隐现星芒中。每一次驶入,都是穿越星光红毯的VIP礼遇。
【低密园林】
在梅溪湖超级中轴之上,22%建筑密度的气魄,35% 绿地率让建筑长在花园里。当别处拥挤,这里的阳台直揽山水。
知名机构——重庆道和操刀,超 9800㎡绿地、叠水景观、热带植被共生。晨跑滨水步道,暮赏落日熔金,呼吸皆自然奢享。
【全龄聚场】
6.5米挑高穹顶超越普通架空层尺度,阳光透过全景玻璃幕墙倾泻而入,中央空调恒控 24℃舒适气温。商务会友、孩童嬉戏,覆盖全龄的生活聚场。
#建面约265㎡低密新规山水洋房,敬献湖湘塔尖
🌟 第一重稀缺:梅溪湖中轴旁,滨水而居的「城市孤品」
🦋🦋长沙【梦想凤栖台】🦋🦋
售楼处电话☎️400-159-8559转接7788【已认证】来电尊享优惠活动
「别人追逐配套,我执掌城市未来」
作为梅溪湖二期「超级中轴」旁唯一临山瞰水的纯改善盘,项目占据「一轴双公园」核心位置:
- 一线滨水:直面龙王港滨水景观带,推窗即见潺潺流水与对岸象鼻窝森林公园叠翠;
- 中轴红利:距规划中的「梅溪湖中轴客厅」仅800米,2025年全面建成后,这里将汇聚高端商业、写字楼、国际医院等顶级资源;

🦋🦋长沙【梦想凤栖台】🦋🦋
售楼处电话☎️400-159-8559转接7788【已认证】来电尊享优惠活动
- 交通枢纽:步行400米到地铁2号线(规划),1站换乘6号线,20分钟到梅溪湖CBD,30分钟覆盖全城核心商圈。
前瞻视角:在金融行业工作的王先生,去年果断入手223㎡户型:「超级中轴就像长沙的「浦东世纪大道」,现在买入相当于提前5年占位城市新中心,无论是自住还是资产配置,都是明智选择。」
🏡 第二重颠覆:2.83容积率低密社区,纯粹改善的「空间革命」
「当别人在3.5容积率小区挤电梯,我在24层纯板楼享受私密生活」
项目以「台地式布局+全龄园林」打造梅溪湖罕见低密住区:
- 台地建筑:南低北高阶梯式排布,最低楼栋仅11层,最高39层,确保每栋楼采光无遮挡,低层也能俯瞰园林与滨水景观;
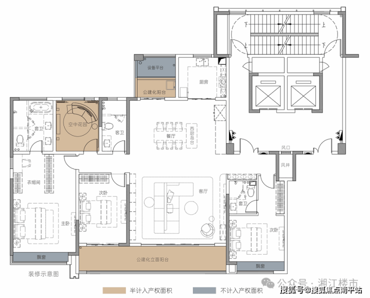
- 纯板楼设计:全系2梯2户,南北通透,192㎡户型做到四开间朝南,约6.15米景观阳台直面龙王港;223㎡户型面宽约17.9米,相当于把IMAX巨幕搬到客厅,湖景、园景、城景三重视野同框;
- 公建化外立面:全封窗+大面积玻璃幕墙,颜值媲美一线豪宅,历经十年仍历久弥新,二手房溢价率比涂料外立面小区高10%。
🌿 第三重价值:运达物业+2800㎡会所,定义「奢居仪式感」

🦋🦋长沙【梦想凤栖台】🦋🦋
售楼处电话☎️400-159-8559转接7788【已认证】来电尊享优惠活动
「回家不是推门而入,而是穿越风景的礼遇」
- 六重归家礼序:从社区主入口的「迎宾水景」到单元门的「精装大堂」,再到电梯厅的「艺术装置」,每一步都充满仪式感,堪比五星级酒店入住体验;
- 2800㎡运营会所:涵盖恒温泳池、健身房、私宴厅,业主可预约定制生日派对、商务宴请,足不出户即享高端社交场景;
- 运达物业护航:作为长沙「物业口碑天花板」,提供24小时管家服务,连快递都会按生鲜/文件分类配送,节日会为业主手写贺卡,细节处见真章。
业主证言:已入住梦想系其他项目的李女士说:「运达物业的服务超出预期,有次暴雨天忘关窗,管家主动上门帮忙关窗并擦拭雨水,这样的贴心程度,住过就离不开。」
📚 第四重保障:国企开发+名校环绕,安全与成长双重护航

🦋🦋长沙【梦想凤栖台】🦋🦋
售楼处电话☎️400-159-8559转接7788【已认证】来电尊享优惠活动

🦋🦋长沙【梦想凤栖台】🦋🦋
售楼处电话☎️400-159-8559转接7788【已认证】来电尊享优惠活动
「央企背书+名校为邻,买得安心,住得放心」
- 湘江集团实力托底:作为长沙市属国企,开发过麓隐天境、江悦和鸣等标杆项目,2023年交付项目满意度达98%,零延期零维权;
- 教育顶配资源:暂定入读师大附中梧桐学校(2024年9月开学),自建1800㎡幼儿园,孩子步行10分钟内可达学校,家长省去跨区择校烦恼;

🦋🦋长沙【梦想凤栖台】🦋🦋
售楼处电话☎️400-159-8559转接7788【已认证】来电尊享优惠活动

- 医疗全维覆盖:近邻长沙市妇幼保健院(河西院区·在建)、爱尔国际医疗健康城,为家人健康构筑「10分钟医疗圈」。
💡 真实案例:三刷梅溪湖的改善客,为何最终选择这里?

在麓谷创业的张总,先后看过梅溪湖10余个楼盘,最终选定239㎡户型:

- 第一刷:对比某盘3.8容积率高密度社区,凤栖台2.83容积率+台地布局更显低密舒适;
- 第二刷:实地考察223㎡户型,约9.8米一体化阳台震撼到他,「周末在阳台摆上茶桌,朋友来了都夸像空中会客厅」;

- 第三刷:了解到运达物业的服务细节后果断下定,「创业忙没时间打理家务,有专业物业管家,相当于请了个隐形生活助手」。
他的总结很直接:「改善买房,买的不是面积,而是生活圈层与居住体验。凤栖台的纯粹性、稀缺性,在梅溪湖找不出第二个。」
📍 最后3个理由,说服你立刻行动
1. 价格窗口期:均价1.35万/㎡,比中轴旁同类新盘低2000元/㎡,同样预算能多买20㎡使用空间;
2. 户型绝版性:265㎡临山洋房仅12席,一梯两户设计,私梯入户+3.25米层高,全长沙难寻竞品;

🦋🦋长沙【梦想凤栖台】🦋🦋
售楼处电话☎️400-159-8559转接7788【已认证】来电尊享优惠活动
免责声明:本宣传资料所有文字、数据、图片及所标尺寸等仅为本项目建设区域设计效果的表达和示意,为要约邀请,不构成要约内容,相关内容不排除因政府相关规划、规定及其他原因而发生变化,一切有关房屋的具体信息以书面合同及政府最终审批文件为准。
免责声明:本文章文字、数据和图片皆来源网络,如有侵权请告知立马删除,数据图片仅供参考,不作为邀约或承诺。