官方授权丨长沙金茂智慧科学城 售楼处电话丨官方线上预约看房热线 -营销中心竭诚接待-2026开年特惠-户型图册-楼盘详情页-容积率
扫描到手机,新闻随时看
扫一扫,用手机看文章
更加方便分享给朋友


金茂智慧科学城位于长沙雨花区雅塘路226号,地处城市核心区域。
周边交通网络发达,多条公交线路和地铁线路交汇于此,为居民出行提供了极大的便利。
同时,项目周边生活配套设施完善,超市、医院、学校等一应俱全,能够满足居民的日常需求。
三大主干道,南二环、劳动路、洞井路交汇处,近享地铁4、11号线(雅塘站规划中),高铁南交通枢纽辐射全国,多维便捷出行。
生活资源全配套,包括凯德广场、康亨里商业广场、友谊商场、通程商业广场、井湾子商业广场、溪悦荟等。
项目业主配套入读砂子塘雅沁小学,距离项目仅约600米,实现优质教育资源的“零距离”对接。
周边32所知名老牌名校,如:明德雨花实验中学、南雅中学、雅礼实验、长郡语外、师大附中雨花中学等,中学微机派位长沙顶尖的优质初中资源,从幼儿园到初中,为业主子女构建15年全龄优教生活圈。
项目由央企打造,配套砂子塘,建面约128-140㎡大四房。
项目计容建面约20万方,涵盖住宅12栋,约1.1万方特色商业,一所自建幼儿园,总容积率约3.1,绿地率约40%。
主推产品为C地块建面128-256㎡3-5房,在售C1栋、C2栋。
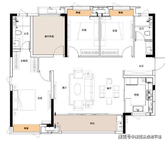
约128㎡奢阔大三房:户型方正,南向三开间、大阳台、多飘窗设计,约78%非承重墙占比,减少过道、拐角等冗余空间,增强空间拓展性,为不同家庭营造更为丰富的生活体验。
约140㎡宽奢大四房:约6.3米南向阔景阳台,约12.5米南向面宽,让阳光时刻充盈;灵动多功能房,高拓展百变空间可随心改造。
项目的园林已经成型了,有灌木、乔木多种绿植搭配↓
「双会所」也已经实景呈现。
下沉式会所,拥有酒吧式前台、沙发洽谈区、活动中心、观影区、书吧等配置。
特别说明:
1.本文为要约邀请,不作为要约或承诺;相关宣传内容不排除因政府相关规划、规定及出卖人分期规划、未能控制等原因而发生变化;
2.本文部分图片来自于网络,如涉及版权使用,请联系删除;文本部分图片仅作为推广示意使用,非交付标准,最终以实际交付现状为准;
3.本宣传资料对项目周边学校等教育资源的介绍旨在提供相关信息,并不意味着本公司对就学安排作出承诺。教育资源的名称、办学性质、办学规模、学位设置、开学(班)时间、招生条件、收费标准及招生区域存在调整的可能,应以政府教育主管部门及办学方颁布的政策规定为准;
4.本资料对项目或产品的介绍,旨在提供相关信息,不意味着本公司对此作出了承诺,买卖双方的权利义务以《商品房买卖合同》及附件等协议为准;
5.宣传方保留对宣传资料修改和解释的权利
声明:本文由入驻焦点开放平台的作者撰写,除焦点官方账号外,观点仅代表作者本人,不代表焦点立场。
