官网:深圳【绿城越秀锦和玉鸣府】售楼处电话(首页)-2026绿城越秀锦和玉鸣府楼盘详情·最新价格-户型图·容积率-最新动态-看房热线
扫描到手机,新闻随时看
扫一扫,用手机看文章
更加方便分享给朋友
该项目由绿城华南投资发展有限公司开发,依托绿城品质营造经验与越秀雄厚实力,打造成为宝安区首个国标新规建设住宅,总占地面积约 1.9 万㎡,计容建筑面积 5.97 万㎡,严格遵循新国标规范建设,高层限高 80 米、标准层高不低于 3 米,在隔音、日照、电梯配置等方面全面升级,兼顾居住安全性与舒适度。
社区整体规划低密宜居,容积率仅 3.1,绿化率达 40%,由 5 栋 16-25 层小高层、高层住宅组成,搭配 1 所 9 班制幼儿园与 1500㎡社区商业,纯粹商品房社区无回迁房、保障房,居住氛围更纯粹。总户数 462 户,规划车位 530 个,车位比约 1:1.15,充分满足业主停车需求。
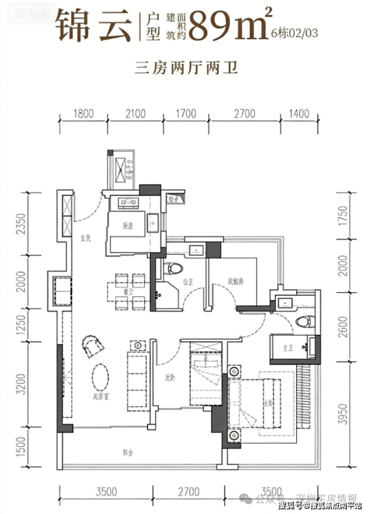
项目主打建面约 89-130㎡精装 3-4 房,全系遵循大面宽、南向采光、动静分区设计,搭配 270° 无柱转角飘窗与超大景观阳台,得房率高达 97.47%-104.06%,空间实用性拉满。



104-107㎡4 房 2 厅 2 卫
:四开间朝南,采光通透,主卧配备转角飘窗与设备平台,空间开阔,折后总价 462 万起,刚改家庭首选。



127-130㎡4 房 2 厅 2 卫
:南北通透格局,5.1 米阔绰客厅开间,独立玄关设计,主卧带衣帽间,约 14.09㎡超大阳台,改善居住一步到位,折后总价 573 万起。
所有户型均采用 U 型厨房、干湿分离卫生间,精装交付标准严苛,室内搭配全屋环保护墙板,公区大理石上墙,品质感拉满。


免责声明:本宣传资料所有文字、数据、图片及所标尺寸等仅为本项目建设区域设计效果的表达和示意,为要约邀请,不构成要约内容,相关内容不排除因政府相关规划、规定及其他原因而发生变化,一切有关房屋的具体信息以书面合同及政府最终审批文件为准。免责声明:本文章文字、数据和图片皆来源网络,如有侵权请告知立马删除,数据图片仅供参考,不作为邀约或承诺。
声明:本文由入驻焦点开放平台的作者撰写,除焦点官方账号外,观点仅代表作者本人,不代表焦点立场。
