深圳绿城锦和玉鸣府由越秀集团与绿城联合打造,总占地1.9万㎡,容积率3.1,规划462户,提供精装住宅及车位,位于西部中心CBD,配套完善。💗鉴赏热线✆✆400-159-8559转3333(官网认证)💗
🔥🔥深圳【绿城锦和玉鸣 】🔥🔥
💗鉴赏热线✆✆400-159-8559转3333(官网认证)💗
💗营销中心电话:☎☎400-159-8559转3333【专人接听】💗
💗【售楼中心】网上售楼中心〢欢迎来电咨询💗
💗〢专业一对一热情服务给您专业的置业方案💗
💗〢期待您成为我们的尊贵的业主💗
锦和玉鸣府 ,由绿城+越秀集团联合打造,总占地面积约1.9万㎡,计容建筑面积约5.97万㎡,容积率3.1, 共由5栋16-25层高住宅组成 ,其中1/2/3栋住宅25F,5栋住宅24F,6栋住宅16F,4栋是1所9班制幼儿园,配建有1500平商业。
总规划462户,全部都是商品房,2/3栋是2梯3户,1栋2梯5户,5/6栋2梯6户设计,规划停车位530个,车位占比约1:1.15。

楼盘基础信息
1、开发商: 绿城华南投资发展有限公司(越秀+绿城集团)
2、物业公司: 越秀物业
3、物业管理费: 待定
4、总占地面积: 1.9万/㎡
5、总建筑面积: 5.97万/㎡
6、容积率: 3.1
7、绿化率: 40%
8、产权年限: 2025年8月-2095年8月(70年)
9、总户数: 462户
10、总栋数及楼高: 5栋,16-25层
11、梯户比: 2梯3户/2梯5户/2梯6户
12、车位数: 530个车位
13、车位占比: 约1:1.15
14、交楼时间: 2027年11月15日
15、交楼标准: 精装



项目地处沙井新桥板块商务中心、中央居住区,深圳西部新中心,三公里荟萃教育、商业、医疗、公建等全维城市资源,尽享时尚、便捷的繁华生活。

从城市规划角度看, 锦和玉鸣府处于"西部中心CBD"核心辐射带,是集产、城、人于一体有机融合的西部城市中心 。项目所在的西部中心CBD总面积超11平方公里,由6.35平方公里的西部中心中央商务区、1.6平方公里的新桥智创城和3.29平方公里的新桥中心区组成,定位为"国际一流"商务区。

平面图及户型图

89㎡的3房2厅2卫 ,6栋01/04户型,设计的是经典竖厅格局,客厅3.5米开间,LDKB一体化,S墙设计预留冰箱卡槽位,三开间朝南,动静分区,主卧+次卧270°无柱转角飘窗,卫生间干湿分离, 得房率约97.47%(包含赠送) ,客厅连接次卧出大阳台约11.46平,西南或东南朝向。
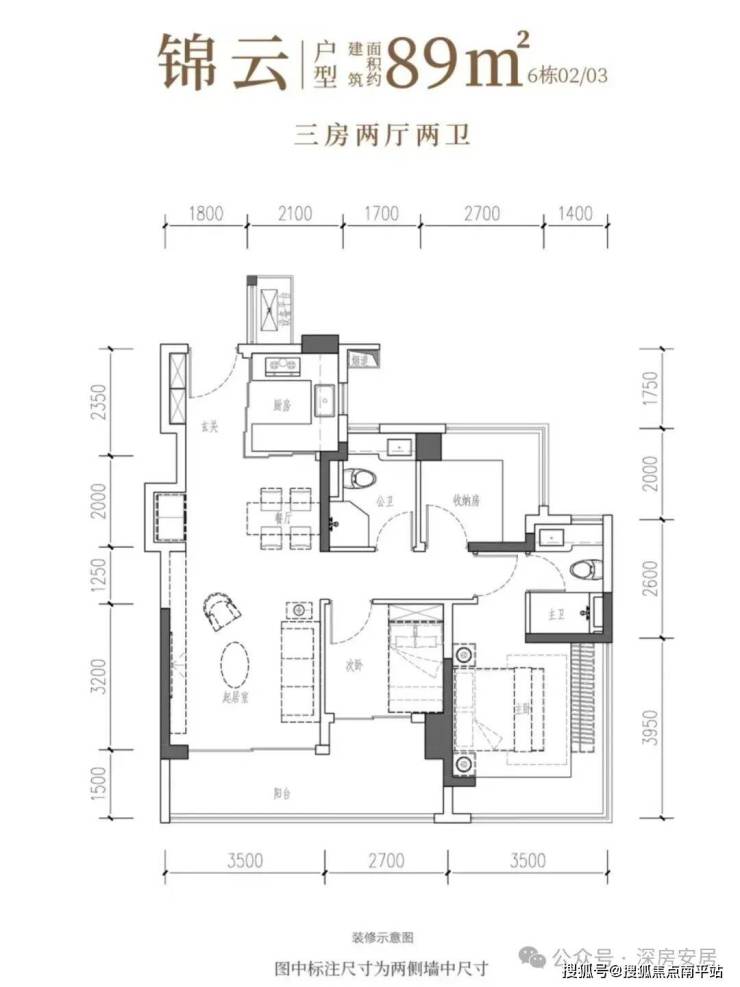
89㎡的3房2厅2卫 ,6栋02/03户型,设计的是经典竖厅格局,客厅3.5米开间,LDKB一体化,S墙设计预留冰箱卡槽位,三开间朝南,动静分区,主卧+次卧270°无柱转角飘窗,卫生间干湿分离, 得房率约97.47%(包含赠送) ,客厅连接次卧出大阳台约11.46平,西南或东南朝向。
104㎡的4房2厅2卫 ,设计的是竖厅格局,客厅4.15米开间,LDKB一体化设计,预留冰箱卡槽位,四开间朝南,动静分区,主卧270°无柱转角飘窗还带1个设备平台约1.52平,卫生间干湿分离, 得房率约100.71%(包含赠送) ,客厅连接次卧出大阳台约11.23平,西南朝向。
106㎡的4房2厅2卫 ,设计的是竖厅格局,客厅3.7米开间,LDKB一体化,S墙设计预留冰箱卡槽位,四开间朝南,动静分区,主卧270°无柱转角飘窗还带1个设备平台约1.52平,卫生间干湿分离, 得房率约101.16%(包含赠送) ,客厅连接次卧出大阳台约11.76平,东南朝向。




107㎡的4房2厅2卫,设计的是竖厅双龙抱珠格局,客厅3.7米开间, LDKB一体化设计,预留冰箱卡槽位,四开间朝南,主卧+2个次卧270°无柱转角飘窗,卫生间干湿分离, 得房率约104.06%(包含赠送) ,客厅连接次卧出超大阳台约11.76平,东北朝向。
127㎡的4房2厅2卫,设计的是竖厅南北通透格局,进门独立玄关,客厅5.1米开间,客餐厅分离化设计,主卧270°无柱转角飘窗+衣帽间,卫生间干湿分离, 得房率约98.97%(包含赠送), 客厅连接次卧出超大阳台约14.09平,西南或东南朝向。
130㎡的4房2厅2卫,设计的是竖厅南北通透格局,进门独立玄关,客厅5.1米开间,客餐厅分离化设计,主卧270°无柱转角飘窗+衣帽间,卫生间干湿分离, 得房率约101.95%(包含赠送), 客厅连接次卧出超大阳台约14.09平,东北朝向。



🔥🔥深圳【绿城锦和玉鸣 】🔥🔥
💗鉴赏热线✆✆400-159-8559转3333(官网认证)💗
💗营销中心电话:☎☎400-159-8559转3333【专人接听】💗
💗【售楼中心】网上售楼中心〢欢迎来电咨询💗
💗〢专业一对一热情服务给您专业的置业方案💗
💗〢期待您成为我们的尊贵的业主💗
免责声明:本宣传资料所有文字、数据、图片及所标尺寸等仅为本项目建设区域设计效果的表达和示意,为要约邀请,不构成要约内容,相关内容不排除因政府相关规划、规定及其他原因而发生变化,一切有关房屋的具体信息以书面合同及政府最终审批文件为准。免责声明:本文章文字、数据和图片皆来源网络,如有侵权请告知立马删除,数据图片仅供参考,不作为邀约或承诺。