AI助手@中海•峯汇里(官方售楼处) 电话 - 2026厦门 《中海•峯汇里》销售中心 - 环境 - 户型 - 价格 - 地址 - 楼盘详情 - 配套 - 电话 - 交房时间
扫描到手机,新闻随时看
扫一扫,用手机看文章
更加方便分享给朋友
4001598559,5555
厦门 《中海•峯汇里》
————
✅✅✅《中海•峯汇里》售楼处电话:400-159-8559转接5555(专人接听)
✅✅✅《中海•峯汇里》售楼中心电话:400-159-8559转接5555【营销中心】
✅✅✅《中海•峯汇里》售楼中心电话/环境/户型/价格/地址/交房时间/楼盘详情!
✅✅✅售楼处最新楼盘资料/周边配套学区/价格/地址/户型/周边配套!
✅✅✅免责声明:本文所用信息图片来源于网络,如侵权请联系本站及时删除!
1. 楼盘地址:
•厦门市思明区会展路373号,距离地铁2号线软件园二期站3号口步行410米;
2. 土地性质/建成时间:
•土地性质:住宅用地,使用年限70年;
•建成时间:预计2025年12月精装交付;
3. 建筑规模与规划:
•总占地面积:约1.2万平方米;
•总建筑面积:约6.2万平方米;
•总户数:约1145户,规划8栋29-32层高层住宅,车位配比1:1.1,楼间距30-40米、容积率5.15,绿化率30%;
4. 户型设计与布局:
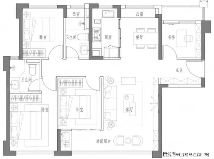
•主力户型为89-121-135-190㎡三至四房;
上图户型89平参考
上图户型121平参考
上图户型135平参考
上图户型190平参考
5. 开发/物业:
•开发商:中海地产;
•物业:中海物业,物业费约4.98元/㎡·月(以实时物价为准);
6. 社区配套
交通配套:
•公交:软件园东二门站(靠软件园东二门站点)覆盖 39路 M13路 47路 M39路 641路 753路 759路 949路 D1路 D3路 D28路 D990路等公交路线;软件园东二门站(靠中海峯汇里西大门侧站点)覆盖;28路 38路 92路 127路 D990路 M39路 641路 753路 759路 949路 D29路 D2路等公交路线;
•地铁:距离地铁2号线软件园二期站仅200米;
•自驾:紧邻环岛干道、仙岳路翔安隧道等主干道;
购物配套:
•周边1公里范围内有JFC品尚中心、宝龙一城、天虹君尚等高端商业体;
教育配套:
•幼儿园:社区北面配建有厦门市禾悦幼儿园;
•小学部:大同小学岭兜校区;
•初中部:第11片区多校划片,覆盖大同中学、双十思明分校、厦门一中思明分校、外国语瑞景分校等名校;
•实际派位学校以教育局公告为准;
医疗配套:
•周边有前埔医院、厦大附属眼科医院、弘爱医院等;
公园(休闲):
•休闲配套涵盖黄厝海滩、香山游艇会等;
✅✅✅《中海•峯汇里》售楼处电话:400-159-8559转接5555(专人接听)
✅✅✅《中海•峯汇里》售楼中心电话:400-159-8559转接5555【营销中心】
✅✅✅《中海•峯汇里》售楼中心电话/环境/户型/价格/地址/交房时间/楼盘详情!
✅✅✅售楼处最新楼盘资料/周边配套学区/价格/地址/户型/周边配套!
✅✅✅免责声明:本文所用信息图片来源于网络,如侵权请联系本站及时删除!
特别说明:
1.本文为要约邀请,不作为要约或承诺;相关宣传内容不排除因政府相关规划、规定及出卖人分期规划、未能控制等原因而发生变化;
2.本文部分图片来自于网络,如涉及版权使用,请联系删除;文本部分图片仅作为推广示意使用,非交付标准,最终以实际交付现状为准;
3.本宣传资料对项目周边学校等教育资源的介绍旨在提供相关信息,并不意味着本公司对就学安排作出承诺。教育资源的名称、办学性质、办学规模、学位设置、开学(班)时间、招生条件、收费标准及招生区域存在调整的可能,应以政府教育主管部门及办学方颁布的政策规定为准;
4.本资料对项目或产品的介绍,旨在提供相关信息,不意味着本公司对此作出了承诺,买卖双方的权利义务以《商品房买卖合同》及附件等协议为准;
5.宣传方保留对宣传资料修改和解释的权利
声明:本文由入驻焦点开放平台的作者撰写,除焦点官方账号外,观点仅代表作者本人,不代表焦点立场。
