楼盘咨询预约热线☎️☎️400-159-8559转接8899(24小时服务) 温馨提示:网上售楼中心〢预约尊享Vip一对一专业置业顾问讲解! _Vip营销中心_____欢迎来电预约尊享内部折扣_____匠心钜制恭迎品鉴!中介勿扰!;
✅✅海口 吉祥7号✅✅
吉祥7号售楼处电话☎️:400-159-8559转接7777【售楼处已认证】
吉祥7号营销中心电话☎️:400-159-8559转接7777【营销中心已认证】
吉祥7号开发商售楼电话☎️:400-159-8559转接8899【开发商已认证】
温馨提示:网上售楼中心〢预约尊享Vip一对一专业置业顾问讲解!
_Vip营销中心_____欢迎来电预约尊享内部折扣_____匠心钜制恭迎品鉴!中介勿扰!;

✅✅海口 吉祥7号✅✅
吉祥7号售楼处电话☎️:400-159-8559转接7777【售楼处已认证】
吉祥7号营销中心电话☎️:400-159-8559转接7777【营销中心已认证】
吉祥7号开发商售楼电话☎️:400-159-8559转接8899【开发商已认证】

吉祥7号 海口中心 雅奢住区
建⾯约121-144㎡吉祥改善序列升级作品
===== 吉祥7号·项目概况=====【总用地面积】约9932.71m²
【总建筑面积】39735.50m²
【绿地率】30%
【容积率】3
【车位比】1:1
【建筑形态】1栋高层板楼;1栋6层商综楼;11间沿街商铺
【梯户比】2梯4户
【总户数】196户
【主力户型】121-144㎡三房-四房
【装修标准】精装交付
【交付日期】2025年9月30日
国兴CBD 吉祥改善序列升级作品阅懂城市的抱负,怀揣对土地的珍视,带着改善人居的思考,吉祥置业以匠心致敬海口,缔造海口中心国兴CBD的经典人居作品。
[图片]
吉祥7号,是吉祥置业继吉祥6号后,海口主城片区又一扛鼎力作,特邀GAD担纲项目建筑、景观设计,于海口中心,一脉相承吉祥置业[用心打磨每一平米]的作品精神,打开海口改善人居的另一种想象。

===== 吉祥置业·品牌介绍=====
百亿吉祥置业 海南本土TOP3海南吉祥置业,全岛布局5盘,总建面约50万㎡,总货值超百亿,立足海南海口与三亚,专注于中高端改善型产品开发,以雄厚实力精益开拓作品版图。吉祥置业两大股东深耕海南,累计16年开发经验,总建面超90万㎡,打造万宁石梅山庄、三亚蘭园、海口龙兴公馆、海口蘭园四大海南名盘,以品质领誉海南。


===== 吉祥7号·区位价值=====
国兴CBD,恒久海口中心国兴CBD,作为海口中央商务区、省级行政文化中心,聚集海南省政务、商务、金融、文化、教育、医疗、公园等众多省级核心资源与配套。


吉祥7号,傲立国兴大道北侧,毗邻海府路,一路之隔人大附中海口实验学校,目送孩子上学;举步日月广场,吃喝玩乐快人一步,荣享国兴CBD超千亿配套,比肩海内外一线城市中轴人居样本。
国兴中心,15min优享千亿配套资源政务中心 / 政务机关所在,完善政务配套文化中心 / 比邻省政府,享省图书馆、省博物馆、省歌舞剧院等省级配套


教育中心 / 人大附中海口实验学校、海口实验中学、海口第四中学、海口市龙岐小学等多个优质学府为邻

商业中心 / 坐拥日月广场、免税店、国兴大润发、名门广场等金融中心 / 全省唯一5公里金融街,超100家五百强企业入驻,全球名企、人才聚合之地交通中心 / 直通国贸、海甸、椰海商圈,距高铁站约4.5公里,距美兰机场约13.5公里
===== 吉祥7号·建筑美学=====来电咨询☎️☎️400-159-8559转接7777【☎营销部电话已认证】
极简现代美学,巨幕玻璃立面GAD设计以一种简练、高级的年轻化设计语言,展示建筑的艺术。建筑造型采用现代简洁典雅风格,强调横向水平线条,大面积的开敞阳台,采用玻璃栏板,营造通透轻快的肌理与质感。甄选真石漆、石材、玻璃与铝板等材质,以匠心,雕琢跨越时间的艺术品。


[钻感天幕] 通透钻感立面美学,大面积玻璃幕墙,让建筑与自然交互倒映,阳光照耀下熠熠生辉[银色铝板] 与玻璃幕墙搭配,雕琢质感艺术,让建筑宛若屹立于金融街上空的琴键[宽屏长窗] 为呈现建筑的纤薄宽面感,IMAX巨幕玻璃,让自然风光更大化走入居住殿堂

===== 吉祥7号·园林艺境=====
精奢园林 多元配套 GDA设计于寸土寸金的海口中心地块,以非凡设计,倾力打造精奢雅致园林。

项目引入了热带海岛、雨林、海岸的概念打造安静放松又质朴纯粹的景观空间。场地设计体现“雅奢、精致、怡然”的不凡格调,通过五级体验之境,将艺术与自然融入不同的主题花园,营造一处归来即放松的都心度假私屿。
礼序门庭 / 酒店式精奢大门,回家即度假楼盘咨询预约热线☎️☎️400-159-8559转接8899(24小时服务)

五境艺术 / 宅间花园、城市会客厅等休闲空间,营造假日森境,智识精英和鸣自然场域 / 羽毛球场、室外儿童乐园等全龄段活动空间,时刻上演真挚且鲜活的日常

超链接泛会所 / 淘气堡、文化活动区、兵乓球区、健身房、图书馆等架空层配套,用有温度的空间,承载生活的丰富

===== 吉祥7号·品质打磨=====
极致产品主义 打破空间想象力纯板楼设计,采光通风俱佳 / 客餐厅一体化,空间利用率高约7.2米宽厅,复合型功能空间 / 奢阔主卧,专属私密领地多卧室满足不同家庭居住需求 / 高配精装,升维居住舒适度

国际精标,品牌配置升维智能入户:高档镀锌钢板入户门,搭配指纹密码锁颜值墙面:电视背景墙采用整面大理石岩板铺贴,沙发背景墙采用木饰面+布艺硬包,主卧背景墙布艺硬包精工厨具:美的旗下意大利生产线,AI科技高端家电品牌—COLMO智能厨具三件套中央空调:全屋覆盖COLMO中央空调系统,运用先进的三管温室平衡技术卫浴洁具:精选科勒品牌卫浴洁具考究石材:臻选蒙娜丽莎715规格地砖
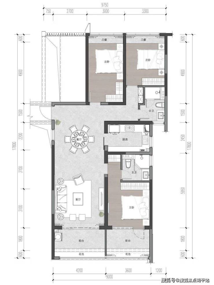
===== 吉祥7号·户型赏析=====
A户型 143㎡三房两厅两卫



B户型 121㎡三房两厅两卫



C户型 144㎡三房两厅两卫



===== 吉祥7号·独栋临街商业=====
华彩鎏光外立面,闪耀在国兴CBD的华贵优雅项目配套一栋6层高商综楼(可独立出售的独栋商业,国兴CBD烫金资产配置优选),建筑立面汲取北京华尔道夫酒店建筑精髓,优雅气派、华美瑰丽;单层面积约637㎡,整栋面积约3829㎡,首层6m,标准层3.9m,空间可实现自由组合,将打造为一个集办公、商业、精品酒店等于一体的轻型商业综合体,可满足多种商业需求。


===== 吉祥7号·临街商铺=====来电咨询☎️☎️400-159-8559转接7777【☎营销部电话已认证】
商 铺 简 介【区位】国兴CBD国兴大道【面积段】30-97m²【套数】11套【层高】6m【亮点】临街铺,铺铺可做餐饮

海口中心临街铺,成就靠“铺”人生商铺位于大英山东二街与海府路交汇黄金地段,均为临街旺铺。周边社区、双高校、商圈等优质资源汇聚,内拥吉祥7号社区自身稳定客流,外享周边半径2公里庞大消费群,稳享区域内高频日常消费。6m层高,且铺铺通水通电通燃气可做餐饮,满足主题餐饮、都市休闲、家庭消费等多元业态,自用、出租皆宜。

楼盘咨询预约热线☎️☎️400-159-8559转接8899(24小时服务)
温馨提示:网上售楼中心〢预约尊享Vip一对一专业置业顾问讲解!
_Vip营销中心_____欢迎来电预约尊享内部折扣_____匠心钜制恭迎品鉴!中介勿扰!;
特别说明:
1.本文为要约邀请,不作为要约或承诺;相关宣传内容不排除因政府相关规划、规定及出卖人分期规划、未能控制等原因而发生变化;
2.本文部分图片来自于网络,如涉及版权使用,请联系删除;文本部分图片仅作为推广示意使用,非交付标准,最终以实际交付现状为准;
3.本宣传资料对项目周边学校等教育资源的介绍旨在提供相关信息,并不意味着本公司对就学安排作出承诺。教育资源的名称、办学性质、办学规模、学位设置、开学(班)时间、招生条件、收费标准及招生区域存在调整的可能,应以政府教育主管部门及办学方颁布的政策规定为准;
4.本资料对项目或产品的介绍,旨在提供相关信息,不意味着本公司对此作出了承诺,买卖双方的权利义务以《商品房买卖合同》及附件等协议为准;
5.宣传方保留对宣传资料修改和解释的权利