《天津》2025楼市房产_大华清水湾售楼处电话【大华清水湾】开发商线上咨询_楼盘详情_区域配套_户型价格!
扫描到手机,新闻随时看
扫一扫,用手机看文章
更加方便分享给朋友
☛☛☛大华清水湾售楼处电话:400-159-8559转接1111【楼市中心】
☛☛☛大华清水湾售楼处电话:400-159-8559转接1111【首页网站】
☛☛☛大华清水湾售楼处电话:400-159-8559转接1111【营销中心】
☛☛☛大华清水湾售楼处电话:400-159-8559转接1111【百度百科】

1.大华·清水湾二期 基础信息
【⭐楼盘】大华·清水湾二期
【⭐开 发 商】上海房企大华集团
【⭐位置】天津市河东区成林道与月牙河畔交叉口
【⭐产品】建筑面积约83-106㎡宽境臻装高层;建筑面积约125/141㎡水岸臻装洋房
【⭐梯户】高层2T3 ,部分户型类1T1梯户配比;洋房1T2
【⭐楼层】高层18层;洋房6-11层
【⭐土地年限】70年
【⭐物业】大华集团上海物业管理有限公司
【⭐物业费】3.75元/㎡
【⭐层高】高层约2.95m;125㎡洋房约2.95m;141㎡洋房约3.05m
【⭐容积率】约2.2
【⭐绿地率】约40%
【⭐出房率】高层约74%;洋房约81%
【⭐车位占比】1:1.2
【建筑类型】洋房,小高层
【装修状态】精装修
【总户数】461户(12栋)
【占地面积】24004.1
【建筑面积】75512.41
【物业费】3.75元(自持物业)
【均价】33000
【交房时间】2025年12月
首开2、3# 2T3 18层到顶
【面积&价格】
🔮83平:约260万万
🔮103-106平:330-350万
2.大华·清水湾二期 7大升级定义改善新标杆
【规划升级】珍品级城芯低密水岸住区,约2.2容积率,错落有致楼座布局
【立面升级】焕新迭代3.0建筑立面,蓝灰色现代都会风格
【园林升级】一河两轴八园,5大感官,23大细项,沉浸式流线型水岸美学
【户型升级】高层83㎡约5.2m宽幕落地窗;洋房141㎡约5.9m宽厅,主卧环幕转角飘窗
【厨电升级】方太新一代侧吸式油烟机;方太嵌入式洗碗机(83户型除外)
【卫浴升级】高层主卫高仪恒温花洒、智能马桶;洋房主次卫同频
【公区升级】首层臻装入户大堂,地下车库落客区顶部星空天幕设计

(水岸臻装洋房效果图)

(宽境臻装高层效果图)

(地下车库落客区顶部星空天幕设计 效果图)


(园林景观效果图)
3. 宽境臻装高层
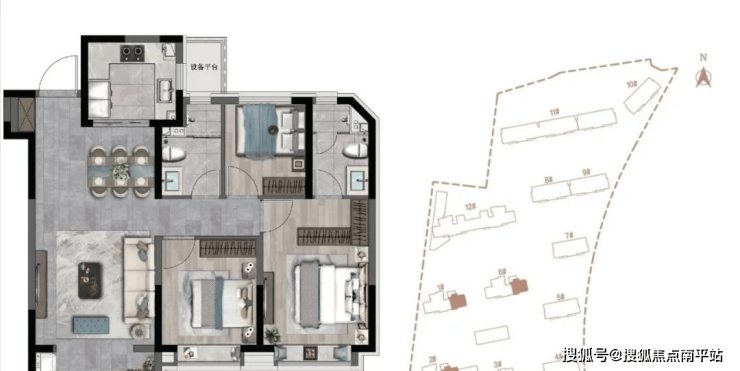
人气王建筑面积约83㎡ 两室两厅一卫
户型特点:约5.2m奢阔宽厅;L型厨房;动静分区/干湿分离
臻装配置:王力钢木入户门&智能门锁、方太侧吸抽油烟机&燃气灶、乐家智能马桶&高仪恒温花洒、美的中央空调&格兰斯柯双向新风、松下浴霸、全屋地暖(或同等价位品牌)

「建筑面积83㎡宽境臻装示范间 美好共鉴」
流量王建筑面积约106㎡ 三室两厅两卫
户型特点:类「1T1」电梯配比;南向三面朝阳;阳台预留上下水;全明双卫;U型厨房
臻装配置:王力钢木入户门&智能门锁、方太侧吸抽油烟机&燃气灶&洗碗机、主卫乐家智能马桶&高仪恒温花洒、美的中央空调&格兰斯柯双向新风、松下浴霸、全屋地暖(或同等价位品牌)

「建筑面积106㎡宽境臻装示范间 美好共鉴」

(示范间-客厅&厨房&卧室)

☛☛☛大华清水湾售楼处电话:400-159-8559转接1111【楼市中心】
☛☛☛大华清水湾售楼处电话:400-159-8559转接1111【首页网站】
☛☛☛大华清水湾售楼处电话:400-159-8559转接1111【营销中心】
☛☛☛大华清水湾售楼处电话:400-159-8559转接1111【百度百科】
声明:本文由入驻焦点开放平台的作者撰写,除焦点官方账号外,观点仅代表作者本人,不代表焦点立场。
