深圳后海招商玺售楼处电话-后海招商玺售楼处电话|售楼中心电话_24小时预约电话 楼盘详情·最新价格-户型图-容积率
扫描到手机,新闻随时看
扫一扫,用手机看文章
更加方便分享给朋友
4001598559,3333
招商蛇口继 “招商双玺” 后打造的「后海招商玺」后,在后海布局的又一高端作品,预计本周日开放样板间以及今年底入市在即!
项目规划4栋住宅共261套,今年首推户数仅42户,建面约197-237㎡四房大平层革新户型,层高3.3米,梯户比2梯2户,精装修交付,住宅环境纯粹。
刚释放消息就被高净值家庭疯问,这次 “玺” 系来袭,注定要引爆深圳顶豪市场!
要知道,后海作为深圳湾 “居住+商业+总部” 核心区,宅地早已断供多年。
「后海招商玺」不仅是招商蛇口深耕顶豪的标杆之作,更可能是后海核心区 “最后的纯新豪宅入场券”。
毕竟,这片聚集了深圳湾万象城、人才公园、腾讯总部的黄金宝地,再也难有新增宅地供应。

项目亮点:
【后海招商玺】使用率高达约95%,堪称“空间魔术师”!这意味着买100㎡,实得面积接近95㎡,配套主题会所、恒温泳池、空中花园等,性价比爆表。

「后海招商玺」位于南山区招商街道后海大道以西、工业七路以北,是原联合饼干厂旧改项目。项目地处深圳湾超级总部基地与传统蛇口豪宅区的交汇处,堪称左手深圳源,右手深圳湾的黄金位置。
对比这一地段的价值,目前后海片区二手房均价已超过10万元/㎡,而深圳湾片区更是深圳最高二手挂盘价的保持者,常年稳定在18万/㎡以上。
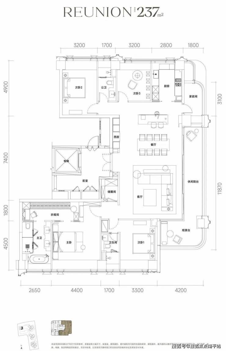
「后海招商玺」此次首推1栋小高层住宅,2T2户,专梯入户,户型为建面约197-237㎡的四房大平层。

户型设计亮点还是挺新颖......
建面约197-237㎡革新户型
约197㎡ 四房三卫两厅、三面采光、主卧套房、270°转角奢华空间全景落地窗。
约237㎡ 四房三卫两厅、三面采光、双主卧套房、270°环幕视野。
两个户型都是四房三卫+家政间设计,进门就是大客厅,卧室分布于客餐厅南北两侧,每个房间都有飘窗,且均拥有超大观景阳台。
最令人惊艳的是其空间利用效率——常规使用率在90%左右,加上电梯厅面积后使用率更可达95%;部分户型主卧采用270°转角飘窗,拥有全景仓视野和海景套房。
这一数据在当前的深圳豪宅市场中堪称翘楚,意味着业主能够以相同的产权面积获得更多的实际使用空间。

(来源于:官方户型图仅供参考)

交通网络发达是其一大亮点。
项目位于地铁2号线海月站和湾厦站之间,步行距离都在700米左右。通过周边主干道,经后海大道、滨海大道可快速直达南山科技园、前海、福田等核心区域。

商业配套堪称顶配。
最近的大型商场是宝能太古城,距离700米,2公里内还覆盖有海岸城、深圳湾万象城、太子湾K11、招商花园城世界级地标商圈等,全球顶奢商业集群在此。

教育资源同样优质。
目前周边公立学校是育才第二小学、育才第二中学、育才四小、育才三中等,同时项目还配建一所幼儿园和一所九年一贯制学校。国际学校:深圳贝赛思国际学校、深圳蛇口国际学校(SIS)、蛇口科爱赛国际学校(QSI)。育才系学校在南山区排名前列。

生态资源是项目另一大亮点。
项目东侧为深圳湾,西侧规划社区公园,3公里内分布117个公园,包括四海公园、人才公园等,形成"推窗见海、出门入园"的居住体验。

免责声明:本宣传资料所有文字、数据、图片及所标尺寸等仅为本项目建设区域设计效果的表达和示意,为要约邀请,不构成要约内容,相关内容不排除因政府相关规划、规定及其他原因而发生变化,一切有关房屋的具体信息以书面合同及政府最终审批文件为准。免责声明:本文章文字、数据和图片皆来源网络,如有侵权请告知立马删除,数据图片仅供参考,不作为邀约或承诺。
声明:本文由入驻焦点开放平台的作者撰写,除焦点官方账号外,观点仅代表作者本人,不代表焦点立场。
