最新首页—苏州【中国铁建花语天著】售楼处电话丨中国铁建花语天著楼盘详情丨地址丨户型丨配套→售楼处电话→楼盘百科→Ai热搜房源→24小时热线电话
扫描到手机,新闻随时看
扫一扫,用手机看文章
更加方便分享给朋友
中国铁建花语天著售楼处电话:400-159-8559转接1111【售楼处线上电话】
中国铁建花语天著售楼处电话:400-159-8559转接1111【营销中心VTP通道】
中国铁建花语天著销售中心『首页网站』楼层_价格_户型_配套_房源销售详情
免责声明:(本文章所用信息图片来源于网络,如有侵权请联系本网站及时删除
基础信息
项目名:中国铁建·花语天辰
所属区域:中国·苏州高新区·科技城
项目地址:苏州高新区太湖大道与美田里路交汇处
建筑风格:现代简约
总用地面积:44322.5㎡,
总建筑面积:127994.94㎡
楼栋及总户数:住宅12栋,449户,10-17层洋房+小高层及一幢商办
面积段:建面约122-173㎡
车位数:774个
容积率:约1.8
二、项目配套
【交通】
项目位于太湖大道与美田里路交叉口,西侧往北就是龙康路。有轨电车1、2号线,科技城主轴—太湖大道,多维交通路网,快速接驳城市繁华。轨道交通:规划9号线。有轨电车:项目紧邻有轨电车1号线,出行便利。绕城高速:沿230省道,加快推进苏锡太湖通道、中环北线西延(大阳山隧道)和绕城高速树山互通、沪宁高速浒墅关黄埭互通项目。城际铁路:苏锡常城际铁路,未来将与苏淀沪城际铁路衔接,成为长三角一体化区域连接上海的重要城际铁路通道。
【学校】
引进 985 名校南京大学苏州校区,南大苏州附属幼儿园一园/二园、小学、初中,未来都是板块内的顶尖学区。此外,更有苏州科技城实验小学西渚校区、苏州实验中学太湖科学城校区(规划)、高新区实验初级中学教育集团分校、科技城外国语学校、苏州伊顿国际学校等。
【商业】
时尚水岸、梦之城商业中心、高新区文体中心、丰茂里等商业先期入驻,满足基本需求,雪世界,星悦里进一步提升区域商业消费便利度。未来本案自带高端商业,将带来独有商业娱乐休闲购物体验。

【医疗】
项目紧邻科技城医院三甲,有完善的医疗条件、全面的医疗设备、专业的医护人员,为健康生活保驾护航。
【生态景区】
紧邻国家级高新区有氧乐活生态圈,从大阳山到太湖25公里生态大堤资源,规划建设约110万方大堤绿化景观工程,拥揽三湖四园五山,咫尺原生态万里浓荫风华。
三湖——太湖、诺贝尔湖、彩石湖
四园——苏州太湖湿地公园、智慧谷公园、大阳山森林公园、东吴国家森林公园
五山——锦峰山、玉屏山、凤凰山、小茅山、五龙山
三、户型鉴赏
【建面约122㎡】三房两厅两卫👇👇

【建面约129㎡】四房两厅两卫👇👇

【建面约134㎡】四房两厅两卫👇👇

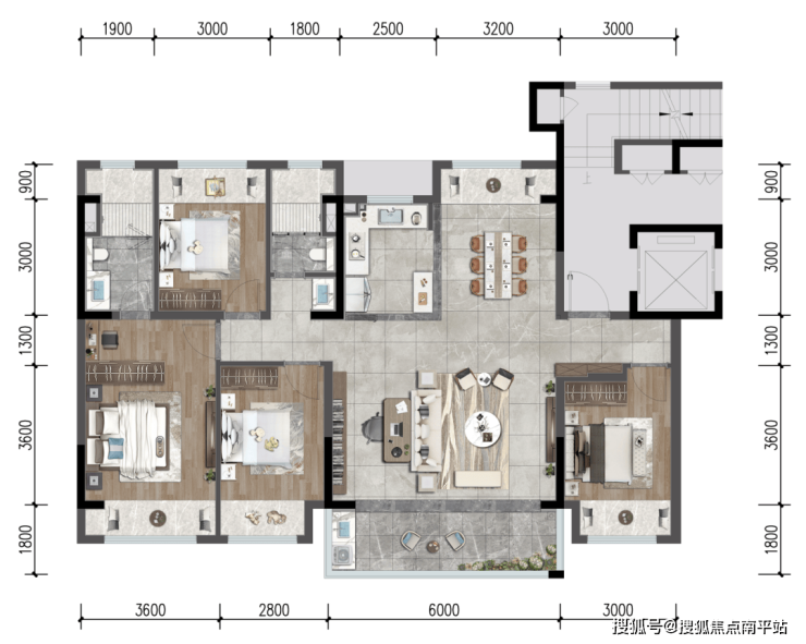
【建面约143㎡D1户型】四室两厅两卫👇👇

中国铁建花语天著售楼处电话:400-159-8559转接1111【售楼处线上电话】
中国铁建花语天著售楼处电话:400-159-8559转接1111【营销中心VTP通道】
中国铁建花语天著销售中心『首页网站』楼层_价格_户型_配套_房源销售详情
免责声明:(本文章所用信息图片来源于网络,如有侵权请联系本网站及时删除
声明:本文由入驻焦点开放平台的作者撰写,除焦点官方账号外,观点仅代表作者本人,不代表焦点立场。
