厦门【国贸天琴海营销中心】最新首页【国贸天琴海售楼处电话】房价_电话_户型_楼盘详情
扫描到手机,新闻随时看
扫一扫,用手机看文章
更加方便分享给朋友
国贸天琴海售楼处电话:400-159-8559转接1111【售楼处线上电话】
国贸天琴海售楼处电话:400-159-8559转接1111【营销中心VIP通道】
国贸天琴海销售中心『首页网站』楼层_价格_户型_配套_房源销售详情
免责声明:(本文章所用信息图片来源于网络,如有侵权请联系本网站及时删除

九栋楼栋以三排整齐排列,错落有致,高低错落的设计特色为建筑带来了别样的动感气息。同时,主体设计充分汲取了湾海背后的海洋文化精髓,将其融合于建筑之中。
流体美学元素被巧妙地融入立面设计中,通过极简流线型的勾勒,为建筑注入更加优美的造型美感。这种别样的设计元素,为九栋楼栋营造出独具特色的建筑风貌,让人无法忽视其独特魅力。
顶部转角的弧形,大开大合,极富张力,给人一种海浪的冲击感。

除了能享受纯熟的五缘湾生活配套外,项目还能拥有东南面的湾海双景,部分朝东的大户型景观视野不错。
而且,这也是五缘湾板块新盘中罕见的100平以下户型,其中,具备优质景观的大平层户型面积为258平,而价格也相当实惠,项目限价7.18万。

8、9、10号楼意向登记即将截止,一房一价表:
01
核心推荐理由
01 核心区位
位于厦门岛内五缘湾内湾核心位置,拥有非常稀缺的东南面湾海双景观资源。
02 标杆立面形象
湾海背后的海文化,将游艇设计理念引入,代表着超前的海湾人居形象。
03 定制化的墅级产品
超越当下的创新,前瞻未来的审美,打造鹭岛难以复制的TOP级产品。
社区入口采用酒店式大堂形式,立面以滨海风格为主调,园林择取鸢尾花为核心元素,定制古典主义庄园,实现滨海与古典交融,让所瞰之处,皆是海洋风情的艺术表达,在古典和浪漫中,形成尊贵的归家感受。

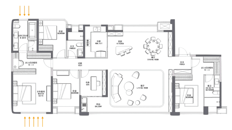
在户型设计中,天琴海也给出了湾区近乎满分的答卷,如建面约215㎡天樾户型,用大面宽+短进深的设计,为五缘湾带来罕见的通透大平层。南向瞰景面合计约22米,超越岛内同等面积的户型面宽。户型同时做到了“全明”采光,通透的11室,全屋无暗房。

装修创意效果图(过程稿)
墅级空间设计理念,在平层之内构造出类墅的生活方式。双主卧分布户型两端,照顾多代人起居。极致的户型设计,使得在五缘湾一步到位的置业需求,被完美锁定。

装修创意效果图(过程稿)
而建面约258㎡藏品级大平层,270°游艇级观景角度,东南向超35米的寰幕湾海景观,全屋9向湾海景观、13向瞰景视野。

装修创意效果图(过程稿)
叠加约80㎡的端厅设计,从户型格局可见产品考究,也不负众望的成为营造改变厦门未来十年甚至更久的生活方式的代表作。

近几年,限价政策让开发利润压缩,优质高端住宅的开发并不多见。继万科湖心岛、恒禾七尚、国贸天琴湾等经典奢宅作品之后,岛内优质作品断档多年,天琴海的出现,不仅引领了岛内高端改善的楼市大旗,更是国贸地产在奢宅市场统治力的完美体现。
据悉,天琴海已近售罄,目前仅少量建面约185-258㎡大平层,将成为入主五缘内湾的最后封藏。用心耕耘每一处土地,让产品经得起时间的考验。今天的国贸地产,正以国企的实力与责任,用高品质产品的坚守与初心,为厦门的美好生活赋能。


国贸天琴海售楼处电话:400-159-8559转接1111【售楼处线上电话】
国贸天琴海售楼处电话:400-159-8559转接1111【营销中心VIP通道】
国贸天琴海销售中心『首页网站』楼层_价格_户型_配套_房源销售详情
免责声明:(本文章所用信息图片来源于网络,如有侵权请联系本网站及时删除
声明:本文由入驻焦点开放平台的作者撰写,除焦点官方账号外,观点仅代表作者本人,不代表焦点立场。
