🔥🔥天津【格调·尔雅】🔥🔥 ———————— VIPline ☎️:400-159-8559转接5555【贵宾热线】
售楼中心☎️:400-159-8559转接5555【线上客服】 ✨网上预约更方便〢看房预约不排队〢专业一对一热情服务〢 ✅如需了解最新房源信息_在售房源价
🔥🔥天津【格调·尔雅】🔥🔥
☏【售楼中心电话】✨✽✽✽✽
VIPline:400-159-8559转接5555【贵宾热线】
☏(提前来电预约享内部折扣)✨✽✽✽✽
⫸预约来电尊享线上团购优惠✨✽✽✽✽
⫸开发商售楼处直销,中介勿扰!✨✽✽✽✽
⫸网上售楼中心24小时销售热线〢欢迎您的来电咨询〢
今年2月河东工大2号地土拍,总价 7.1亿元,土地楼面价 16188元/㎡;
去年12月底拍的工大4号地,总价 11.335亿元,土地楼面价 17997元/㎡。
2号地格调代建,4号地金茂获取,2号地南侧是上实仰山,已经现房。

项目案名已经发布:格调·尔雅。
容积率仅为1.3,是叠拼+洋房的设计,全架空层。
住宅一共10楼栋,2栋叠拼+8栋洋房(4/6/9/11F),共计320套房源;
楼栋 南低北高排列,南面两栋是叠拼,4F到顶,中间是4-11F到顶的洋房,最后一排4栋楼11F到顶。

洋房户型105、128、135㎡,一楼带小院;
叠拼4层到顶,面积155和170㎡,叠拼带南北双院,上叠带露台。
预计首开的1号楼和8号楼涵盖了洋房的三种产品,首开楼栋东侧即是泮湖公园。

虽然洋房是1T2户,但每个户型都是贯通梯设计,相当于1T1的配置,门前电梯厅等于是私家候梯厅,变相增加自己的可使用面积。
105㎡户型
电梯厅相当于户外玄关厅,水电管井都放到了楼梯那边,电梯厅部分不受干扰;
入户进来宽敞玄关,北侧厨房设备平台赠送,客厅5米宽厅,封闭阳台不计容;
客厅和次卧的动线,次卧从客厅位置开门,需要留出位置给次卧做动线,整体客厅进深短,入户门占据一部分后,次卧的客厅墙体就更短,整体布局上可能会造成空间浪费,后期装修设计时可能需要更多考虑,或者玄关侧最右侧开门不对玄关,可能也有空间浪费,根据个人情况权衡居住动线。
有时候感觉5米厅这种会比较尴尬,尴尬点在于做两个功能间,切割了不太好用,做一个功能间似乎又有点奢侈。

128㎡户型
同样贯通梯,即私家电梯厅;入户大玄关,厨房位置外扩设备平台,餐厨一体;
客厅开间7.1米,做双功能间分割相当舒服,次卧开门位置与上一个户型一样,但这种就不会显浪费,空间足够大,人有转身的余地。
主卧开间3.7米,加上飘窗赠送,L型转角设计,主卧就变得相当阔绰,是大主卧套间设计。

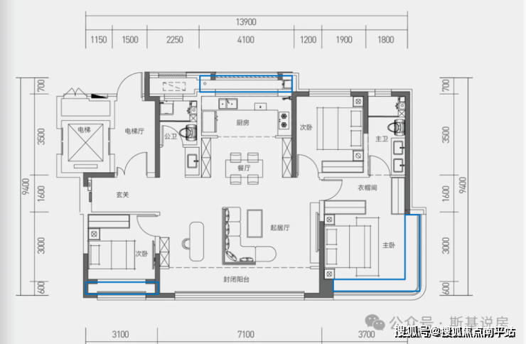
139㎡户型
相当于更大尺度的升级;
5.2米开间的厨房,可外扩至设备平台;
7.7米客厅大开间,但客厅进深短,电视墙和收纳柜之间会冲突;
主卧4米开间,主卧套设计,衣帽间的化妆台位置很人性化地考虑了明窗设计,照顾到女主人的心情。

🔥🔥天津【格调·尔雅】🔥🔥
————————
VIPline ☎️:400-159-8559转接5555【贵宾热线】
售楼中心☎️:400-159-8559转接5555【线上客服】
✨网上预约更方便〢看房预约不排队〢专业一对一热情服务〢
✅如需了解最新房源信息_在售房源价格_请拨打上方售楼部电话!
免责声明:本宣传资料所有文字、数据、图片及所标尺寸等仅为本项目建设区域设计效果的表达和示意,为要约邀请,不构成要约内容,相关内容不排除因政府相关规划、规定及其他原因而发生变化,一切有关房屋的具体信息以书面合同及政府最终审批文件为准。免责声明:本文章文字、数据和图片皆来源网络,如有侵权请告知立马删除,数据图片仅供参考,不作为邀约或承诺。