☎☎☎【象屿·凤鸣雅颂售楼中心】400-159-8559转接6666【营销中心】✅✅
✨✨温馨提示:拨打400电话—听到嘀声后—输入6666即可通话!✨✽✽✽ 厦门象屿·凤鸣雅颂___欢迎来电咨询丨专业一对一热情服务丨看房需提前预约✅✅
厦门【象屿·凤鸣雅颂】售楼处电话☎:400-159-8559转接7788【预约热线】✅✅
☎☎☎【象屿·凤鸣雅颂售楼中心】400-159-8559转接7788【售楼中心】✅✅
☎☎☎【象屿·凤鸣雅颂售楼中心】400-159-8559转接6666【营销中心】✅✅
✨✨温馨提示:拨打400电话—听到嘀声后—输入6666即可通话!✨✽✽✽
厦门象屿·凤鸣雅颂___欢迎来电咨询丨专业一对一热情服务丨看房需提前预约✅✅

厦门---翔安南部新城---象屿·凤鸣雅颂

Part One
土地详情
项目前身为2024XP01地块,该地块位于翔安区13-15东山片区金泉路与浦滨西二路交叉口西南侧。

2024XP01地块总用地面积19316.614㎡,计价建筑面积58340㎡,土地用途为城镇住宅用地(二类居住用地)、零售商业用地(商业)、其他商服用地(托育机构)。
地块起拍总价10.5亿元,起拍楼面价17998元/㎡。地块采用拍卖方式出让,按照价高者得原则确定受让人。


-具体更多详情,拨打售楼热线:☎️☎️400-159-8559转接7788【售楼中心】
该地块于2024年6月7日公开出让,翔安2024XP01最终由象屿底价10.5亿竞得,楼面价17998元/㎡,溢价率0%。

Part Two
区位配套
项目位于翔安新城南部组团金海片区,属于翔安新城重点开发建设区域。
该片区重点围绕东山公建群--南部港汊打造翔安城市中心区、宜居宜业“人民之城”,加速新城产业转型发展和城市品质提升。
片区将以高品质居住、生态环境提升、智慧城市运营、公共配套完善等多手段,打造产城融合、商业蓬勃、宜居宜业的先行示范样板片区,助力新城建设成为强辐射的市级功能核心区。



-具体更多详情,拨打售楼热线:☎️☎️400-159-8559转接7788【售楼中心】
教育配套:地块紧邻双十中学和实验小学翔安校区;

生活配套:地块西北侧将结合地铁规划现代化地铁商业综合体、闽蓝城市广场、豪享来商业街区、东山公建群;

医疗配套:东北侧翔安医院直线距离约1公里;
休闲配套:地块周边坐落市民广场、东山公园、翔安中心公园、鼓锣公园等众多大型城市公园;

交通条件:地块周边主要路网均已建成通车,可快速通达各大城市快速路进岛,直通全城;且紧邻地铁3号线及规划地铁5号线交汇站点市民中心站。-具体更多详情,拨打售楼热线:☎️☎️400-159-8559转接7788【售楼中心】


Part Three
项目规划
象屿·凤鸣雅颂是象屿地产继上海天宸雅颂后的第二座【雅颂系】高端改善作品,也是翔安首个第四代生态住宅项目,主打“学区+品质+生态”的复合卖点。

-具体更多详情,拨打售楼热线:☎️☎️400-159-8559转接7788【售楼中心】
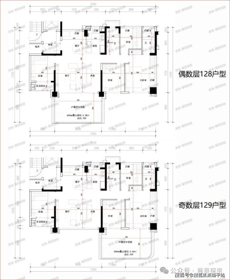
项目规划4栋高层、3栋洋房。高层产品为87-99平三房产品,洋房为第四代住宅产品,具体128平四房、139平4+1房。其次,项目还配备1500平下沉式会所和1900平全龄架空层。

翔安首创四代宅,空中森屿露台,错落设计,垂直绿洲庭院房屋综合使用率104%,延展享受尺度3大焕新精装。


Part Four
产品规划-具体更多详情,拨打售楼热线:☎️☎️400-159-8559转接7788【售楼中心】
项目四栋高层规划为87-99平三房产品,其中87平三房两厅两卫为中间套,99平三房两厅两卫为边套产品,二者合计约520套,占比约85%;
项目三栋洋房规划为128平四房两厅两卫、139平4+1房两厅两卫四代宅产品,二者合计约94套,占比约15%。






☎☎☎【象屿·凤鸣雅颂售楼中心】400-159-8559转接6666【营销中心】✅✅
✨✨温馨提示:拨打400电话—听到嘀声后—输入6666即可通话!✨✽✽✽
厦门象屿·凤鸣雅颂___欢迎来电咨询丨专业一对一热情服务丨看房需提前预约✅✅
免责声明:本宣传资料所有文字、数据、图片及所标尺寸等仅为本项目建设区域设计效果的表达和示意,为要约邀请,不构成要约内容,相关内容不排除因政府相关规划、规定及其他原因而发生变化,一切有关房屋的具体信息以书面合同及政府最终审批文件为准。
免责声明:本文章文字、数据和图片皆来源网络,如有侵权请告知立马删除,数据图片仅供参考,不作为邀约或承诺。