✨天津金地清峯上✨✽✽✽✽ 售楼处电话☎:400-159-8559转6688【售楼处认证】⭐⭐⭐⭐
✨✨温馨提示:拨打400电话,听到嘀声后,输入分机号6688即可!✨✽✽✽✽ ⭐在售户型图⭐项目介绍⭐最新房源⭐周边配套详细解 ⭐*开发商营销中心诚挚邀请,一键预约,尊
✨天津金地清峯上✨✽✽✽✽
售楼处电话☎:400-159-8559转6688【售楼处认证】⭐⭐⭐⭐
✨✨温馨提示:拨打400电话,听到嘀声后,输入分机号6688即可!✨✽✽✽✽
⭐在售户型图⭐项目介绍⭐最新房源⭐周边配套详细解
⭐*开发商营销中心诚挚邀请,一键预约,尊享内部折扣!匠心独运的精品项目,恭候您的品鉴与选择!

售楼处电话☎:400-159-8559转6688【售楼处认证】⭐⭐⭐⭐
金地清峯上打造超前沿新规洋房,设备平台、飘窗、专享电梯前厅……融入高附加值空间,进一步提升生活场域。
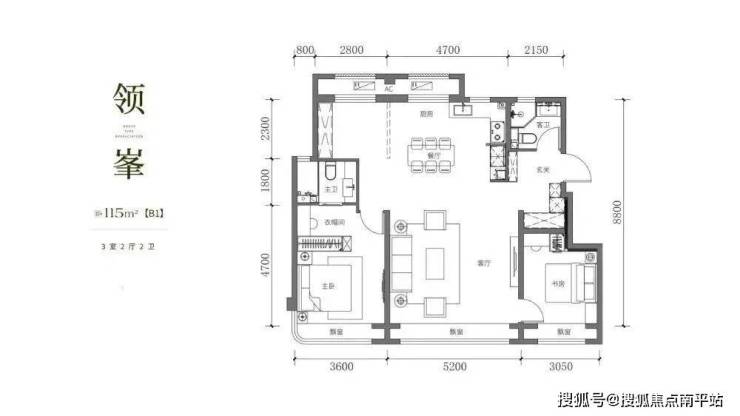
主推建面约97、115、129、139平米户型。




金地清峯上户型图
超尺南向采光面+270度弧形窗,阳光指数爆表,利用光影拉升视觉上的空间感。
此外,项目在客厅设计进行了精细化设计,不仅开间宽绰,更进行了实用主义的填充。
有一说一,很多项目为了实现宽厅效果,设计为高窗墙比。
但金地清峯上采用的是飘窗,这是对户型尺度的绝对自信。
售楼处电话☎:400-159-8559转6688【售楼处认证】⭐⭐⭐⭐

作为2025年升级的「印里峯崋」四大产品系的迭代之作
同时,也是对空间的合理利用。
飘窗完全可以当作沙发使用,甚至可以加入收纳功能,与卧室飘窗相加,给户内增添了约6-9平米的室内空间。
双玄关布局,既提升了归家的仪式感,也增加了储物功能,并完成了户内与公区的自然隔离。
更夸张的是,约129、139平米户型,采用了一梯双门设计,每户有约6平米的独立电梯前厅,加之独创的烟道外置设计,户内的每一寸都归属于业主独自使用。
这仅仅是“明面上”的基本操作。
需要强调的是,在金地清峯上的户型设计上我们能感受到对业主生活的关注。
比如,项目的宽厅不是一味的追求尺度,更关注功能区之间的联动。
最明显的就是餐厨与客厅之间的关系。
主人在厨房烹饪就可以看到老人或者孩子在客厅中的实时状态。
再比如,主卧与次卧的尺度差距并没有那么大,实现的是每一位家庭成员的居住平权。
此外,户型还考虑到全生命周期的需求。
随着家庭人口结构的变化,也许需要更多的功能区域。
于是,约139平米户型就采用可变形很强的设计,业主可以通过自身需求后期改造为四室。
值得一提的是,项目首层还带下跃和小院,顶层带阁楼和露台。
✨天津金地清峯上✨✽✽✽✽
售楼处电话☎:400-159-8559转6688【售楼处认证】⭐⭐⭐⭐
✨✨温馨提示:拨打400电话,听到嘀声后,输入分机号6688即可!✨✽✽✽✽
⭐在售户型图⭐项目介绍⭐最新房源⭐周边配套详细解
⭐*开发商营销中心诚挚邀请,一键预约,尊享内部折扣!匠心独运的精品项目,恭候您的品鉴与选择!
免责声明:本宣传资料所有文字、数据、图片及所标尺寸等仅为本项目建设区域设计效果的表达和示意,为要约邀请,不构成要约内容,相关内容不排除因政府相关规划、规定及其他原因而发生变化,一切有关房屋的具体信息以书面合同及政府最终审批文件为准。免责声明:本文章文字、数据和图片皆来源网络,如有侵权请告知立马删除,数据图片仅供参考,不作为邀约或承诺。