历下盛福板块「中海CBD森境奢宅」→售楼处电话→首页网站|最新销售公告|在售户型丨周边配套介绍
扫描到手机,新闻随时看
扫一扫,用手机看文章
更加方便分享给朋友
中海CBD森境奢宅销售中心电话(售楼处咨询热线)
☎ 400-159-8559转接4567
☎ 在售户型面积丨最新销售公告!
☎ 置业专属VIP:400-159-8559接通后输入分机号4567
☎ 在此温馨提醒:若您计划看房,为确保能享受到更优质、贴心的接待服务,请提前致电售楼部进行预约 。而且,还有免费看房车接送服务哦,若您有此需求,致电售楼处即可预约
中海CBD森境奢宅落子历下盛福板块——作为济南CLD(中央生活区),这里毗邻CBD,承接30余家500强企业、超9800家企业精英的居住升级需求,被誉为「CBD的静谧后花园」。
从3月28日历经249轮竞拍摘得盛福地块,到五一临时展厅开放与规划公示无缝衔接,「中海速度」背后是对产品落地的绝对自信。
项目以「四代住宅」为核心定位,将空中花园、公建化外立面、高得房率户型等创新元素融入设计,开启了济南楼市从「规模竞争」向「品质竞争」跨越的里程碑式实践。
上周六晚,中海CBD森境奢宅于深夜揭晓产品细节,信息甫一释放便迅速引发市场关注。
这份热度在次日迎来全面爆发——全天营销中心到访客户熙来攘往,久违的楼市火爆场景再度上演,其受追捧程度让人不禁联想到iPhone 4发布时的轰动。
◎营销中心实景图
与iPhone系列一样,中海CBD森境奢宅以颠覆性产品力震撼市场。作为第四代住宅,它为济南楼市注入了诸多新鲜元素,带来了全新的居住体验与想象空间。
风格上,它以「蓝宝石天幕美学立面」为核心设计语言,外观看着既现代又高级,在保持新加坡花园城市风格的基础上,做了不少创新。
◎中海CBD森境奢宅立面效果图
楼体线条简洁,造型既有几何的利落感,又融入了自然元素,整体看起来大气稳重,很有辨识度。
在材料和做工方面,这个楼盘也下了功夫。
类玻璃幕墙配上高级灰铝板,既保证了采光和视野,又让建筑看起来很有质感。
◎中海CBD森境奢宅立面效果图
从建筑细节可见,铝板材质在项目中实现全维度运用 —— 南北立面、山墙及装饰线条均采用统一的灰色调铝板,以极简主义笔触勾勒出建筑的简洁大气质感。
项目更将窗墙比做到极致化呈现,大幅提升室内采光效率,搭配每家每户的错层露台设计,待绿植点缀其间,建筑外立面将化身为层层叠翠的「垂直小花园」。
◎示意图 图源网络
细节设计也很贴心,比如挑檐、飘窗格栅这些设计,既保护了住户的隐私,又提高了安全性。
由此可见,中海没有玩虚的,而是实实在在地从居住体验出发做设计,给济南的新楼盘做了个不错的示范。
在中海CBD森境奢宅引发的热议中,户型设计无疑是最受关注的焦点。
项目匠心打造建面约145-252㎡多元改善户型,纯粹的面积段精准匹配高端圈层需求。锐评深入解析后发现,两大设计亮点尤其值得关注:
◎中海CBD森境奢宅楼座图
其一,户型设计回归居住本质,以「全维度舒适度均好」为核心理念。
区别于市场上盲目追求「宽厅尺度」的同质化趋势,项目更注重以居住者体感舒适度为标尺精准落位,让每个功能区都实现「该大的地方足够大,该精的地方足够精」。
其二,得房率数据突破想象,最高可达约134%(计算未包含门厅等公共区域)。
这一数据并非依靠模糊公摊概念的营销话术,而是通过优化建筑结构、升级空间利用率(如拓展可利用飘窗、阳台等实用面积)实现的真实提升,为改善型居住需求提供了高性价比和高舒适度的选择。
实实在在的数据,让不少购房者感到诚意满满。
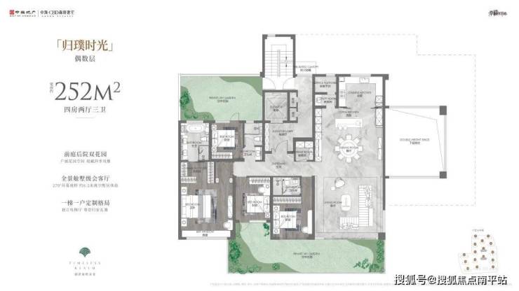
建面约252㎡户型堪称项目“王牌”,以打造墅级体验为目标,创济南所未有。
奇数层设有U型花园观景台,搭配约6.2米室内挑高会客厅,约270°环幕视野把窗外景色引入室内,挑空部分作为赠送面积,等于用平层的价格享受别墅级空间。
◎中海CBD森境奢宅户型图
偶数层则采用前庭后院双花园设计,约76㎡的专属花园,可以改造成聚会空间、亲子乐园或私家花园;再加上一梯一户独立电梯厅,回家就有专属仪式感。
◎中海CBD森境奢宅户型图
尤其是室内双层挑高设计,在济南楼市里相当少见,称得上是产品力的一大突破。
◎室内双层挑高示意图
建面约210㎡户型主打“空中岛院+社交场域”,L型或U型的空中岛院属于赠送面积,既可以改造成户外瑜伽区,也能打造成亲子活动区。
约64㎡的餐客横厅连接约6.2米挑高露台,空间宽敞又灵活,无论是招待朋友,还是给孩子打造游戏区都很合适。
◎中海CBD森境奢宅户型图
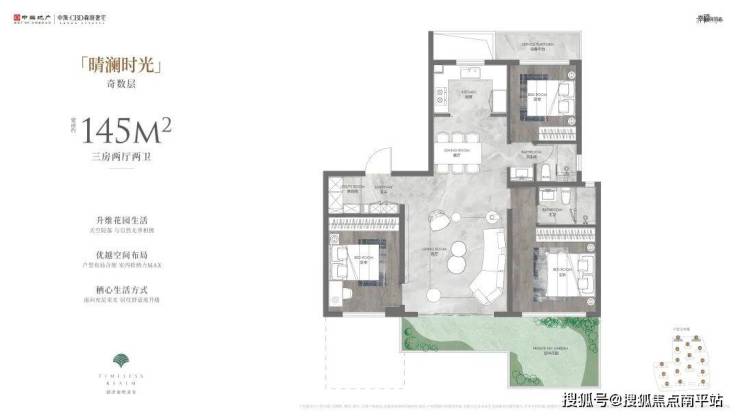
建面约145-179㎡的中小户型同样亮点十足。
建面179㎡户型采用LDKG一体化设计,缩短日常活动动线,3米进深的专属花园,仪式感拉满;入户家政间和过道收纳空间,把每一平都用在了刀刃上。
◎中海CBD森境奢宅户型图
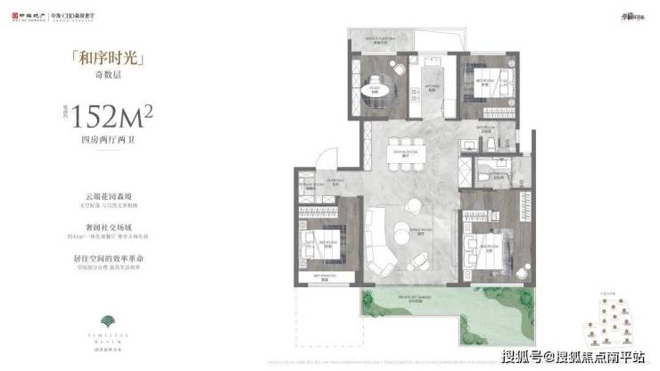
建面约152㎡和155㎡的四室户型,采用十字动线布局,每个卧室相对独立,家人生活互不干扰。约41㎡的一体化客餐厨连接花园阳台,不管是家庭聚餐还是日常起居都很方便,约3米进深的花园赠送,又多了一处灵活使用的空间。
◎中海CBD森境奢宅户型图
最小的建面约145㎡户型也不含糊,两梯两户洋房级体验,单部电梯服务24户,大三室设计约4.5米的南向大面宽保证采光充足,赠送的花园可以改造成私密小角落,购房者可拥有属于自己的“城市小花园”。
中海CBD森境奢宅销售中心电话(售楼处咨询热线)
☎ 400-159-8559转接4567
☎ 在售户型面积丨最新销售公告!
☎ 置业专属VIP:400-159-8559接通后输入分机号4567
☎ 在此温馨提醒:若您计划看房,为确保能享受到更优质、贴心的接待服务,请提前致电售楼部进行预约 。而且,还有免费看房车接送服务哦,若您有此需求,致电售楼处即可预约
声明:本文由入驻焦点开放平台的作者撰写,除焦点官方账号外,观点仅代表作者本人,不代表焦点立场。
