长沙【 招商序二期 】
💗售楼处电话:400-159-8559-5158【官方认证】💗
💗24小时热线◆温馨提示:看房需提前预约💗
💗售楼处电话☎☎:400-159-8559-5158〢【专人接听】💗
💗◆在售房源户型价格详询售楼处〢一对一服务💗
💗售楼处电话:400-159-8559-5158〢【售楼中心】💗
💗售楼处销售1v1专业讲解〢24小时热线💗
招商序一期去年8月首开,13栋住宅896户,累计网签670套(选房通数据),去化率高达75%!在如今这个地产行情下堪称现象级楼盘,那到底是买一期还是买二期?二期对比一期究竟怎么样?

效果图
课前划重点:
相较于一期116㎡、127㎡、139㎡、171㎡,二期只有三个户型123㎡、138㎡、155㎡;
· 二期直接砍掉了3房,进一步降低了4房的起步面积段到123㎡,看来还是4房卖的更好,并且123㎡与138㎡的面积极差增加到了15㎡(一期只有12㎡),用更大的价差消除客户的选择困难。
·171㎡的去化肯定不尽人意,最大面积段降低到了155㎡,确实楼盘的属性更适合做刚改,不算纯改善。
2. 二期户型得房率/居住舒适度相较于一期有些微提升,具体后面分析;
·当然片区内住户基本上也是充满烟火气的老口子为主
3.二期只有南边临主干道曲塘路,一期南侧/东侧临主干道曲塘路/树木岭路,无疑二期会更静谧一点。但一期场地更大,景观空间会更丰富;
4.从公示总图来看,气派的大门,下沉庭院的会所这些也都会有,档次大概率不会低于一期;
5.市面上同价位依然没有主力竞品,可做类比的大概率会是红星的中建翡翠天序2期,但翡翠天序的户型面积总价段有跟招商序做了极差;
·也有不少小伙伴咨询中交瑞启芙蓉与招商序对比,某种程度是有点类似,这两者在自己区域范围内都可以说是没有直接竞品,走出来独立行情。
区位与地块指标

区位
▇ 区位
招商序二期紧邻一期的西侧, 与一期共享周边的便利配套,当然也共享了比较一般的城市界面。
地铁:东侧的5号线木桥站,相较于一期可能会远个200m左右。
学校:与一期共享北侧的中雅培萃的9年制学校,当然也是挂牌的学校,没出成绩前不要抱太大预期。
商业:商业有五江天街,东南侧是溪悦荟,满足购物娱乐、餐饮等日常需求。
▇ 地块素质

整体而言,二期的规模相较于一期的规模略小一点,各方面指标都十分接近,但由于一期的楼栋/住户会更多。
规划解读

▇ 楼栋布局
1.常规的兵营式排布,只有6#放中间做了仅有的1栋楼王,60户155㎡,小户型123㎡直接怼马路,在园区内部的就是中间户;
2.123㎡存在边户/中间户两种,由于现在中间户是不能拉槽做飘窗的,得房率会不如边户;
3. 二期没有布置单独的幼儿园,仅有260㎡社区用房,大概率是共用一期的幼儿园、社区用房,不理因素更少,规划更纯粹一点;
4. 各种不利因素公厕、开关站都设置在与园区干扰最小的东北侧,与外界有独立出入口,还有一点比较好的是二期没有设置独立垃圾站,应该也是会跟一起共用。
▇ 出入口设置
小区的人行主出入口还是南侧对着曲塘路,东侧的人行次出入口正对一期的次出入口,车行口也分别在东侧、南侧人行口附近。 相较于一期大门没有足够面宽斜向设计的无奈,二期大门整体展示面会更宽、更周正!

▇ 大门对比


上为二期大门/下为一期大门
户型产品
户型新规经历了放松,再收紧之后,不同面积段边户的得房率稳定在105%~115%之间左右。
二期的面积段根据一期的销售情况进行了调整,得房率/居住体验有些许提升(主要是三卫户型都是三明卫,取消了转角飘窗避免业主对于隐私的诟病)。
也许是担心提升的太多会背刺一期业主?

123㎡
二期123㎡

一期127㎡
123㎡依然保留了4房的主要功能,并有所优化:
北向的生活阳台调整为南向并与客厅联通,这样使用会更加便利。 南向的主卧面宽也放大了,取消掉了有对视的转角凸窗,自然观景面也少了;

但毕竟面积缩小了4㎡,客厅、厨房的面宽有所缩减;
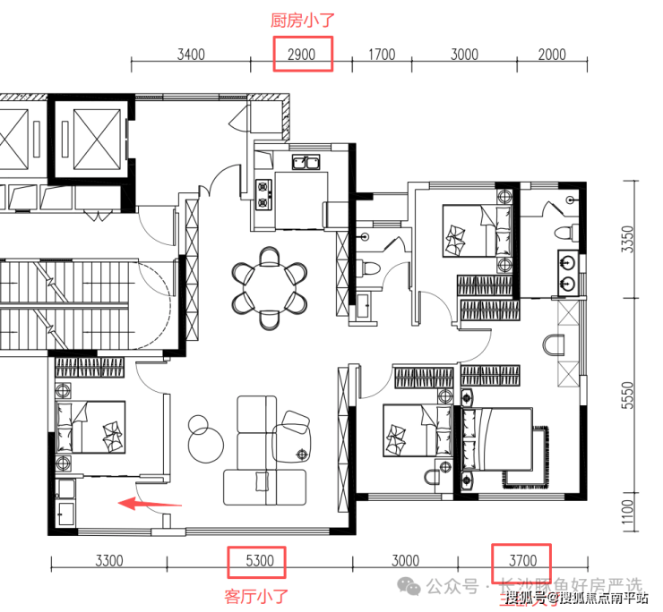
138㎡
二期138㎡

一期139㎡
138㎡户型的最大升级就是变成了3明卫,但客厅压缩了300mm的面宽,整体格局还是非常周正,是一个好用的户型。
长沙【 招商序二期 】
💗售楼处电话:400-159-8559-5158【官方认证】💗
💗24小时热线◆温馨提示:看房需提前预约💗
💗售楼处电话☎☎:400-159-8559-5158〢【专人接听】💗
💗◆在售房源户型价格详询售楼处〢一对一服务💗
💗售楼处电话:400-159-8559-5158〢【售楼中心】💗
💗售楼处销售1v1专业讲解〢24小时热线💗
免责声明:本宣传资料所有文字、数据、图片及所标尺寸等仅为本项目建设区域设计效果的表达和示意,为要约邀请,不构成要约内容,相关内容不排除因政府相关规划、规定及其他原因而发生变化,一切有关房屋的具体信息以书面合同及政府最终审批文件为准。免责声明:本文章文字、数据和图片皆来源网络,如有侵权请告知立马删除,数据图片仅供参考,不作为邀约或承诺。