绿城·柳畔听澜位于长沙芙蓉区,拥有正地铁口、河景、优质教育及高标准物业,房率100%,适合追求品质生活的购房者。💕✆✆鉴赏热线:400-159-8559接通后输入5158(已认证)💕
💕长沙【绿城·柳畔听澜】💕
💕✆✆鉴赏热线:400-159-8559接通后输入5158(已认证)💕
💕网上售楼中心〢欢迎来电咨询 💕
💕专业一对一热情服务给您专业的置业方案 💕
💕期待您成为我们的尊贵的业主 💕
绿城柳畔听澜:🉐房率100%
①正地铁口,楼下是已运行的地铁6号线隆平水稻博物馆站
②前无遮挡,可观浏阳河一线河景,二线河景
③绿城管理绿城物业,100%品质交付有保障,物业服务更舒适
④优质教育,小学育英三小,中学派位一中双语、中雅培粹、东雅中学、师大
绿城柳畔听澜: 总共5栋高层,住宅4栋高层,酒店办公楼1栋 2栋清盘面积就两个117-149.
都卖毛坯 3栋总住户30层2梯四户面积112-143🉐房100%
加推3栋总高31层🉐房率100%

🌈【区位】🌈
长沙向东 芙蓉为新
长沙向东的宏伟进程,擘画芙蓉区为大长沙都市圈2.5环城市格局中心内核,强劲催速规划、生态、产业、配套的全面更新,区域发展红利已现,未来磅礴而来。

区位图
🌈【交通】🌈
立体交通 便捷同城
·三轨换乘 直线600米内坐拥三个地铁口,比邻水稻博物馆站,轻松实现6、7号线换乘,依托汽车东站换乘7、8号线,便捷并轨全城
·举步东站 距离汽车东站直线约506米,步行距离为800米,跨城接驳全省
·高架通城 相邻万家丽高架入口,驱车约10分钟即至,便捷通达全城
·畅达高速 驱车至京港澳和机场高速口仅约15分钟,联动全国

示意图
🌈【生态】🌈
一条浏阳河 串联长沙生态地标
浏阳河畔,风光夹岸,人文底蕴馥郁厚载。8公里风光带,掩映隆平中央公园、婚庆文化园、水稻博物馆、汉文化广场等7大文化地标,园水串联,风景叠映,生活和诗意相拥。

实拍图
🌈【商业】🌈
一条人民东路 潮领长沙向东风采
繁华人民路,西连长沙宇宙中心万家丽国际购物广场,北接马王堆商圈,东连12万方龙湖芙蓉天街,永旺梦乐城即将签约落地,一座鼎奢商业、6大商业地标交相辉映。

实拍图
🌈【生活】🌈
10min都荟生活圈 凝翠烟火日常
缤纷商业 10min步行可达龙湖芙蓉天街、人民里商业中心两大重磅商业
名校教育 育英三小、四大名校之一入驻,出家门即入校门
安心医护 芙蓉区与中南大学湘雅二医院战略合作,计划选址芙蓉区隆平新区新建东院区

实拍图
🌈【产品】🌈


效果图
🌈【产品鉴赏】🌈


3号栋户型图-143平/112平


3号栋平层图

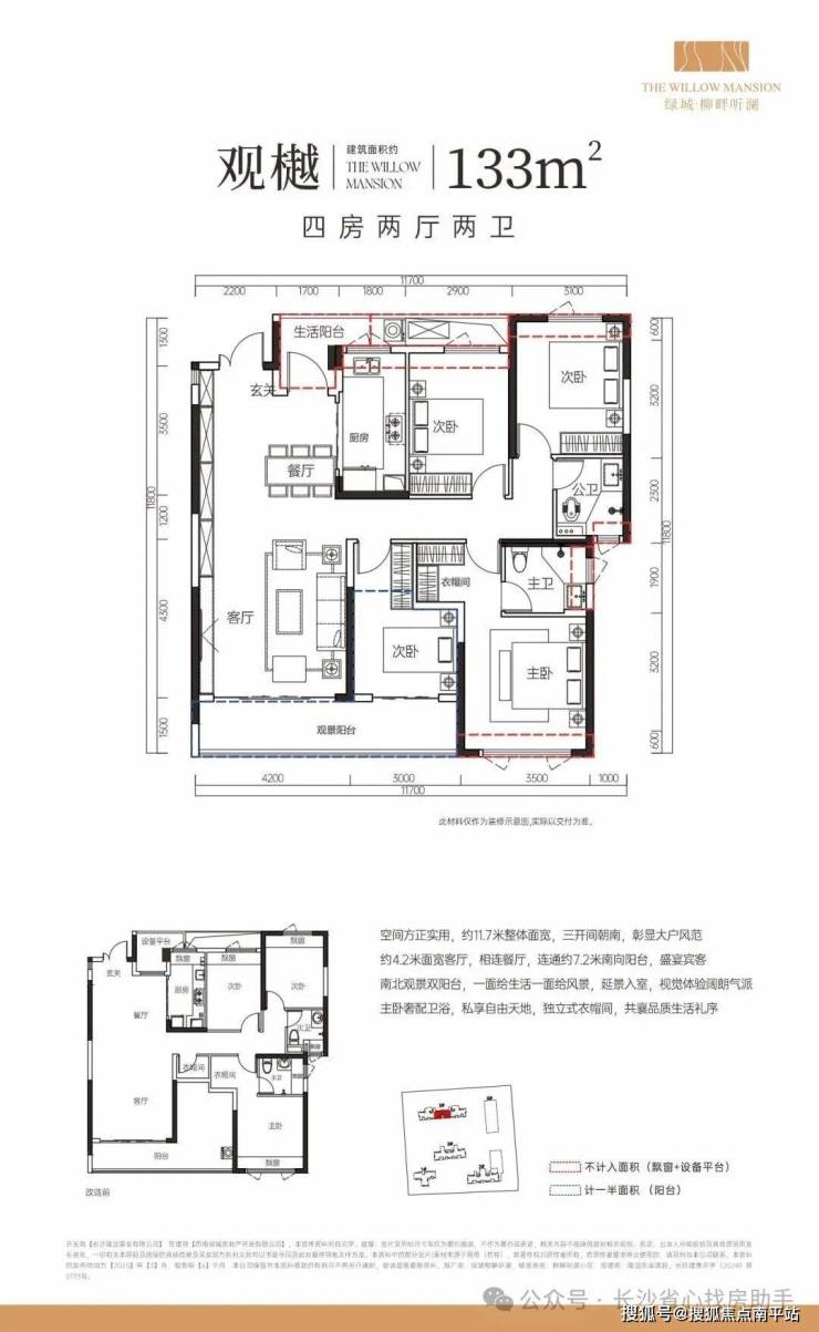
5号栋户型133平/112平



💕长沙【绿城·柳畔听澜】💕
💕✆✆鉴赏热线:400-159-8559接通后输入5158(已认证)💕
💕网上售楼中心〢欢迎来电咨询 💕
💕专业一对一热情服务给您专业的置业方案 💕
💕期待您成为我们的尊贵的业主 💕
免责声明:本宣传资料所有文字、数据、图片及所标尺寸等仅为本项目建设区域设计效果的表达和示意,为要约邀请,不构成要约内容,相关内容不排除因政府相关规划、规定及其他原因而发生变化,一切有关房屋的具体信息以书面合同及政府最终审批文件为准。免责声明:本文章文字、数据和图片皆来源网络,如有侵权请告知立马删除,数据图片仅供参考,不作为邀约或承诺。