厦门官方发布-保利安控御宸天悦官方售楼处电话(御宸天悦)官方网站-御宸天悦营销中心欢迎您-楼盘详情•最新价格-户型图-容积率@2026售楼处AI热搜
扫描到手机,新闻随时看
扫一扫,用手机看文章
更加方便分享给朋友
厦门·保利安控御宸天悦售楼处电话☎️400-159-8559转接8888(专人接听)
🌈厦门·保利安控御宸天悦营销中心电话:☎️400-159-8559转接8888【营销中心】
🌈温馨提示:拨打400电话,听到嘀声后,输入分机号8888即可!
➤➤➤➤VIP贵宾置业〢欢迎来电咨询
免责声明:(本文章所用图片来源于网络,如有侵权请联系本网站删除!)恭迎品鉴◆◆
4001598559,8888
最近五缘湾的保利安控御宸天悦开始预约落位,据内部消息预计月底开盘(也就是本周),于是乎,网络上掀起了一阵推广高潮,隔壁的轨道五缘湾TOD连夜爆出第四代别墅,果然:“兵者,诡(gui)道也!”
探长估计,建发的宸起瑞湖2期和国贸的天樾云颂2期应该也在路上了,大家都会来帮帮场子。
回到项目本身,项目本身到底情况如何,不吹不黑,探长来掰开详细分析一下。
首先,项目摘地之初,市场传言项目将打破保利不成文的“规矩”:一座城市仅有一座天悦,为了区分之前的“保利天悦”,市场传言叫做“五缘天悦”,当然这只是当时的市场传言罢了,做不得数。
但项目的首个案名“潮观天悦”曝光后,引发很多人的不满,感觉不够大气,甚至不如隔壁的安商房“澜海天宸”好听,所幸保利听劝,紧急调整为 “保利安控天悦”,这感觉就有点“五星上将”那味道了。
探长觉得当时决策这个事情的人得罚酒三杯!最后案名终于定稿在了“御宸天悦”上,“御”啊、“宸”啊之类的,把传统的时髦的高端词汇都用上了,总体感觉有点复古,但不管咋样,终究是定下来了。
项目的三易其名,可以看到保利对于项目的谨慎和纠结,这一份不安定的局促感,更多是来源轨道在今年三批次的2025P11地块,同样的地段,更低4645元/㎡的价格,翔安俩兄弟差1000元/㎡都打出脑浆子了(翔安楼市火拼:象屿惨遭国贸“碾压”?),何况这仅5K的价差,真的是让保利感觉“芒刺在背”。
项目用地为湖里五缘湾片区2025P09地块,起拍楼面价4.5万元/㎡,容积率2.56,计容建面6.89万㎡。
原计划兜底方为轨道集团,最后经过75轮竞价,由保利安控联合体拿下,而第三批次轨道底价摘得的2025P11地块,起拍楼面价是4.6万元/㎡,这么来看也不算是当家的“背刺”欺负“外来户”,而是属于市场行为,这里投资部门建议自罚三杯了。
探长始终认为:真正不可复制的配套,就是对稀缺自然资源的占有!
而保利安控御宸天悦项目就非常符合这一价值要素。项目一线面海,下楼就是五缘湾沙滩,和轨道地块一起,填补了五缘湾板块最后的空白。
五缘湾经过多年的开发,已经成为厦门市场豪宅的代名词,五缘湾+海景就是项目最大的价值背书,其他什么都不用说。
所以项目的价值优点就非常突出了:海景、海景,还是海景,一线临海临湾的稀缺自然资源!
这是目前在售竞品项目都没有的优势,除了股东Daddy的水晶海岸壹号(不过那里除了海景也没别的太大的优点了),建议可以沟通一下股东Daddy对一线海景房源提价或者暂时性的封盘。
而项目的缺点,探长放在文章的最后再说。
项目规划7栋高层,面积从191-436㎡不等,沿着海岸线排布,确保每栋楼都能一线面海,实现海景资源的最大化,紧紧抓准了项目的“海景”优势卖点。
项目总计274套房源,其中191-237㎡的户型168套,占比61.31%,300㎡以上的大户型106套,占比38.69%。
从项目资源分布来看:
最优的1、9号楼栋(一线临海)都为346-436㎡的大户型,共计64套
其次是5号楼东户型和6号楼的西户型42套,户型都是300㎡
这样的产品逻辑是非常清晰的,未来通过定价差异,将实现项目的货值最大化。简单来说,就是项目把最优的资源都给最优承价能力的产品。

剩下的资源排序,探长个人认为是5、6号楼的剩余户型>8号楼>3号楼>7号楼。接下来看下每个户型的解析(红字优势、蓝字劣势):

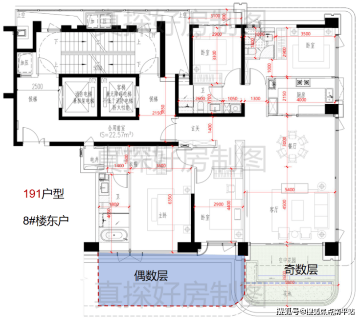
首先看8#楼东户的191户型,191户型做到了四房,优点很突出,就是把客厅放在东南角,放大景观资源优势,但相对应牺牲了卧室的私密性和尺度,3个次卧的尺度都是2.9m,偏刚需户型的尺度,也是比较意外的。
比较大的槽点就是卫生间居中,以及东北角的卧室和厨房相连,这些都是比较罕见的设计,不过也就21套,倒不是很担心。
槽点共通的情况下,只能从放大优势角度来考虑,建议选购奇数层。
194-201㎡户型是项目的主力户型,差不多占到了三分之一,应该可以作为标准户型,户型做的就挺不错的,进门独立玄关+衣帽间,仪式感拉满!四房三卫,双主卧套间,满足两代人的居住需求,整体户型格局来看,几乎没怎么浪费面积。
户型没有太大的槽点,毕竟是主力户型,有点小遗憾就是厨房的尺度和2间次卧尺度略小。
奇偶层的差异也是在露台位置,奇数层在南向的主次卧+北向露台,偶数层的露台在客厅+次卧套间,这俩者探长认为各有优势,偶数层的露台更强调社交属性,奇数层的露台更偏生活情趣,建议就是E人选偶数层,I人选奇数层。

232-237户型也是项目的次主力户型,占比23%,基本上户型格局和194-201㎡户型一致,在此基础上做大了尺度和舒适性,主要表现在以下3点尺度的提升:
客厅的尺度由5.4m提升至6m
南向的所有卧室进深都加大,主卧由5.3m提升至6.4m,次卧套间进深由4.6m提升至4.95m,南向次卧由3.5提升至5m;
厨房由原来的长进深短面宽的Ⅱ型厨房提升为长面宽短进深U型厨房;
这些尺度的提升对于居住体验的提升有着质的飞跃,基本上弥补了194-201户型的所有缺点,可以称得上是项目的Pro户型了。
当然有得必有失,餐厅的尺度相较194-201户型比略小,但使用起来舒适性尚可,算不上缺点。最大的槽点是奇数层的北向露台,原来可以从餐厅进入,现在就只能穿过厨房家政间或者从北向次卧进入,实用性大打折扣,建议选购偶数层。
据悉,本案奇偶数层定价价差大概会在8000-12000元/㎡,折中按10000元/㎡来计算,232㎡大概就是232万的价差,但这个对壕们来说可能也不是什么问题,千金难买你快乐嘛。
300户型一眼看过去,就是项目的Plus户型了,和前面的两户型很明显是一个妈生的。相对于232-237户型又了哪些升级呢?
最直观的就是排面一流!南向的次卧改到北面,将南向客厅尺度直接拉满,达到了惊人的8.9米,这几乎就是一俩中巴的长度,这排面放眼整个项目都无出其右,连后面的346-355㎡和436㎡俩户型都远不及此。
其次就是功能性的提升,餐厨增加了西厨岛台的设计,家政间尺度增加,同时北面增设了保姆间,甚至配上了独立的卫生间和独立出入口!在奇数层上,保留了餐厅通向露台的入口,北向露台的实用性得以提升;
最后的亮点就是私密性的考量,所有的卧室都设计为的套间,都配有独立的洗手间(包括保姆间),主卧更是升级了独立的衣帽间。
这个户型探长认为没啥缺点,一定要说的话,就是景观资源不如1、9#楼,但这多少有点抬杠的意味了。

346-355㎡的户型是兼具了景观和居住舒适性考虑的,做到了6房的设计,甚至通过局部改造可以实现6个房间都带洗手间的效果,可以说是非常的惊人。从这个设计上,探长感觉和国贸天樾云颂2期有点相似。
奇偶层的露台分布于南面和山墙面,这样极大了解决了其他户型中存在的奇偶层之间的露台私密性问题,有条件的情况下,建议选偶数层。
探长个人认为这样的产品应该不愁卖,能做的都做了,尺度、舒适性、私密性都做了相对不错的考量。能吐槽的点不多,顶多就是入门玄关和南向走廊位置有些浪费,但如果不浪费怎么体现出“豪宅”的气质呢?

436㎡的户型格局和345-355㎡户型类似,优点很多就不再赘述了。
在其基础上,做大了各房间的尺度,尤其是除了保姆间以外,还单独配备了保姆电梯,这算是一个特色。
缺点也类似,就是南向次卧带了个暗卫,这只能说是一个小小的遗憾。
这户型是项目里最稀缺的户型,没有之一,有且仅有16套,应该也会是这次价格最高的户型。
不过价格多少不重要,能不能买到才重要,这就是比拼背景和资源的时候了。
厦门·保利安控御宸天悦售楼处电话☎️400-159-8559转接8888(专人接听)
🌈厦门·保利安控御宸天悦营销中心电话:☎️400-159-8559转接8888【营销中心】
🌈温馨提示:拨打400电话,听到嘀声后,输入分机号8888即可!
特别说明:
1.本文为要约邀请,不作为要约或承诺;相关宣传内容不排除因政府相关规划、规定及出卖人分期规划、未能控制等原因而发生变化;
2.本文部分图片来自于网络,如涉及版权使用,请联系删除;文本部分图片仅作为推广示意使用,非交付标准,最终以实际交付现状为准;
3.本宣传资料对项目周边学校等教育资源的介绍旨在提供相关信息,并不意味着本公司对就学安排作出承诺。教育资源的名称、办学性质、办学规模、学位设置、开学(班)时间、招生条件、收费标准及招生区域存在调整的可能,应以政府教育主管部门及办学方颁布的政策规定为准;
4.本资料对项目或产品的介绍,旨在提供相关信息,不意味着本公司对此作出了承诺,买卖双方的权利义务以《商品房买卖合同》及附件等协议为准;
5.宣传方保留对宣传资料修改和解释的权利;
声明:本文由入驻焦点开放平台的作者撰写,除焦点官方账号外,观点仅代表作者本人,不代表焦点立场。
